Log In/Sign Up
Your email has been sent.
705 Ulysses St 2,706 SF Specialty Building Offered at $997,658 CAD in Golden, CO 80401



Executive Summary
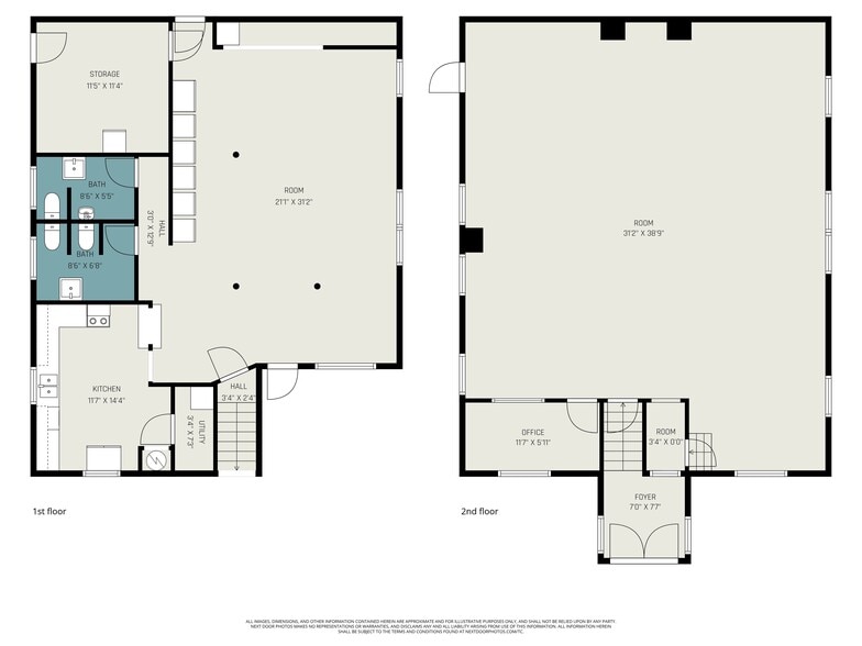
Unique owner-user and special-purpose opportunity in Golden. Per City of Golden zoning verification, the property is zoned R-E Residential Estates, subject to Chapter 18.28, with current use identified as place of assembly. Golden’s zoning code recognizes Place of Assembly as a distinct land-use category, which may indicate potential for religious, community, educational, or similar gathering-oriented uses, subject to buyer verification with the City of Golden. This vacant and easy-to-show property includes an approximately 2,706 SF building on a 15,725 SF lot with a large paved parking area, plus existing classrooms, fellowship/assembly space, and storage. Rare opportunity to purchase a distinctive property with immediate utility and long-term potential in one of the metro area’s most desirable foothill communities.
Property was used as a place of worship, so there is no in-place cap rate. Property has been tax-exempt under church ownership/use; buyer and buyer’s agent must independently verify future property tax liability, zoning, permitted uses, occupancy, parking, redevelopment potential, and any change-of-use requirements.
Property was used as a place of worship, so there is no in-place cap rate. Property has been tax-exempt under church ownership/use; buyer and buyer’s agent must independently verify future property tax liability, zoning, permitted uses, occupancy, parking, redevelopment potential, and any change-of-use requirements.
Property Facts
1 1
Somewhat walkable
30/100
Exceptionally drivable
100/100
Some public transit
50/100
Fairly bikeable
50/100
Property Taxes
| Parcel Number | 40-023-00-010 | Improvements Assessment | $32,067 CAD |
| Land Assessment | $137,298 CAD | Total Assessment | $169,365 CAD |
Property Taxes
Parcel Number
40-023-00-010
Land Assessment
$137,298 CAD
Improvements Assessment
$32,067 CAD
Total Assessment
$169,365 CAD
1 of 20
Videos
Matterport 3D Exterior
Matterport 3D Tour
Photos
Street View
Street
Map
1 of 1
Presented by
705 Ulysses St
Already a member? Log In
Hmm, there seems to have been an error sending your message. Please try again.
Thanks! Your message was sent.
