Log In/Sign Up
Your email has been sent.
Village Business Park 7050 Village Dr 1,902 - 34,500 SF of Space Available in Buena Park, CA 90621



HIGHLIGHTS
- Excellent access to the 5, 91, 605, and 105 Freeways
- Master-planned business park environment
- Centrally located between Los Angeles and Orange Counties
FEATURES
Clear Height
22’
Drive In Bays
10
Standard Parking Spaces
192
ALL AVAILABLE SPACES(4)
Display Rental Rate as
- SPACE
- SIZE
- TERM
- RENTAL RATE
- SPACE USE
- CONDITION
- AVAILABLE
- Lease rate does not include utilities, property expenses or building services
- Private Restrooms
- Includes 2,896 SF of dedicated office space
- Lease rate does not include utilities, property expenses or building services
- Fits 28 - 90 People
- Lease rate does not include utilities, property expenses or building services
- Includes 3,749 SF of dedicated office space
Large open office areas, two (2) private offices, and two (2) restrooms.
- Rate includes utilities, building services and property expenses
- Mostly Open Floor Plan Layout
- 2 Private Offices
- Central Air Conditioning
- Highly functional “Low Cost” office space
- Partially Built-Out as Standard Office
- Fits 5 - 16 People
- Finished Ceilings: 9’
- Private Restrooms
- 4 parking stalls
| Space | Size | Term | Rental Rate | Space Use | Condition | Available |
| 1st Floor - C | 13,182 SF | Negotiable | $21.57 CAD/SF/YR $1.80 CAD/SF/MO $284,296 CAD/YR $23,691 CAD/MO | Industrial | Full Build-Out | 60 Days |
| 1st Floor - D | 11,156 SF | Negotiable | $23.23 CAD/SF/YR $1.94 CAD/SF/MO $259,109 CAD/YR $21,592 CAD/MO | Industrial | - | Now |
| 1st Floor - I-2 | 8,260 SF | Negotiable | $23.23 CAD/SF/YR $1.94 CAD/SF/MO $191,847 CAD/YR $15,987 CAD/MO | Industrial | - | 30 Days |
| 2nd Floor, Ste H-2 | 1,902 SF | Negotiable | $26.54 CAD/SF/YR $2.21 CAD/SF/MO $50,487 CAD/YR $4,207 CAD/MO | Office | Partial Build-Out | Now |
1st Floor - C
| Size |
| 13,182 SF |
| Term |
| Negotiable |
| Rental Rate |
| $21.57 CAD/SF/YR $1.80 CAD/SF/MO $284,296 CAD/YR $23,691 CAD/MO |
| Space Use |
| Industrial |
| Condition |
| Full Build-Out |
| Available |
| 60 Days |
1st Floor - D
| Size |
| 11,156 SF |
| Term |
| Negotiable |
| Rental Rate |
| $23.23 CAD/SF/YR $1.94 CAD/SF/MO $259,109 CAD/YR $21,592 CAD/MO |
| Space Use |
| Industrial |
| Condition |
| - |
| Available |
| Now |
1st Floor - I-2
| Size |
| 8,260 SF |
| Term |
| Negotiable |
| Rental Rate |
| $23.23 CAD/SF/YR $1.94 CAD/SF/MO $191,847 CAD/YR $15,987 CAD/MO |
| Space Use |
| Industrial |
| Condition |
| - |
| Available |
| 30 Days |
2nd Floor, Ste H-2
| Size |
| 1,902 SF |
| Term |
| Negotiable |
| Rental Rate |
| $26.54 CAD/SF/YR $2.21 CAD/SF/MO $50,487 CAD/YR $4,207 CAD/MO |
| Space Use |
| Office |
| Condition |
| Partial Build-Out |
| Available |
| Now |
1 of 1
VIDEOS
MATTERPORT 3D EXTERIOR
MATTERPORT 3D TOUR
PHOTOS
STREET VIEW
STREET
MAP
1st Floor - C
| Size | 13,182 SF |
| Term | Negotiable |
| Rental Rate | $21.57 CAD/SF/YR |
| Space Use | Industrial |
| Condition | Full Build-Out |
| Available | 60 Days |
- Lease rate does not include utilities, property expenses or building services
- Includes 2,896 SF of dedicated office space
- Private Restrooms
1 of 2
VIDEOS
MATTERPORT 3D EXTERIOR
MATTERPORT 3D TOUR
PHOTOS
STREET VIEW
STREET
MAP
1st Floor - D
| Size | 11,156 SF |
| Term | Negotiable |
| Rental Rate | $23.23 CAD/SF/YR |
| Space Use | Industrial |
| Condition | - |
| Available | Now |
- Lease rate does not include utilities, property expenses or building services
- Fits 28 - 90 People
1 of 1
VIDEOS
MATTERPORT 3D EXTERIOR
MATTERPORT 3D TOUR
PHOTOS
STREET VIEW
STREET
MAP
1st Floor - I-2
| Size | 8,260 SF |
| Term | Negotiable |
| Rental Rate | $23.23 CAD/SF/YR |
| Space Use | Industrial |
| Condition | - |
| Available | 30 Days |
- Lease rate does not include utilities, property expenses or building services
- Includes 3,749 SF of dedicated office space
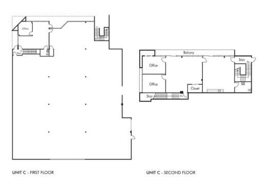
2nd Floor, Ste H-2
| Size | 1,902 SF |
| Term | Negotiable |
| Rental Rate | $26.54 CAD/SF/YR |
| Space Use | Office |
| Condition | Partial Build-Out |
| Available | Now |
Large open office areas, two (2) private offices, and two (2) restrooms.
- Rate includes utilities, building services and property expenses
- Partially Built-Out as Standard Office
- Mostly Open Floor Plan Layout
- Fits 5 - 16 People
- 2 Private Offices
- Finished Ceilings: 9’
- Central Air Conditioning
- Private Restrooms
- Highly functional “Low Cost” office space
- 4 parking stalls
PROPERTY FACTS
Building Size
80,868 SF
Lot Size
4.80 AC
Year Built
1991
Construction
Masonry
Water
City
Sewer
City
Power Supply
Amps: 200 Volts: 120-208 Phase: 3 Wire: 4
Zoning
M2 - Light Industrial
1 1
1 of 20
VIDEOS
MATTERPORT 3D EXTERIOR
MATTERPORT 3D TOUR
PHOTOS
STREET VIEW
STREET
MAP
1 of 1
Presented by
Village Business Park | 7050 Village Dr
Already a member? Log In
Hmm, there seems to have been an error sending your message. Please try again.
Thanks! Your message was sent.







