Your email has been sent.
Walmart Surrounded Office @ Walton & 8th 706 S Walton Blvd 4,000 SF of Office/Medical Space Available in Bentonville, AR 72712



Highlights
- 5th fastest growing city in the United States
- Neighboring to national Fortune 500 companies
- Prestigious & high-profile location
- Access to 2 Signalized Intersections
- Surrounded by Walmart-owned properties
- Exposure to more than 47,000 CPD
All Available Space(1)
Display Rental Rate as
- Space
- Size
- Term
- Rental Rate
- Space Use
- Build-Out
- Available
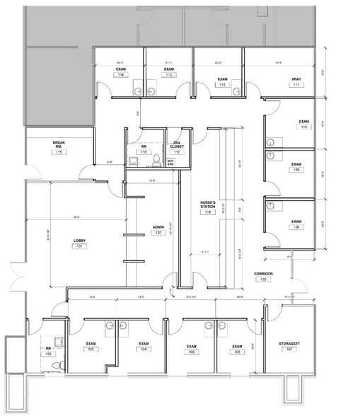
Suite 8 at 706 S Walton Blvd offers a premier medical office leasing opportunity consisting of approximately 4,000 square feet of recently renovated, move-in ready space designed to support a wide range of healthcare users. The suite features an efficient medical layout including 10 exam rooms, two X-ray rooms, a centralized nurses station, a welcoming lobby and waiting area, one break room, and two restrooms, allowing for seamless patient flow and daily operations. Strategically located directly across from the Walmart Home Office and just 1.5 miles from the new Walmart Campus, the property benefits from exceptional visibility within one of Northwest Arkansas’ most active commercial corridors, while also providing convenient regional access just 2.6 miles from Interstate 49. Offered at $29.00 PSF NNN, Suite 8 presents an outstanding opportunity for medical or healthcare providers seeking a high-quality space in a prime Bentonville location.
- Fully Built-Out as Standard Medical Space
- Fits 10 - 32 People
- Mostly Open Floor Plan Layout
- Space is in Excellent Condition
| Space | Size | Term | Rental Rate | Space Use | Build-Out | Available |
| 1st Floor, Ste 8 | 4,000 SF | Negotiable | Upon Request Upon Request Upon Request Upon Request | Office/Medical | Full Build-Out | Now |
1st Floor, Ste 8
| Size |
| 4,000 SF |
| Term |
| Negotiable |
| Rental Rate |
| Upon Request Upon Request Upon Request Upon Request |
| Space Use |
| Office/Medical |
| Build-Out |
| Full Build-Out |
| Available |
| Now |
1st Floor, Ste 8
| Size | 4,000 SF |
| Term | Negotiable |
| Rental Rate | Upon Request |
| Space Use | Office/Medical |
| Build-Out | Full Build-Out |
| Available | Now |
Suite 8 at 706 S Walton Blvd offers a premier medical office leasing opportunity consisting of approximately 4,000 square feet of recently renovated, move-in ready space designed to support a wide range of healthcare users. The suite features an efficient medical layout including 10 exam rooms, two X-ray rooms, a centralized nurses station, a welcoming lobby and waiting area, one break room, and two restrooms, allowing for seamless patient flow and daily operations. Strategically located directly across from the Walmart Home Office and just 1.5 miles from the new Walmart Campus, the property benefits from exceptional visibility within one of Northwest Arkansas’ most active commercial corridors, while also providing convenient regional access just 2.6 miles from Interstate 49. Offered at $29.00 PSF NNN, Suite 8 presents an outstanding opportunity for medical or healthcare providers seeking a high-quality space in a prime Bentonville location.
- Fully Built-Out as Standard Medical Space
- Mostly Open Floor Plan Layout
- Fits 10 - 32 People
- Space is in Excellent Condition
Property Overview
In the fastest growing city in Arkansas, on the most rare real estate in Arkansas, at the most notable intersection in Arkansas, Haag Brown has the best opportunity to lease medical / office / retail space in the state of Arkansas. The intersection of 8th Street & Walton Blvd is one of the most prestigious and strategic intersections in the Natural State. Surrounded by Walmart Home Office to the East, Walmart Store #100 to the North, and Walmart’s new 100 Acre Destination Park coming soon to the West, this is the most famous piece of real estate in the state of Arkansas. This property offers the opportunity to lease up to 13,500 SF of space on a lot with significant parking, significant exposure, and 4 access points at two main intersections. This property is located where 8th Street interstate traffic intersects with Walton Blvd Interstate traffic. Over 47,000 cars per day among some of the highest average income households in the state visit this site.
- Central Heating
- Air Conditioning
Property Facts
Presented by
Walmart Surrounded Office @ Walton & 8th | 706 S Walton Blvd
Hmm, there seems to have been an error sending your message. Please try again.
Thanks! Your message was sent.
