Log In/Sign Up
Your email has been sent.
Barracks Row 707-709 8th St SE 6,786 SF 100% Leased Retail Building Washington, DC 20003 $5,320,536 CAD ($784.05 CAD/SF) 7.81% Cap Rate



Investment Highlights
- Eastern Market/Barracks Row provides retail/office opportunities in one of DC's most popular destinations for community and tourists.
- One of the top destinations in the the city for residents and tourists with steps to Metro stop, bus, and expressway provide easy access.
- Residential Historic District one of the top neighborhoods in the region.
- One of largest service/retail/restaurant frontages at Eastern Market/Barracks Row and Capitol Hill
- Barracks Row Main Street and active Capitol Hill Chamber of Commerce provides support, promotional events, district grants and services
- Strong community support for it's own commercial businesses
Executive Summary
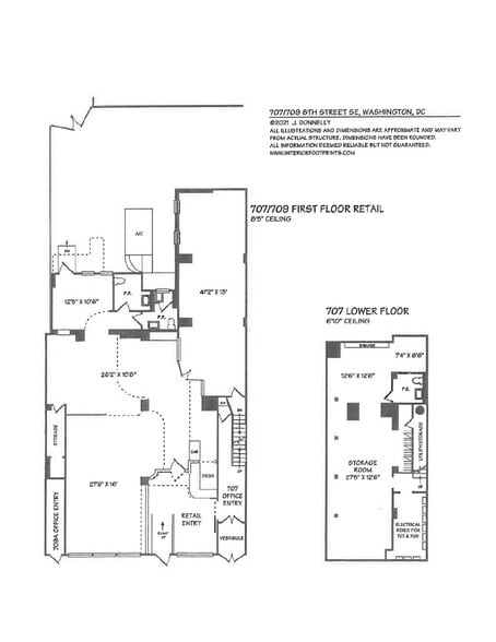
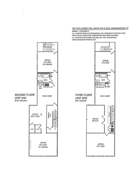
Contract Fell Through! NOW AVAILABLE Extremely well located larger mixed use property in the heart of the Capitol Hill commercial district. Steps to not only Eastern Market Metro and the Capitol Building it is nestled amidst the bustling shops and restaurants of Barracks Row across from the world famous U.S. Marine Barracks established in 1801. 707-709 8th St S.E. is a unique earlier combination of two properties, which results in very rare open 1st floor of over 2500sf of renovated street floor space for restaurant, day care center, gym medical affiliation , large office HQ or any business or service that looks for great curb appeal, location or street exposure on one the busiest commercial corridors in SE. The entire property has been fully renovated with 2 very large office dedicated office, additional floor for multi apartment or offices and lower floors in this exceptional and flexible 7000sf+. 80% Vacant with upper floor office occupied at $5k monthy (negotiable) Note not warranted: building may have development potential for additional square footage within existing structure or expansion in addition to possibility of parking in rear of lot. Property is currently 80% Vacant and or possibly 100% if buyer requires. Very few commercial properties offer this flexibility in location, size, or usage. Showing and materials available . See Disclaimer
Property Facts
Sale Type
Investment or Owner User
Property Type
Retail
Property Subtype
Building Size
6,786 SF
Building Class
C
Year Built
1908
Price
$5,320,536 CAD
Price Per SF
$784.05 CAD
Cap Rate
7.81%
NOI
$415,411 CAD
Percent Leased
100%
Tenancy
Multiple
Building Height
3 Stories
Building FAR
1.73
Lot Size
0.09 AC
Zoning
MU-25 - Capitol Hill Commercial Mixed-Use MU-4/CHC Permit moderate-density mixed-use development
Historic Designation
Parking
2 Spaces (0.29 Spaces per 1,000 SF Leased)
Frontage
22’ on 8th St
Amenities
- 24 Hour Access
- Bus Line
- Fenced Lot
- Restaurant
- Security System
- Recessed Lighting
- Air Conditioning
Exceptionally walkable
100/100
Moderately drivable
60/100
Exceptional public transit
100/100
Very bikeable
80/100
Nearby Major Retailers
Property Taxes
| Parcel Numbers | Improvements Assessment | $2,885,800 CAD | |
| Land Assessment | $1,030,042 CAD | Total Assessment | $3,915,841 CAD |
Property Taxes
Parcel Numbers
Land Assessment
$1,030,042 CAD
Improvements Assessment
$2,885,800 CAD
Total Assessment
$3,915,841 CAD
1 of 25
Videos
Matterport 3D Exterior
Matterport 3D Tour
Photos
Street View
Street
Map
Presented by
Barracks Row | 707-709 8th St SE
Already a member? Log In
Hmm, there seems to have been an error sending your message. Please try again.
Thanks! Your message was sent.
