Log In/Sign Up
Your email has been sent.
711 S State St 1,500 - 4,500 SF of Retail Space Available in Lockport, IL 60441



Highlights
- Prominent Corner
- Flexible terms
- Immediate parking in area
All Available Space(1)
Display Rental Rate as
- Space
- Size
- Term
- Rental Rate
- Space Use
- Build-Out
- Available
- Listed rate may not include certain utilities, building services and property expenses
- Finished Ceilings: 10’ - 12’
| Space | Size | Term | Rental Rate | Space Use | Build-Out | Available |
| 1st Floor | 1,500-4,500 SF | Negotiable | $34.17 CAD/SF/YR $2.85 CAD/SF/MO $153,781 CAD/YR $12,815 CAD/MO | Retail | Spec Suite | 2027-06-01 |
1st Floor
| Size |
| 1,500-4,500 SF |
| Term |
| Negotiable |
| Rental Rate |
| $34.17 CAD/SF/YR $2.85 CAD/SF/MO $153,781 CAD/YR $12,815 CAD/MO |
| Space Use |
| Retail |
| Build-Out |
| Spec Suite |
| Available |
| 2027-06-01 |
1 of 1
Videos
Matterport 3D Exterior
Matterport 3D Tour
Photos
Street View
Street
Map
1st Floor
| Size | 1,500-4,500 SF |
| Term | Negotiable |
| Rental Rate | $34.17 CAD/SF/YR |
| Space Use | Retail |
| Build-Out | Spec Suite |
| Available | 2027-06-01 |
- Listed rate may not include certain utilities, building services and property expenses
- Finished Ceilings: 10’ - 12’
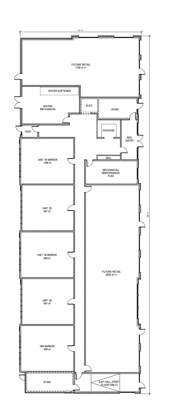
Site Plan
Property Facts
| Total Space Available | 4,500 SF | Apartment Style | Low-Rise |
| Min. Divisible | 1,500 SF | Building Size | 34,000 SF |
| Property Type | Multifamily | Construction Status | Proposed |
| Property Subtype | Apartment |
| Total Space Available | 4,500 SF |
| Min. Divisible | 1,500 SF |
| Property Type | Multifamily |
| Property Subtype | Apartment |
| Apartment Style | Low-Rise |
| Building Size | 34,000 SF |
| Construction Status | Proposed |
About the Property
New mixed use development planned for downtown Lockport IL.. Spring/Summer 2027 delivery. Prominent northern corner into historic downtown. Great visibility and signage. Ample parking - unique for downtown development. Flexible Terms and Delivery condition.
Fairly walkable
40/100
Exceptionally drivable
100/100
Some public transit
50/100
Moderately bikeable
70/100
Nearby Major Retailers
1 of 5
Videos
Matterport 3D Exterior
Matterport 3D Tour
Photos
Street View
Street
Map
Presented by
711 S State St
Already a member? Log In
Hmm, there seems to have been an error sending your message. Please try again.
Thanks! Your message was sent.


