Your email has been sent.
7115 Leesburg Pike - WestMetro Plaza 1,126 - 3,101 SF Condo Units Offered at $613,854 - $1,630,805 CAD Per Unit in Falls Church, VA 22043



Executive Summary
Set your team up for success in this bright, flexible office suite nestled in the heart of Falls Church’s business corridor. The 1,200 SF layout includes a spacious reception area, multiple private offices, and a dedicated conference room, making it ideal for legal, medical, financial, or general professional use. Here you’ll find room to grow, with a prime location near Northern Virginia’s most popular commuter corridors. Situated in a strategic location with standout functionality, 7115 Leesburg Pike #317 offers commercial tenants convenience, visibility, and versatility that gets the job done, while offering support staff a better work-life balance. Since it’s just minutes from Tysons Corner, you’re surrounded by restaurants, banks, and retail. That means maximum convenience for power lunches, errands, and after-hours networking. This move-in-ready suite is perfect for businesses looking to grow in one of Northern Virginia’s most vibrant and prestigious professional hubs. ? 1,200 SF suite with private offices, reception, and conference room ? Bright interior with natural light, modern finishes, kitchenette and hallway workstation ? Professionally managed building with elevator and plenty of on-site parking ? Prime Falls Church location near major commuter routes (I-495, I-66, and Route 7) and Tysons
Property Facts
| Total Building Size | 60,000 SF | Typical Floor Size | 20,000 SF |
| Property Type | Office | Year Built | 1966 |
| Building Class | B | Lot Size | 2.38 AC |
| Floors | 3 | Parking Ratio | 3.5/1,000 SF |
| Zoning | 430 - Zoned C-3 (Office), this property accommodates a wide range of business and professional uses, including medical practices, administrative offices, th | ||
| Total Building Size | 60,000 SF |
| Property Type | Office |
| Building Class | B |
| Floors | 3 |
| Typical Floor Size | 20,000 SF |
| Year Built | 1966 |
| Lot Size | 2.38 AC |
| Parking Ratio | 3.5/1,000 SF |
| Zoning | 430 - Zoned C-3 (Office), this property accommodates a wide range of business and professional uses, including medical practices, administrative offices, th |
Amenities
- 24 Hour Access
- Banking
- Bus Line
- Controlled Access
- Metro/Subway
- Restaurant
- Wheelchair Accessible
- Kitchen
- Reception
- Direct Elevator Exposure
- Natural Light
- Open-Plan
- Recessed Lighting
- Air Conditioning
- Smoke Detector
2 Units Available
Unit 301/303
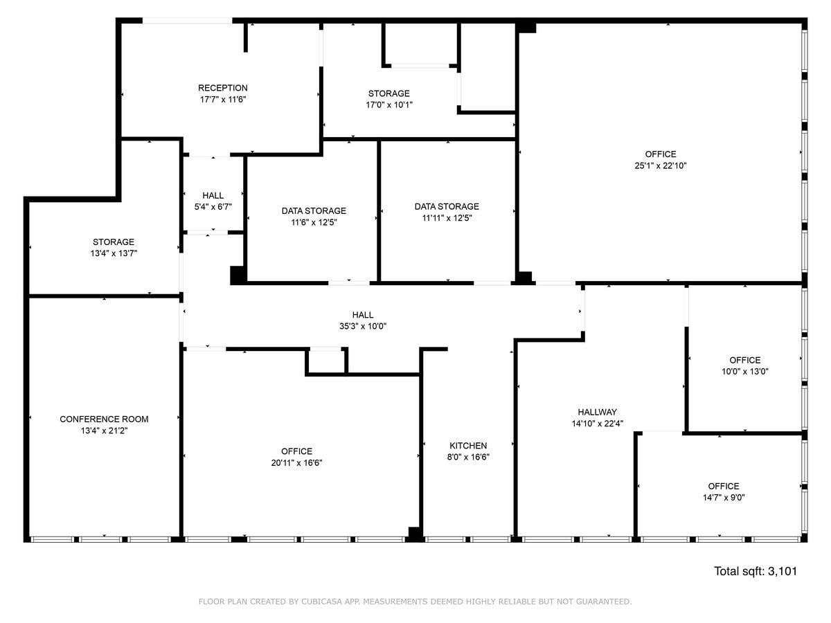
| Unit Size | 3,101 SF | Condo Use | Office/Medical |
| Price | $1,630,805 CAD | Sale Type | Investment or Owner User |
| Price Per SF | $525.90 CAD |
| Unit Size | 3,101 SF |
| Price | $1,630,805 CAD |
| Price Per SF | $525.90 CAD |
| Condo Use | Office/Medical |
| Sale Type | Investment or Owner User |
Description
Top floor, great view!
Sale Notes
Metro access and highway accessibility.
all_floors_7121f_leesburg_pike_falls_church_with_dim
Unit 317
| Unit Size | 1,126 SF | Condo Use | Office |
| Price | $613,854 CAD | Sale Type | Owner User |
| Price Per SF | $545.16 CAD |
| Unit Size | 1,126 SF |
| Price | $613,854 CAD |
| Price Per SF | $545.16 CAD |
| Condo Use | Office |
| Sale Type | Owner User |
Description
Top floor, great view!
Sale Notes
Metro access and highway accessibility.
1-all_floors_7115_leesburg_pike_317_falls_church_with_dim
1-web-or-mls-RMN07912
2-web-or-mls-RMN07917
3-web-or-mls-RMN07922
4-web-or-mls-RMN07927
5-web-or-mls-RMN07932
6-web-or-mls-RMN07937
7-web-or-mls-RMN07942
8-web-or-mls-RMN07947
9-web-or-mls-RMN07952
10-web-or-mls-RMN07957
11-web-or-mls-RMN07962
12-web-or-mls-RMN07969
13-web-or-mls-RMN07980
14-web-or-mls-RMN07985
15-web-or-mls-RMN07991
16-web-or-mls-RMN07997
17-web-or-mls-RMN08008
18-web-or-mls-RMN08013
19-web-or-mls-RMN08019
20-web-or-mls-RMN08025
21-web-or-mls-RMN08030
22-web-or-mls-RMN08036
Presented by
7115 Leesburg Pike - WestMetro Plaza
Hmm, there seems to have been an error sending your message. Please try again.
Thanks! Your message was sent.


