Your email has been sent.
7115 Leesburg Pike - WestMetro Plaza 1,126 - 3,101 SF Condo Units Offered at $618,674 - $1,643,609 CAD Per Unit in Falls Church, VA 22043



Executive Summary
Set your team up for success in this bright, flexible office suite nestled in the heart of Falls Church’s business corridor. The 1,200 SF layout includes a spacious reception area, multiple private offices, and a dedicated conference room, making it ideal for legal, medical, financial, or general professional use. Here you’ll find room to grow, with a prime location near Northern Virginia’s most popular commuter corridors. Situated in a strategic location with standout functionality, 7115 Leesburg Pike #317 offers commercial tenants convenience, visibility, and versatility that gets the job done, while offering support staff a better work-life balance. Since it’s just minutes from Tysons Corner, you’re surrounded by restaurants, banks, and retail. That means maximum convenience for power lunches, errands, and after-hours networking. This move-in-ready suite is perfect for businesses looking to grow in one of Northern Virginia’s most vibrant and prestigious professional hubs. ? 1,200 SF suite with private offices, reception, and conference room ? Bright interior with natural light, modern finishes, kitchenette and hallway workstation ? Professionally managed building with elevator and plenty of on-site parking ? Prime Falls Church location near major commuter routes (I-495, I-66, and Route 7) and Tysons
2 Units Available
- Unit
- Unit Size
- Condo Use
- Price
- NOI
| Sale Type | Investment or Owner User |
| Sale Type | Investment or Owner User |
| Sale Type | Owner User |
| Sale Type | Owner User |
| Unit | Unit Size | Condo Use | Price | NOI |
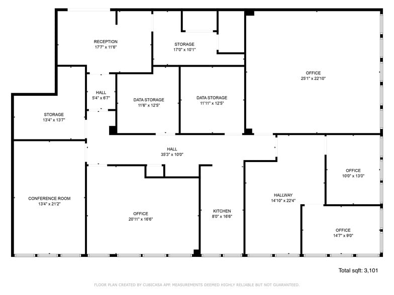
| Unit 301/303 | 3,101 SF | Office/Medical | $1,643,609 CAD ($530.03 CAD/SF) | - |
| Unit 317 | 1,126 SF | Office | $618,674 CAD ($549.44 CAD/SF) | - |
Unit 301/303
| Unit Size |
| 3,101 SF |
| Condo Use |
| Office/Medical |
| Price |
| $1,643,609 CAD ($530.03 CAD/SF) |
| NOI |
| - |
Unit 317
| Unit Size |
| 1,126 SF |
| Condo Use |
| Office |
| Price |
| $618,674 CAD ($549.44 CAD/SF) |
| NOI |
| - |
Unit 301/303
| Unit Size | 3,101 SF |
| Condo Use | Office/Medical |
| Price | $1,643,609 CAD ($530.03 CAD/SF) |
| NOI | - |
| Sale Type | Investment or Owner User |
| Description | |
| Top floor, great view!</li></ul> | |
| Sale Notes | |
| Metro access and highway accessibility.</li></ul> |
Unit 317
| Unit Size | 1,126 SF |
| Condo Use | Office |
| Price | $618,674 CAD ($549.44 CAD/SF) |
| NOI | - |
| Sale Type | Owner User |
| Description | |
| Top floor, great view!</li></ul> | |
| Sale Notes | |
| Metro access and highway accessibility.</li></ul> |
Property Facts
| Total Building Size | 60,000 SF | Typical Floor Size | 20,000 SF |
| Property Type | Office | Year Built | 1966 |
| Building Class | B | Lot Size | 2.38 AC |
| Floors | 3 | Parking Ratio | 3.5/1,000 SF |
| Zoning | C-3 | ||
| Total Building Size | 60,000 SF |
| Property Type | Office |
| Building Class | B |
| Floors | 3 |
| Typical Floor Size | 20,000 SF |
| Year Built | 1966 |
| Lot Size | 2.38 AC |
| Parking Ratio | 3.5/1,000 SF |
| Zoning | C-3 |
Amenities
- 24 Hour Access
- Banking
- Bus Line
- Controlled Access
- Metro/Subway
- Restaurant
- Wheelchair Accessible
- Kitchen
- Reception
- Direct Elevator Exposure
- Natural Light
- Open-Plan
- Recessed Lighting
- Air Conditioning
- Smoke Detector
Presented by
7115 Leesburg Pike - WestMetro Plaza
Hmm, there seems to have been an error sending your message. Please try again.
Thanks! Your message was sent.



