Log In/Sign Up
Your email has been sent.
Executive Summary
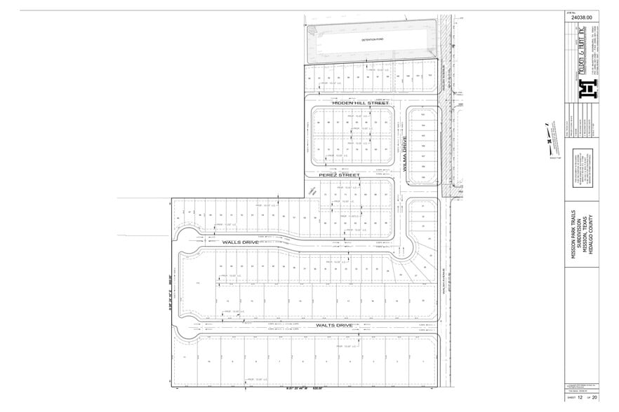
The approved subdivision layout includes 87 patio home lots measuring 36’ x 100’ and 20 four-plex building sites measuring 84’ x 125’, providing a balanced mix of housing options designed to meet the growing demand for attainable residential product. The development benefits from access to a shared 5-acre retention pond located on the north side of the property, which is already established and shared with an adjacent development, helping streamline infrastructure requirements.
With entitlement work completed and a defined development plan in place, this property presents an attractive opportunity to enter the market at an advanced stage while maintaining strong potential returns.
With entitlement work completed and a defined development plan in place, this property presents an attractive opportunity to enter the market at an advanced stage while maintaining strong potential returns.
Property Facts
| Price | $3,414,150 CAD | Property Subtype | Residential |
| Sale Type | Investment | Proposed Use | |
| No. Lots | 1 | Total Lot Size | 19.21 AC |
| Property Type | Land | ||
| Zoning | R3 - Multifamily Residential | ||
| Price | $3,414,150 CAD |
| Sale Type | Investment |
| No. Lots | 1 |
| Property Type | Land |
| Property Subtype | Residential |
| Proposed Use | |
| Total Lot Size | 19.21 AC |
| Zoning | R3 - Multifamily Residential |
1 Lot Available
Lot
| Price | $3,414,150 CAD | Lot Size | 19.21 AC |
| Price Per AC | $177,727.74 CAD |
| Price | $3,414,150 CAD |
| Price Per AC | $177,727.74 CAD |
| Lot Size | 19.21 AC |
An exceptional opportunity to acquire a 19.21-acre undeveloped tract with an approved plat for 107 residential lots, offering investors and developers a clear path to construction and lot sales.
1 1
Fairly walkable
40/100
Exceptionally drivable
100/100
Fairly bikeable
40/100
1 of 6
Videos
Matterport 3D Exterior
Matterport 3D Tour
Photos
Street View
Street
Map
1 of 1
Presented by
715 Walsh Ave
Already a member? Log In
Hmm, there seems to have been an error sending your message. Please try again.
Thanks! Your message was sent.



