Log In/Sign Up
Your email has been sent.
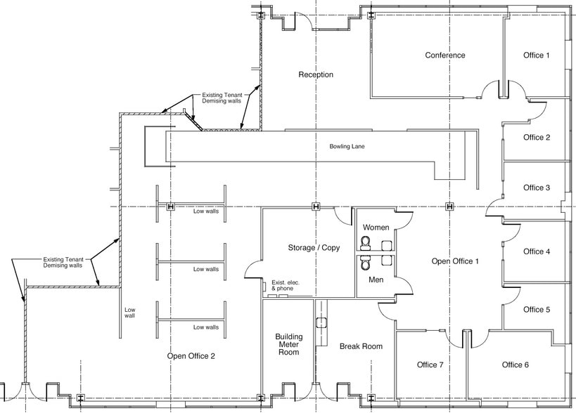
7165 Columbia Gateway Dr
Columbia, MD 21046
Gateway Crossing 95 K · Office Property For Lease
·
8,663 SF


Property Facts
Building Type
Office
Year Built
1987
Building Height
1 Story
Building Size
26,976 SF
Building Class
B
Typical Floor Size
26,976 SF
Parking
200 Surface Parking Spaces
1 of 9
Videos
Matterport 3D Exterior
Matterport 3D Tour
Photos
Street View
Street
Map
