Log In/Sign Up
Your email has been sent.
Investment Highlights
- Freeway signage and visibility, highly motivated seller!
- Call listing brokers for more information
Executive Summary
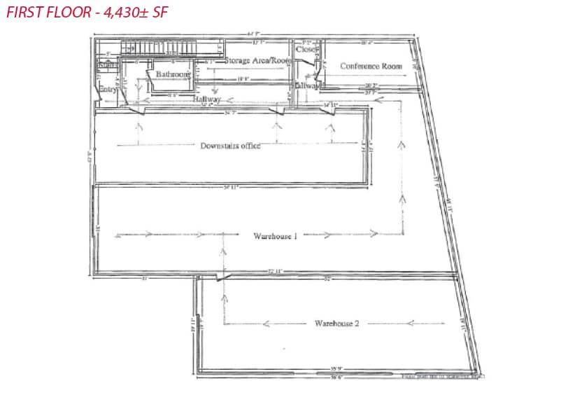
• 5,930± SF 2-Story Building on a 5,670± SF Parcel
• 1,500± SF 2nd Story Office Space
• 2 Roll Up Doors
• Small Gated Yard
• Freeway Signage and Visibility
• Zoning Green/Opportunity (D-CE-5)
• Easy Access to Hwy 880
• 1,500± SF 2nd Story Office Space
• 2 Roll Up Doors
• Small Gated Yard
• Freeway Signage and Visibility
• Zoning Green/Opportunity (D-CE-5)
• Easy Access to Hwy 880
Property Facts
| Sale Type | Investment or Owner User | No. Stories | 2 |
| Sale Condition | REO Sale | Year Built | 1938 |
| Property Type | Industrial | Tenancy | Single |
| Property Subtype | Warehouse | Parking Ratio | 0.67/1,000 SF |
| Building Class | C | No. Drive In / Grade-Level Doors | 2 |
| Lot Size | 0.13 AC | Opportunity Zone |
Yes
|
| Rentable Building Area | 5,930 SF | ||
| Zoning | D-CE-5 | ||
| Sale Type | Investment or Owner User |
| Sale Condition | REO Sale |
| Property Type | Industrial |
| Property Subtype | Warehouse |
| Building Class | C |
| Lot Size | 0.13 AC |
| Rentable Building Area | 5,930 SF |
| No. Stories | 2 |
| Year Built | 1938 |
| Tenancy | Single |
| Parking Ratio | 0.67/1,000 SF |
| No. Drive In / Grade-Level Doors | 2 |
| Opportunity Zone |
Yes |
| Zoning | D-CE-5 |
Amenities
- Fenced Lot
1 1
Fairly walkable
50/100
Exceptionally drivable
90/100
Good public transit
70/100
Moderately bikeable
60/100
Property Taxes
| Parcel Number | 019-0067-002-02 | Improvements Assessment | $1,636,398 CAD |
| Land Assessment | $704,363 CAD | Total Assessment | $2,340,761 CAD |
Property Taxes
Parcel Number
019-0067-002-02
Land Assessment
$704,363 CAD
Improvements Assessment
$1,636,398 CAD
Total Assessment
$2,340,761 CAD
1 of 6
Videos
Matterport 3D Exterior
Matterport 3D Tour
Photos
Street View
Street
Map
1 of 1
Presented by
718 Kennedy St
Already a member? Log In
Hmm, there seems to have been an error sending your message. Please try again.
Thanks! Your message was sent.



