Your email has been sent.
720049 RR63 8,976 SF Industrial Building Clairmont, AB T0H 0W0 $2,400,000 CAD ($267.38 CAD/SF)



Investment Highlights
- High-Exposure Lot – 3.16 acres with prime visibility near major highways.
- Expandable Site – Fully fenced, serviced, and additional land available.
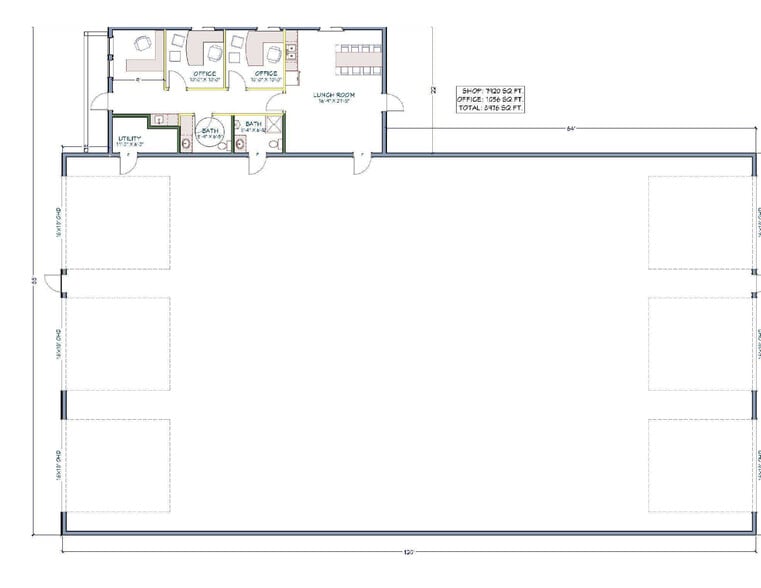
- Move-In Ready – New 8,976 sq ft shop with offices and 6 overhead doors.
Executive Summary
Property Facts
| Price | $2,400,000 CAD | Lot Size | 3.16 AC |
| Price Per SF | $267.38 CAD | Construction Status | Proposed |
| Sale Type | Investment or Owner User | Rentable Building Area | 8,976 SF |
| Sale Condition | Lease Option | No. Stories | 1 |
| Property Type | Industrial | Year Built | 2026 |
| Property Subtype | Warehouse | Tenancy | Single |
| Building Class | C | No. Drive In / Grade-Level Doors | 3 |
| Zoning | GC - General Industrial Zone | ||
| Price | $2,400,000 CAD |
| Price Per SF | $267.38 CAD |
| Sale Type | Investment or Owner User |
| Sale Condition | Lease Option |
| Property Type | Industrial |
| Property Subtype | Warehouse |
| Building Class | C |
| Lot Size | 3.16 AC |
| Construction Status | Proposed |
| Rentable Building Area | 8,976 SF |
| No. Stories | 1 |
| Year Built | 2026 |
| Tenancy | Single |
| No. Drive In / Grade-Level Doors | 3 |
| Zoning | GC - General Industrial Zone |
Amenities
- Yard
Space Availability
- Space
- Size
- Space Use
- Build-Out
- Available
(3) 120' DRIVE THROUGH BAYS AND PLENTY OF FENCED YARD with prime frontage to get your business noticed on this very busy route. BRAND NEW build with 6) 16' W X 18 'H Overhead doors. Reception and 2 offices plus lunchroom/ Boardroom/ locker room and separate shop and office bathroom. Yard will be complete with well packed gravel and fully fenced. Need more yard, shop or something custom? Reach out . Adjoining 4.33 acres can be lease as well. Base rent $16,456 month plus Additional rent $3740 = $20,196/Month plus GST.
| Space | Size | Space Use | Build-Out | Available |
| 1st Floor | 8,976 SF | Industrial | Full Build-Out | Now |
1st Floor
| Size |
| 8,976 SF |
| Space Use |
| Industrial |
| Build-Out |
| Full Build-Out |
| Available |
| Now |
1st Floor
| Size | 8,976 SF |
| Space Use | Industrial |
| Build-Out | Full Build-Out |
| Available | Now |
(3) 120' DRIVE THROUGH BAYS AND PLENTY OF FENCED YARD with prime frontage to get your business noticed on this very busy route. BRAND NEW build with 6) 16' W X 18 'H Overhead doors. Reception and 2 offices plus lunchroom/ Boardroom/ locker room and separate shop and office bathroom. Yard will be complete with well packed gravel and fully fenced. Need more yard, shop or something custom? Reach out . Adjoining 4.33 acres can be lease as well. Base rent $16,456 month plus Additional rent $3740 = $20,196/Month plus GST.
Presented by
720049 RR63
Hmm, there seems to have been an error sending your message. Please try again.
Thanks! Your message was sent.
