Your email has been sent.
HIGHLIGHTS
- The space features a reception area, workstations, private restrooms, and a conference room.
- A 6-inch thick warehouse floor and LED lighting create a high-performance, move-in ready environment.
- Suites offer 24-hour access, ideal for businesses with evening or weekend operations.
- The property features 13 loading docks and 40-foot clear heights, supporting logistics, showroom, and warehouse uses.
- Select suites include furniture such as reception desks and workstations at no additional cost.
- Tenants benefit from direct access to Metro, Amtrak, and major highways including I-270.
FEATURES
ALL AVAILABLE SPACES(3)
Display Rental Rate as
- SPACE
- SIZE
- TERM
- RENTAL RATE
- SPACE USE
- CONDITION
- AVAILABLE
725 Rockville Pike offers the only warehouse opportunity along this highly visible corridor. The available space includes 15,000 SF of warehouse, 1,750 SF of office, and a 600 SF shipping/receiving area. With 40' ceiling height, one loading dock, and LED lighting throughout, this high-quality facility is ideal for logistics or light industrial use—just minutes from Metro, Amtrak, and commuter buses.
- Lease rate does not include utilities, property expenses or building services
- Space is in Excellent Condition
- 15,000 SF warehouse + office space
- Steps from Metro and Amtrak
- Includes 1,750 SF of dedicated office space
- 1 Loading Dock
- 40' ceiling and one loading dock
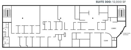
725 Rockville Pike offers 12,000 SF of move-in ready office space on the third floor in Rockville’s premier commercial hub. The suite features a flexible layout with elevator access, private restrooms, and a large kitchen—ideal for a professional office or headquarters. Tenants benefit from double-door entry, great visibility, and immediate access to I-270 and abundant nearby amenities.
- Listed lease rate plus proportional share of cleaning costs
- Private Restrooms
- Private restrooms and kitchen
- Kitchen
- 12,000 SF move-in ready office
- Easy access to I-270 corridor
725 Rockville Pike offers 89,100 SF of fully conditioned showroom space in a high-visibility Rockville location. The space is divisible and features 18-foot clear height, one loading dock, and a parking ratio of 2.0 per 1,000 SF. Tenants benefit from excellent access to I-270 and a dynamic retail environment anchored by Goodwill and Movement Rockville.
- Lease rate does not include utilities, property expenses or building services
- Located in-line with other retail
- 1 Loading Dock
- One dock with 18' clear height
- Fully Built-Out as Standard Retail Space
- Space is in Excellent Condition
- 89,100 SF showroom for lease
- Divisible space with 170 parking spots
| Space | Size | Term | Rental Rate | Space Use | Condition | Available |
| 1st Floor | 17,350 SF | 5-10 Years | $16.55 CAD/SF/YR $1.38 CAD/SF/MO $287,093 CAD/YR $23,924 CAD/MO | Industrial | Full Build-Out | Now |
| 3rd Floor, Ste 300 | 12,000 SF | Negotiable | $19.31 CAD/SF/YR $1.61 CAD/SF/MO $231,660 CAD/YR $19,305 CAD/MO | Office | - | 30 Days |
| 4th Floor | 39,000-81,500 SF | 5-10 Years | Upon Request Upon Request Upon Request Upon Request | Retail | Full Build-Out | 2026-01-01 |
1st Floor
| Size |
| 17,350 SF |
| Term |
| 5-10 Years |
| Rental Rate |
| $16.55 CAD/SF/YR $1.38 CAD/SF/MO $287,093 CAD/YR $23,924 CAD/MO |
| Space Use |
| Industrial |
| Condition |
| Full Build-Out |
| Available |
| Now |
3rd Floor, Ste 300
| Size |
| 12,000 SF |
| Term |
| Negotiable |
| Rental Rate |
| $19.31 CAD/SF/YR $1.61 CAD/SF/MO $231,660 CAD/YR $19,305 CAD/MO |
| Space Use |
| Office |
| Condition |
| - |
| Available |
| 30 Days |
4th Floor
| Size |
| 39,000-81,500 SF |
| Term |
| 5-10 Years |
| Rental Rate |
| Upon Request Upon Request Upon Request Upon Request |
| Space Use |
| Retail |
| Condition |
| Full Build-Out |
| Available |
| 2026-01-01 |
1st Floor
| Size | 17,350 SF |
| Term | 5-10 Years |
| Rental Rate | $16.55 CAD/SF/YR |
| Space Use | Industrial |
| Condition | Full Build-Out |
| Available | Now |
725 Rockville Pike offers the only warehouse opportunity along this highly visible corridor. The available space includes 15,000 SF of warehouse, 1,750 SF of office, and a 600 SF shipping/receiving area. With 40' ceiling height, one loading dock, and LED lighting throughout, this high-quality facility is ideal for logistics or light industrial use—just minutes from Metro, Amtrak, and commuter buses.
- Lease rate does not include utilities, property expenses or building services
- Includes 1,750 SF of dedicated office space
- Space is in Excellent Condition
- 1 Loading Dock
- 15,000 SF warehouse + office space
- 40' ceiling and one loading dock
- Steps from Metro and Amtrak
3rd Floor, Ste 300
| Size | 12,000 SF |
| Term | Negotiable |
| Rental Rate | $19.31 CAD/SF/YR |
| Space Use | Office |
| Condition | - |
| Available | 30 Days |
725 Rockville Pike offers 12,000 SF of move-in ready office space on the third floor in Rockville’s premier commercial hub. The suite features a flexible layout with elevator access, private restrooms, and a large kitchen—ideal for a professional office or headquarters. Tenants benefit from double-door entry, great visibility, and immediate access to I-270 and abundant nearby amenities.
- Listed lease rate plus proportional share of cleaning costs
- Kitchen
- Private Restrooms
- 12,000 SF move-in ready office
- Private restrooms and kitchen
- Easy access to I-270 corridor
4th Floor
| Size | 39,000-81,500 SF |
| Term | 5-10 Years |
| Rental Rate | Upon Request |
| Space Use | Retail |
| Condition | Full Build-Out |
| Available | 2026-01-01 |
725 Rockville Pike offers 89,100 SF of fully conditioned showroom space in a high-visibility Rockville location. The space is divisible and features 18-foot clear height, one loading dock, and a parking ratio of 2.0 per 1,000 SF. Tenants benefit from excellent access to I-270 and a dynamic retail environment anchored by Goodwill and Movement Rockville.
- Lease rate does not include utilities, property expenses or building services
- Fully Built-Out as Standard Retail Space
- Located in-line with other retail
- Space is in Excellent Condition
- 1 Loading Dock
- 89,100 SF showroom for lease
- One dock with 18' clear height
- Divisible space with 170 parking spots
PROPERTY OVERVIEW
725 Rockville Pike is a 192,000-SF multi-tenant industrial showroom in the heart of Rockville’s commercial corridor. This four-story building offers a unique combination of fully conditioned showroom, turnkey office suites, and warehouse space with 40-foot clear height and 3 loading docks—designed to accommodate a wide range of operational needs. The facility includes a durable 6-inch thick warehouse floor, LED lighting, and prominent signage opportunities, all just minutes from the Rockville Metro Station, Amtrak, and multiple commuter bus lines.
SHOWROOM FACILITY FACTS
DEMOGRAPHICS
REGIONAL ACCESSIBILITY
Presented by
725 Rockville Pike
Hmm, there seems to have been an error sending your message. Please try again.
Thanks! Your message was sent.








