Log In/Sign Up
Your email has been sent.
725 Shipping St NE - Salem Columbus Club 10,560 SF Specialty Building Offered at $1,095,061 CAD in Salem, OR 97301



Executive Summary
Prime 12-Unit Redevelopment Opportunity in the Heart of Salem
Unlock the potential of this strategically located site at 725 Shipping St NE. Currently positioned for a high-density transition, this property offers a rare footprint for a 12-unit residential complex. With Salem’s growing demand for urban housing, this concept maximizes the lot’s efficiency while providing future tenants with unparalleled access to downtown and the I-5 corridor.
Key Highlights:
- Density & Scale: Optimized site layout for a 12-unit multi-family build.
- Strategic Location: Blocks away from local transit, shopping, and major employment hubs.
- Infrastructure Ready: Existing utility access simplifies the initial phases of site prep.
Market Demand: Perfect for a mix of studios and one-bedroom units to target the local workforce.
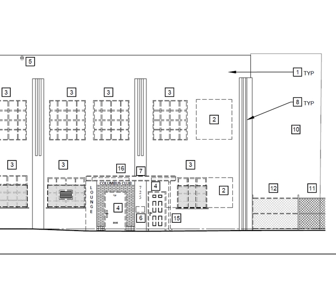
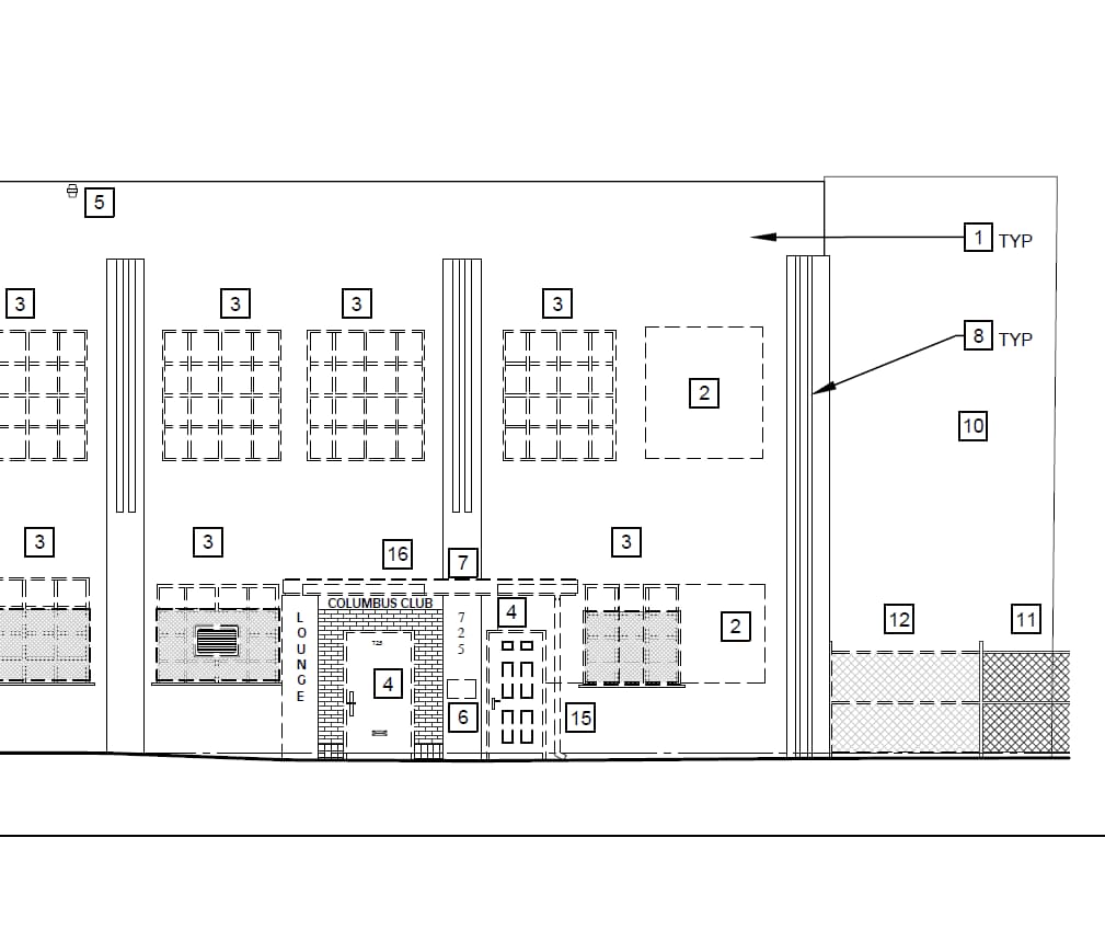
Mixed-Used (MU-II) zoning has opened up many possibilities for this property. The 5,170 square-foot second story houses a ballroom, restrooms, full bar, kitchen, and storage. The 5,090 square-foot main level contains a "lounge", full bar, offices, kitchen, dining area, restrooms, and meeting rooms. A fenced and graveled storage yard could be used for parking, outdoor dining, food trucks, or new construction.
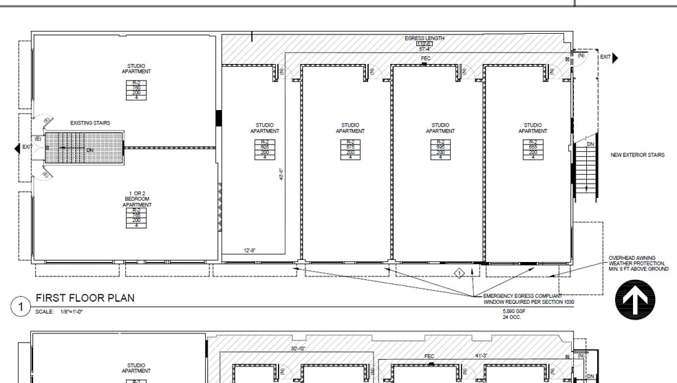
Ideas for the existing building include a 12-unit apartment building (site plan has been approved), microbrewery or taphouse, coffee, event center, restaurant, bar, etc. The ballroom is still regularly being used, but the building will require significant improvements to utilize all areas. The Seller is open to a traditional sale and also is open to discussing creative partnerships or development ideas.
Building currently is leased to existing tenants on a month-to-month basis.
Unlock the potential of this strategically located site at 725 Shipping St NE. Currently positioned for a high-density transition, this property offers a rare footprint for a 12-unit residential complex. With Salem’s growing demand for urban housing, this concept maximizes the lot’s efficiency while providing future tenants with unparalleled access to downtown and the I-5 corridor.
Key Highlights:
- Density & Scale: Optimized site layout for a 12-unit multi-family build.
- Strategic Location: Blocks away from local transit, shopping, and major employment hubs.
- Infrastructure Ready: Existing utility access simplifies the initial phases of site prep.
Market Demand: Perfect for a mix of studios and one-bedroom units to target the local workforce.
Mixed-Used (MU-II) zoning has opened up many possibilities for this property. The 5,170 square-foot second story houses a ballroom, restrooms, full bar, kitchen, and storage. The 5,090 square-foot main level contains a "lounge", full bar, offices, kitchen, dining area, restrooms, and meeting rooms. A fenced and graveled storage yard could be used for parking, outdoor dining, food trucks, or new construction.
Ideas for the existing building include a 12-unit apartment building (site plan has been approved), microbrewery or taphouse, coffee, event center, restaurant, bar, etc. The ballroom is still regularly being used, but the building will require significant improvements to utilize all areas. The Seller is open to a traditional sale and also is open to discussing creative partnerships or development ideas.
Building currently is leased to existing tenants on a month-to-month basis.
Property Facts
Moderately walkable
70/100
Moderately drivable
70/100
Some public transit
40/100
Moderately bikeable
70/100
Property Taxes
| Parcel Number | 584674 | Improvements Assessment | $0 CAD |
| Land Assessment | $0 CAD | Total Assessment | $703,742 CAD |
Property Taxes
Parcel Number
584674
Land Assessment
$0 CAD
Improvements Assessment
$0 CAD
Total Assessment
$703,742 CAD
1 of 25
Videos
Matterport 3D Exterior
Matterport 3D Tour
Photos
Street View
Street
Map
Presented by
725 Shipping St NE - Salem Columbus Club
Already a member? Log In
Hmm, there seems to have been an error sending your message. Please try again.
Thanks! Your message was sent.

