Your email has been sent.
Highlights
- Five-story medical office building with elevator service.
- Free surface parking with EV charging stations.
- Minutes from St. Joseph and CHOC Hospitals.
- Upgraded lobby and outdoor spaces for tenant comfort.
- Prominent frontage along SR-22 Freeway.
- Tenant improvement allowance and relocation support available.
Display Rental Rate as
- Space
- Size
- Term
- Rental Rate
- Space Use
- Build-Out
- Available
First-floor suite offering a flexible layout for medical use. Convenient access to building amenities and immediate occupancy available.
- Fits 10 - 30 People
- Natural Light
- First-floor medical suite
- Flexible design options
- Central Air Conditioning
- Wheelchair Accessible
- Immediate occupancy available
| Space | Size | Term | Rental Rate | Space Use | Build-Out | Available |
| 1st Floor, Ste 100 | 3,643 SF | Negotiable | Upon Request Upon Request Upon Request Upon Request | Office/Medical | - | 2026-09-01 |
1st Floor, Ste 100
| Size |
| 3,643 SF |
| Term |
| Negotiable |
| Rental Rate |
| Upon Request Upon Request Upon Request Upon Request |
| Space Use |
| Office/Medical |
| Build-Out |
| - |
| Available |
| 2026-09-01 |
- Space
- Size
- Term
- Rental Rate
- Space Use
- Build-Out
- Available
First-floor suite offering a flexible layout for medical use. Convenient access to building amenities and immediate occupancy available.
- Fits 10 - 30 People
- Natural Light
- First-floor medical suite
- Flexible design options
- Central Air Conditioning
- Wheelchair Accessible
- Immediate occupancy available
Second-floor suite ideal for specialized medical practices. Positioned near elevators for easy patient access. Excellent natural light and convenient circulation.
- Fully Built-Out as Standard Medical Space
- Central Air Conditioning
- Wheelchair Accessible
- Near elevator access
- Mostly Open Floor Plan Layout
- Private Restrooms
- Second-floor location
- Adaptable medical layout
Full-floor opportunity for surgery center or large clinic. Offers maximum design flexibility and privacy. Efficient layout for outpatient services. Positioned for easy patient flow.
- Fully Built-Out as Standard Medical Space
- Central Air Conditioning
- Wheelchair Accessible
- Practical medical layout
- Mostly Open Floor Plan Layout
- Private Restrooms
- Ideal for surgery center
- Extensive planning options
| Space | Size | Term | Rental Rate | Space Use | Build-Out | Available |
| 1st Floor, Ste 100 | 3,643 SF | Negotiable | Upon Request Upon Request Upon Request Upon Request | Office/Medical | - | 2026-09-01 |
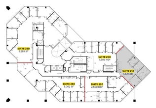
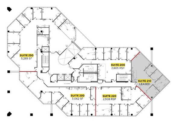
| 2nd Floor | 2,508-13,464 SF | Negotiable | Upon Request Upon Request Upon Request Upon Request | Medical | Full Build-Out | Now |
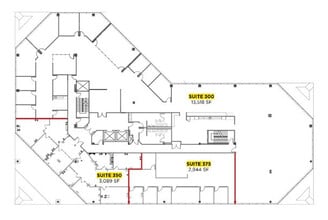
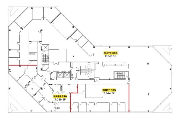
| 3rd Floor | 5,200-19,551 SF | Negotiable | Upon Request Upon Request Upon Request Upon Request | Medical | Full Build-Out | Now |
1st Floor, Ste 100
| Size |
| 3,643 SF |
| Term |
| Negotiable |
| Rental Rate |
| Upon Request Upon Request Upon Request Upon Request |
| Space Use |
| Office/Medical |
| Build-Out |
| - |
| Available |
| 2026-09-01 |
2nd Floor
| Size |
| 2,508-13,464 SF |
| Term |
| Negotiable |
| Rental Rate |
| Upon Request Upon Request Upon Request Upon Request |
| Space Use |
| Medical |
| Build-Out |
| Full Build-Out |
| Available |
| Now |
3rd Floor
| Size |
| 5,200-19,551 SF |
| Term |
| Negotiable |
| Rental Rate |
| Upon Request Upon Request Upon Request Upon Request |
| Space Use |
| Medical |
| Build-Out |
| Full Build-Out |
| Available |
| Now |
1st Floor, Ste 100
| Size | 3,643 SF |
| Term | Negotiable |
| Rental Rate | Upon Request |
| Space Use | Office/Medical |
| Build-Out | - |
| Available | 2026-09-01 |
First-floor suite offering a flexible layout for medical use. Convenient access to building amenities and immediate occupancy available.
- Fits 10 - 30 People
- Central Air Conditioning
- Natural Light
- Wheelchair Accessible
- First-floor medical suite
- Immediate occupancy available
- Flexible design options
2nd Floor
| Size | 2,508-13,464 SF |
| Term | Negotiable |
| Rental Rate | Upon Request |
| Space Use | Medical |
| Build-Out | Full Build-Out |
| Available | Now |
Second-floor suite ideal for specialized medical practices. Positioned near elevators for easy patient access. Excellent natural light and convenient circulation.
- Fully Built-Out as Standard Medical Space
- Mostly Open Floor Plan Layout
- Central Air Conditioning
- Private Restrooms
- Wheelchair Accessible
- Second-floor location
- Near elevator access
- Adaptable medical layout
3rd Floor
| Size | 5,200-19,551 SF |
| Term | Negotiable |
| Rental Rate | Upon Request |
| Space Use | Medical |
| Build-Out | Full Build-Out |
| Available | Now |
Full-floor opportunity for surgery center or large clinic. Offers maximum design flexibility and privacy. Efficient layout for outpatient services. Positioned for easy patient flow.
- Fully Built-Out as Standard Medical Space
- Mostly Open Floor Plan Layout
- Central Air Conditioning
- Private Restrooms
- Wheelchair Accessible
- Ideal for surgery center
- Practical medical layout
- Extensive planning options
Property Overview
725 W Town and Country Road is a five-story, Class A medical office building offering a modern, professional environment for healthcare providers. The property features an upgraded lobby and inviting outdoor spaces designed for collaboration and relaxation, enhancing the overall tenant experience. With elevator service and a multi-tenant layout, the building accommodates a variety of medical practices. Tenants benefit from free surface parking, including EV charging stations, and enjoy convenient access to the SR-22 Freeway for seamless connectivity throughout Orange County. The property is strategically located just minutes from St. Joseph Hospital and CHOC Children’s Hospital, making it an ideal setting for medical professionals seeking proximity to major healthcare institutions. Additional advantages include competitive operating expenses and available tenant improvement allowances, supported by full design and project management services to facilitate smooth relocations for medical groups.
- Atrium
- Security System
- Energy Star Labeled
- Car Charging Station
- Monument Signage
- Outdoor Seating
Property Facts
Presented by
Centrum South | 725 W Town and Country Rd
Hmm, there seems to have been an error sending your message. Please try again.
Thanks! Your message was sent.










