Log In/Sign Up
Your email has been sent.
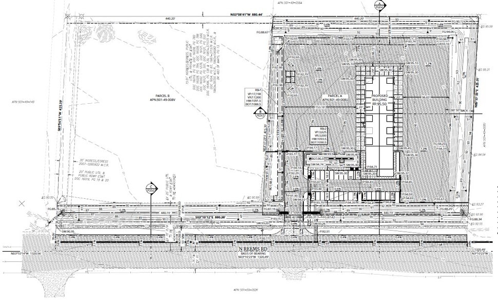
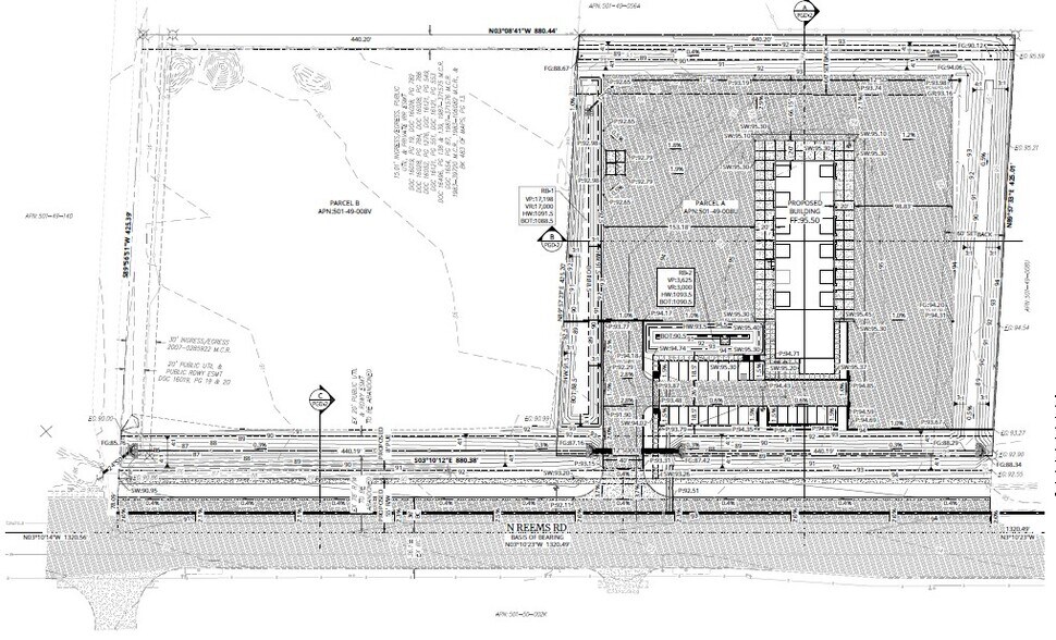
7250-7300 N Reems Rd - 4.3 or 8.6 Acres for BTS, Glendale, AZ 8.6 Acres of Industrial Land in Litchfield Park, AZ 85340



Executive Summary
Owner/Agent
Property Facts
1 Lot Available
Lot
| Lot Size | 8.60 AC |
| Lot Size | 8.60 AC |
PAD, city of Glendale (Variable Industrial Outdoor Storage uses approved, comparable to M-1 zoning). Build to Suit opportunity, for lease only, not for sale. Owner will develop either a 4 or 8 acre site for an industrial user on a long term lease.
Description
PAD, city of Glendale (Variable Industrial Outdoor Storage uses approved, comparable to M-1 zoning). Build to Suit opportunity, for lease only, not for sale. Owner will develop either a 4 or 8 acre site for an industrial user on a long term lease. Owner/Agent.
1 1
Not walkable
10/100
Exceptionally drivable
100/100
Somewhat bikeable
30/100
Property Taxes
| Parcel Numbers | Improvements Assessment | $0 CAD | |
| Land Assessment | $41,929 CAD | Total Assessment | $41,929 CAD |
Property Taxes
Parcel Numbers
Land Assessment
$41,929 CAD
Improvements Assessment
$0 CAD
Total Assessment
$41,929 CAD
1 of 4
Videos
Matterport 3D Exterior
Matterport 3D Tour
Photos
Street View
Street
Map
1 of 1
Presented by
7250-7300 N Reems Rd - 4.3 or 8.6 Acres for BTS, Glendale, AZ
Already a member? Log In
Hmm, there seems to have been an error sending your message. Please try again.
Thanks! Your message was sent.
