Log In/Sign Up
Your email has been sent.
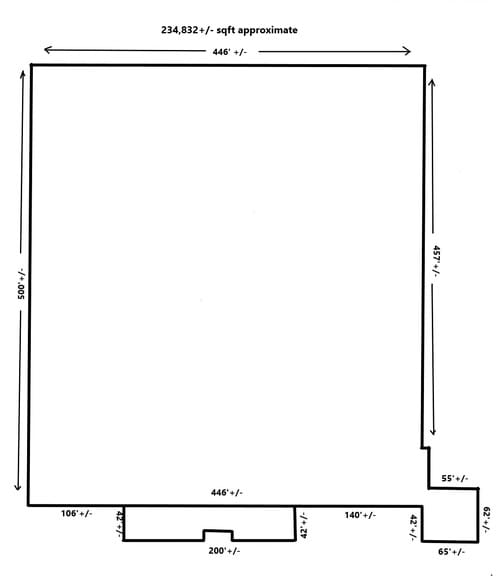
7301 Victory Blvd 234,832 SF 100% Leased Industrial Building Newport, AR 72112 $6,397,528 CAD ($27.24 CAD/SF) 9.25% Cap Rate



Executive Summary
Property is leased to Bad Boy Mowers. Current lease started 11.1.25 and goes through 10.31.30 with one 5 year option for renewal at substantial increase. Tenant has invested around $1,000,000 in tenant improvements. Landlord has invested $1.5 million or so above acquisition price. This is an incredible value for the price.
Property Facts
| Price | $6,397,528 CAD | Rentable Building Area | 234,832 SF |
| Price Per SF | $27.24 CAD | No. Stories | 1 |
| Sale Type | Investment | Year Built/Renovated | 1950/2021 |
| Cap Rate | 9.25% | Clear Ceiling Height | 22’ |
| Sale Condition | Ground Lease (Leased Fee) | No. Dock-High Doors/Loading | 11 |
| Property Type | Industrial | No. Drive In / Grade-Level Doors | 4 |
| Property Subtype | Warehouse | Opportunity Zone |
Yes
|
| Lot Size | 23.50 AC | ||
| Zoning | Industrial - Industrial | ||
| Price | $6,397,528 CAD |
| Price Per SF | $27.24 CAD |
| Sale Type | Investment |
| Cap Rate | 9.25% |
| Sale Condition | Ground Lease (Leased Fee) |
| Property Type | Industrial |
| Property Subtype | Warehouse |
| Lot Size | 23.50 AC |
| Rentable Building Area | 234,832 SF |
| No. Stories | 1 |
| Year Built/Renovated | 1950/2021 |
| Clear Ceiling Height | 22’ |
| No. Dock-High Doors/Loading | 11 |
| No. Drive In / Grade-Level Doors | 4 |
| Opportunity Zone |
Yes |
| Zoning | Industrial - Industrial |
Amenities
- Fenced Lot
- Storage Space
- Fluorescent Lighting
Utilities
- Lighting - Fluorescent
- Gas - Natural
- Water - City
- Sewer - City
- Heating - Gas
Major Tenants Click Here to Access
- Tenant
- Industry
- SF Occupied
- Rent/SF
- Lease End
- Bad Boy Mowers
- Manufacturing
- -
- -
-
Jan 0000
| Tenant | Industry | SF Occupied | Rent/SF | Lease End | ||
| Bad Boy Mowers | Manufacturing | - | - | Jan 0000 |
1 1
Exceptionally drivable
100/100
Somewhat bikeable
30/100
Property Taxes
| Parcel Numbers | Improvements Assessment | $265,778 CAD | |
| Land Assessment | $74,999 CAD | Total Assessment | $340,777 CAD |
Property Taxes
Parcel Numbers
Land Assessment
$74,999 CAD
Improvements Assessment
$265,778 CAD
Total Assessment
$340,777 CAD
1 of 19
Videos
Matterport 3D Exterior
Matterport 3D Tour
Photos
Street View
Street
Map
1 of 1
Presented by
7301 Victory Blvd
Already a member? Log In
Hmm, there seems to have been an error sending your message. Please try again.
Thanks! Your message was sent.
