Log In/Sign Up
Your email has been sent.
Executive Summary
Property Overview:
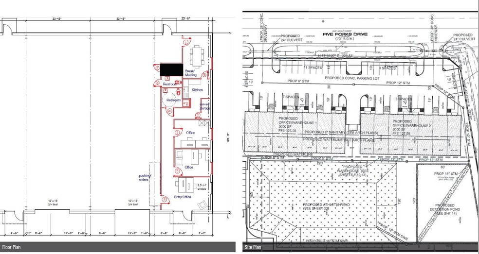
9,000sqft building, 1,000sqft office, (4) 12’x16’ grade level doors, 18’ eave height, 3 phase power
For Sale: $1,600,000.00
9,000sqft building, 1,000sqft office, (4) 12’x16’ grade level doors, 18’ eave height, 3 phase power
For Sale: $1,600,000.00
Property Facts
| Price | $2,188,048 CAD | Rentable Building Area | 9,000 SF |
| Price Per SF | $243.12 CAD | No. Stories | 1 |
| Sale Type | Investment or Owner User | Year Built | 2022 |
| Property Type | Industrial | Tenancy | Single |
| Property Subtype | Warehouse | Parking Ratio | 2.44/1,000 SF |
| Building Class | B | Clear Ceiling Height | 18’ |
| Lot Size | 1.00 AC | No. Drive In / Grade-Level Doors | 4 |
| Price | $2,188,048 CAD |
| Price Per SF | $243.12 CAD |
| Sale Type | Investment or Owner User |
| Property Type | Industrial |
| Property Subtype | Warehouse |
| Building Class | B |
| Lot Size | 1.00 AC |
| Rentable Building Area | 9,000 SF |
| No. Stories | 1 |
| Year Built | 2022 |
| Tenancy | Single |
| Parking Ratio | 2.44/1,000 SF |
| Clear Ceiling Height | 18’ |
| No. Drive In / Grade-Level Doors | 4 |
Amenities
- Front Loading
Utilities
- Water
- Sewer
Property Taxes
| Parcel Number | 0421840000045 | Improvements Assessment | $764,751 CAD |
| Land Assessment | $1,566,103 CAD | Total Assessment | $2,330,854 CAD |
Property Taxes
Parcel Number
0421840000045
Land Assessment
$1,566,103 CAD
Improvements Assessment
$764,751 CAD
Total Assessment
$2,330,854 CAD
1 of 6
Videos
Matterport 3D Exterior
Matterport 3D Tour
Photos
Street View
Street
Map
Presented by
7315 Five Forks
Already a member? Log In
Hmm, there seems to have been an error sending your message. Please try again.
Thanks! Your message was sent.




