Log In/Sign Up
Your email has been sent.
7399 Assateague Dr 2,284 SF Retail Building Jessup, MD 20794 $2,705,750 CAD ($1,184.65 CAD/SF)



Executive Summary
Prime Commercial Opportunity in Jessup, MD – 2,094 SF Standalone Building
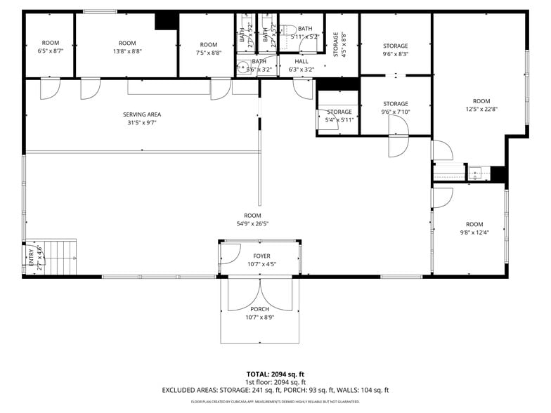
Position your business for success with this versatile 2,094 sq. ft. commercial building located in a highly accessible area of Jessup. This well-laid-out property features a spacious open floor plan, multiple private rooms, storage areas, and existing infrastructure that can accommodate a variety of business uses.
Previously configured for financial services, the layout lends itself perfectly to a bank, coffee shop, professional office, or boutique retail concept. With strong visibility and convenient access, the property also presents an exciting opportunity for many other possible uses.
Property Highlights:
2,094 sq. ft. single-story commercial building
Flexible layout with large open area + multiple private rooms
Existing service areas, storage, and restrooms
Welcoming entry with foyer and porch
Ample on-site parking
High adaptability for multiple business types
Whether you're an owner-user or investor, this property offers the flexibility and location to bring your vision to life.
Zoning allows for a variety of uses – buyer to verify with local authorities.
?? Contact today for more information or to schedule a tour!
Position your business for success with this versatile 2,094 sq. ft. commercial building located in a highly accessible area of Jessup. This well-laid-out property features a spacious open floor plan, multiple private rooms, storage areas, and existing infrastructure that can accommodate a variety of business uses.
Previously configured for financial services, the layout lends itself perfectly to a bank, coffee shop, professional office, or boutique retail concept. With strong visibility and convenient access, the property also presents an exciting opportunity for many other possible uses.
Property Highlights:
2,094 sq. ft. single-story commercial building
Flexible layout with large open area + multiple private rooms
Existing service areas, storage, and restrooms
Welcoming entry with foyer and porch
Ample on-site parking
High adaptability for multiple business types
Whether you're an owner-user or investor, this property offers the flexibility and location to bring your vision to life.
Zoning allows for a variety of uses – buyer to verify with local authorities.
?? Contact today for more information or to schedule a tour!
Property Facts
Sale Type
Owner User
Property Type
Retail
Property Subtype
Bank
Building Size
2,284 SF
Building Class
B
Year Built
1973
Price
$2,705,750 CAD
Price Per SF
$1,184.65 CAD
Tenancy
Single
Building Height
1 Story
Building FAR
0.07
Lot Size
0.79 AC
Zoning
M2 - M2 zoning is a zoning designation for heavy industrial areas that are used for manufacturing, processing, and assembly.
Parking
25 Spaces (10.95 Spaces per 1,000 SF Leased)
Frontage
45’ on Assateague Dr
Amenities
- Banking
- Pylon Sign
- Signage
- Drive Thru
Fairly walkable
50/100
Exceptionally drivable
100/100
Limited public transit
30/100
Somewhat bikeable
30/100
Nearby Major Retailers
Property Taxes
| Parcel Number | 06-400469 | Improvements Assessment | $548,274 CAD |
| Land Assessment | $1,087,917 CAD | Total Assessment | $1,636,191 CAD |
Property Taxes
Parcel Number
06-400469
Land Assessment
$1,087,917 CAD
Improvements Assessment
$548,274 CAD
Total Assessment
$1,636,191 CAD
1 of 5
Videos
Matterport 3D Exterior
Matterport 3D Tour
Photos
Street View
Street
Map
Presented by
7399 Assateague Dr
Already a member? Log In
Hmm, there seems to have been an error sending your message. Please try again.
Thanks! Your message was sent.
