Log In/Sign Up
Your email has been sent.
Highlights
- 43,270 Sq. Ft. 1 Story Building
- Large Column Free Sections
- Fireproof
- 15’5 - 30’ Ceiling Height Throughout
- Electric Power
- Gas Heat
Features
Clear Height
30’
Drive In Bays
2
Interior Dock Doors
4
All Available Spaces(2)
Display Rental Rate as
- Space
- Size
- Term
- Rental Rate
- Space Use
- Build-Out
- Available
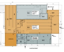
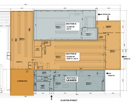
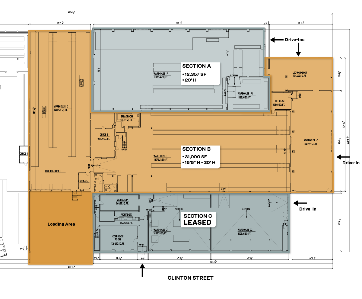
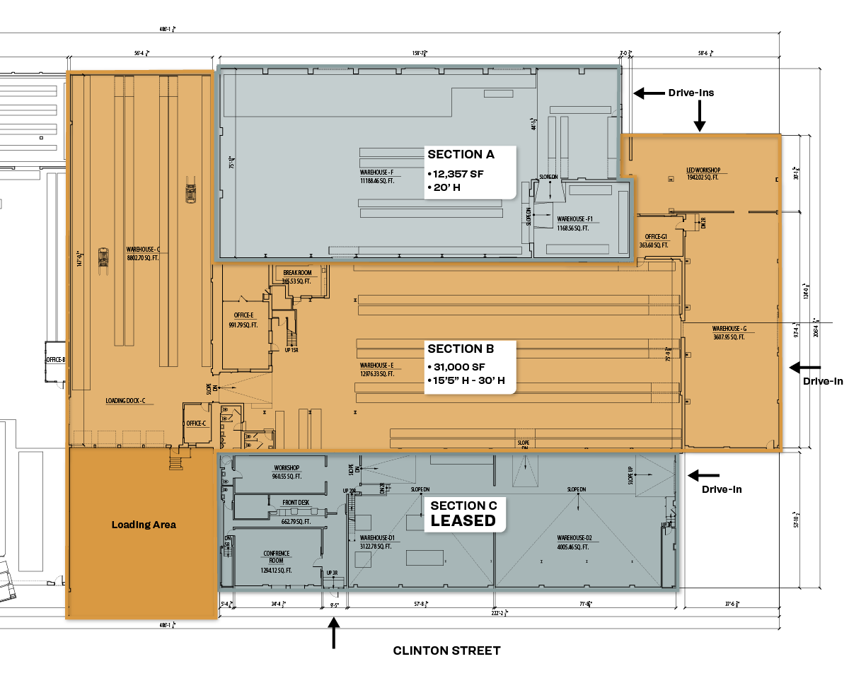
• 12,357 Sq. Ft.
- 1 Drive Bay
- Large Column Free Section
- 1 Drive-In Door
- Natural Light
- 20’ Clear Height
• 30,000 Sq. Ft. Warehouse • 992 Sq. Ft. First Floor Office • 1,291 Sq. Ft. Second Floor Mezz Office • 572 Sq. Ft. Third Floor Mezz Office
- 1 Drive Bay
- Large Column Free Section.
- Existing Office
- 4 Exterior Loading Docks
- Private Restrooms
- 15’- 30’ Max Ceiling Height.
- 1 Drive-In Door
- Existing Break Room
| Space | Size | Term | Rental Rate | Space Use | Build-Out | Available |
| 1st Floor - Section A | 12,357 SF | Negotiable | Upon Request Upon Request Upon Request Upon Request | Industrial | Partial Build-Out | Now |
| 1st Floor - Section B | 30,000 SF | Negotiable | Upon Request Upon Request Upon Request Upon Request | Industrial | Full Build-Out | Now |
1st Floor - Section A
| Size |
| 12,357 SF |
| Term |
| Negotiable |
| Rental Rate |
| Upon Request Upon Request Upon Request Upon Request |
| Space Use |
| Industrial |
| Build-Out |
| Partial Build-Out |
| Available |
| Now |
1st Floor - Section B
| Size |
| 30,000 SF |
| Term |
| Negotiable |
| Rental Rate |
| Upon Request Upon Request Upon Request Upon Request |
| Space Use |
| Industrial |
| Build-Out |
| Full Build-Out |
| Available |
| Now |
1 of 1
Videos
Matterport 3D Exterior
Matterport 3D Tour
Photos
Street View
Street
Map
1st Floor - Section A
| Size | 12,357 SF |
| Term | Negotiable |
| Rental Rate | Upon Request |
| Space Use | Industrial |
| Build-Out | Partial Build-Out |
| Available | Now |
• 12,357 Sq. Ft.
- 1 Drive Bay
- Natural Light
- Large Column Free Section
- 20’ Clear Height
- 1 Drive-In Door
1 of 1
Videos
Matterport 3D Exterior
Matterport 3D Tour
Photos
Street View
Street
Map
1st Floor - Section B
| Size | 30,000 SF |
| Term | Negotiable |
| Rental Rate | Upon Request |
| Space Use | Industrial |
| Build-Out | Full Build-Out |
| Available | Now |
• 30,000 Sq. Ft. Warehouse • 992 Sq. Ft. First Floor Office • 1,291 Sq. Ft. Second Floor Mezz Office • 572 Sq. Ft. Third Floor Mezz Office
- 1 Drive Bay
- Private Restrooms
- Large Column Free Section.
- 15’- 30’ Max Ceiling Height.
- Existing Office
- 1 Drive-In Door
- 4 Exterior Loading Docks
- Existing Break Room
Property Overview
43,270 Sq. Ft. Single-Story Building with Multiple Divisions Ideal for Creative, Sports, Entertainment, Industrial, and Commercial Uses
Warehouse Facility Facts
Building Size
100,000 SF
Lot Size
2.51 AC
Year Built
1927
Sprinkler System
Dry
Power Supply
Amps: 950
Zoning
M3-1 - heavy manufacturing district
1 1
Exceptionally walkable
90/100
Very drivable
80/100
Exceptional public transit
90/100
Moderately bikeable
70/100
1 of 8
Videos
Matterport 3D Exterior
Matterport 3D Tour
Photos
Street View
Street
Map
1 of 1
Presented by
744 Clinton St
Already a member? Log In
Hmm, there seems to have been an error sending your message. Please try again.
Thanks! Your message was sent.







