Your email has been sent.
Towne Plaza 7443-7495 N University Dr 1,160 - 23,089 SF of Office/Medical Space Available in Tamarac, FL 33321



Highlights
- Medical Plaza with mixed use potential
- Spaces from 1,160 - 15,548 sqft
- Kings Point Shuttle Adjacency
- Gastro and Pediatrician Anchor Tenants
- Adjacent to Woodmont Hospital in Tamarac
All Available Spaces(6)
Display Rental Rate as
- Space
- Size
- Term
- Rental Rate
- Space Use
- Build-Out
- Available
2 Bays combine space 2,321 sqft In Line Medical / Office / Retail Grey shell Ample TI / rent abatement available
- Lease rate does not include utilities, property expenses or building services
- Can be combined with additional space(s) for up to 4,641 SF of adjacent space
Turnkey former Optometrist, space with: 5 exam rooms, xray, reception/waiting. Well finished space. Some equipment still remains.
- Lease rate does not include utilities, property expenses or building services
- Space is in Excellent Condition
- Office intensive layout
- Can be combined with additional space(s) for up to 4,641 SF of adjacent space
Open bay with 1 bathroom and built in counters. Previously used for an activity center/meeting room. Available for a variety of medical, office, general retail uses.
- Lease rate does not include utilities, property expenses or building services
- Space is in Excellent Condition
- Mostly Open Floor Plan Layout
- Can be combined with additional space(s) for up to 4,641 SF of adjacent space
4 bays combined space of 4,903 sqft End Cap Space Grey shell Ample TI / rent abatement available
- Lease rate does not include utilities, property expenses or building services
- Can be combined with additional space(s) for up to 15,548 SF of adjacent space
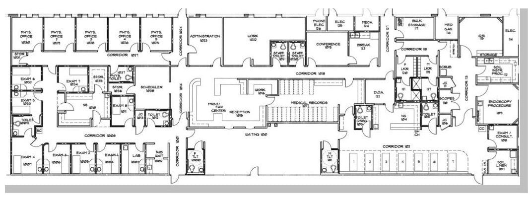
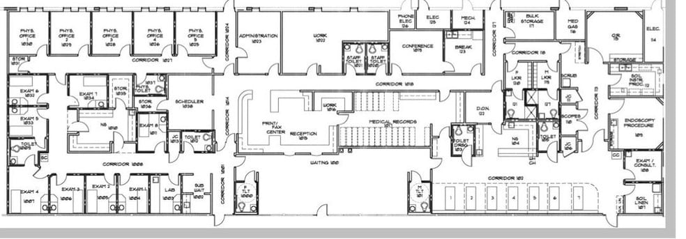
Former large medical group space 10,645 sqft Multiple entries Large reception Reception/Check in/Check out Medical Records/Admin Multiple Procedure Rooms Currently has ~16 exam rooms with possibility for 20-25+ with minimal construction
- Lease rate does not include utilities, property expenses or building services
- Office intensive layout
- Can be combined with additional space(s) for up to 15,548 SF of adjacent space
- Fully Built-Out as Standard Medical Space
- Space In Need of Renovation
Well finished turnkey medical office. Large waiting room and check in/check out 7-9 Exam rooms Xray room Lab 2 offices Breakroom
- Lease rate does not include utilities, property expenses or building services
- Office intensive layout
- Fully Built-Out as Standard Medical Space
- Space is in Excellent Condition
| Space | Size | Term | Rental Rate | Space Use | Build-Out | Available |
| 1st Floor, Ste 7449 | 1,160-2,321 SF | Negotiable | $34.45 CAD/SF/YR $2.87 CAD/SF/MO $79,967 CAD/YR $6,664 CAD/MO | Office/Medical | Shell Space | Now |
| 1st Floor, Ste 7453 | 1,160 SF | Negotiable | $48.23 CAD/SF/YR $4.02 CAD/SF/MO $55,952 CAD/YR $4,663 CAD/MO | Office/Medical | Full Build-Out | Now |
| 1st Floor, Ste 7455 | 1,160 SF | Negotiable | $34.45 CAD/SF/YR $2.87 CAD/SF/MO $39,966 CAD/YR $3,331 CAD/MO | Office/Medical | Full Build-Out | Now |
| 1st Floor, Ste 7457 - 7463 | 1,196-4,903 SF | Negotiable | $34.45 CAD/SF/YR $2.87 CAD/SF/MO $168,926 CAD/YR $14,077 CAD/MO | Office/Medical | Shell Space | Now |
| 1st Floor, Ste 7481 | 10,645 SF | Negotiable | $48.23 CAD/SF/YR $4.02 CAD/SF/MO $513,461 CAD/YR $42,788 CAD/MO | Office/Medical | Full Build-Out | Now |
| 1st Floor, Ste 7495 | 2,900 SF | Negotiable | $48.23 CAD/SF/YR $4.02 CAD/SF/MO $139,881 CAD/YR $11,657 CAD/MO | Office/Medical | Full Build-Out | Now |
1st Floor, Ste 7449
| Size |
| 1,160-2,321 SF |
| Term |
| Negotiable |
| Rental Rate |
| $34.45 CAD/SF/YR $2.87 CAD/SF/MO $79,967 CAD/YR $6,664 CAD/MO |
| Space Use |
| Office/Medical |
| Build-Out |
| Shell Space |
| Available |
| Now |
1st Floor, Ste 7453
| Size |
| 1,160 SF |
| Term |
| Negotiable |
| Rental Rate |
| $48.23 CAD/SF/YR $4.02 CAD/SF/MO $55,952 CAD/YR $4,663 CAD/MO |
| Space Use |
| Office/Medical |
| Build-Out |
| Full Build-Out |
| Available |
| Now |
1st Floor, Ste 7455
| Size |
| 1,160 SF |
| Term |
| Negotiable |
| Rental Rate |
| $34.45 CAD/SF/YR $2.87 CAD/SF/MO $39,966 CAD/YR $3,331 CAD/MO |
| Space Use |
| Office/Medical |
| Build-Out |
| Full Build-Out |
| Available |
| Now |
1st Floor, Ste 7457 - 7463
| Size |
| 1,196-4,903 SF |
| Term |
| Negotiable |
| Rental Rate |
| $34.45 CAD/SF/YR $2.87 CAD/SF/MO $168,926 CAD/YR $14,077 CAD/MO |
| Space Use |
| Office/Medical |
| Build-Out |
| Shell Space |
| Available |
| Now |
1st Floor, Ste 7481
| Size |
| 10,645 SF |
| Term |
| Negotiable |
| Rental Rate |
| $48.23 CAD/SF/YR $4.02 CAD/SF/MO $513,461 CAD/YR $42,788 CAD/MO |
| Space Use |
| Office/Medical |
| Build-Out |
| Full Build-Out |
| Available |
| Now |
1st Floor, Ste 7495
| Size |
| 2,900 SF |
| Term |
| Negotiable |
| Rental Rate |
| $48.23 CAD/SF/YR $4.02 CAD/SF/MO $139,881 CAD/YR $11,657 CAD/MO |
| Space Use |
| Office/Medical |
| Build-Out |
| Full Build-Out |
| Available |
| Now |
1st Floor, Ste 7449
| Size | 1,160-2,321 SF |
| Term | Negotiable |
| Rental Rate | $34.45 CAD/SF/YR |
| Space Use | Office/Medical |
| Build-Out | Shell Space |
| Available | Now |
2 Bays combine space 2,321 sqft In Line Medical / Office / Retail Grey shell Ample TI / rent abatement available
- Lease rate does not include utilities, property expenses or building services
- Can be combined with additional space(s) for up to 4,641 SF of adjacent space
1st Floor, Ste 7453
| Size | 1,160 SF |
| Term | Negotiable |
| Rental Rate | $48.23 CAD/SF/YR |
| Space Use | Office/Medical |
| Build-Out | Full Build-Out |
| Available | Now |
Turnkey former Optometrist, space with: 5 exam rooms, xray, reception/waiting. Well finished space. Some equipment still remains.
- Lease rate does not include utilities, property expenses or building services
- Office intensive layout
- Space is in Excellent Condition
- Can be combined with additional space(s) for up to 4,641 SF of adjacent space
1st Floor, Ste 7455
| Size | 1,160 SF |
| Term | Negotiable |
| Rental Rate | $34.45 CAD/SF/YR |
| Space Use | Office/Medical |
| Build-Out | Full Build-Out |
| Available | Now |
Open bay with 1 bathroom and built in counters. Previously used for an activity center/meeting room. Available for a variety of medical, office, general retail uses.
- Lease rate does not include utilities, property expenses or building services
- Mostly Open Floor Plan Layout
- Space is in Excellent Condition
- Can be combined with additional space(s) for up to 4,641 SF of adjacent space
1st Floor, Ste 7457 - 7463
| Size | 1,196-4,903 SF |
| Term | Negotiable |
| Rental Rate | $34.45 CAD/SF/YR |
| Space Use | Office/Medical |
| Build-Out | Shell Space |
| Available | Now |
4 bays combined space of 4,903 sqft End Cap Space Grey shell Ample TI / rent abatement available
- Lease rate does not include utilities, property expenses or building services
- Can be combined with additional space(s) for up to 15,548 SF of adjacent space
1st Floor, Ste 7481
| Size | 10,645 SF |
| Term | Negotiable |
| Rental Rate | $48.23 CAD/SF/YR |
| Space Use | Office/Medical |
| Build-Out | Full Build-Out |
| Available | Now |
Former large medical group space 10,645 sqft Multiple entries Large reception Reception/Check in/Check out Medical Records/Admin Multiple Procedure Rooms Currently has ~16 exam rooms with possibility for 20-25+ with minimal construction
- Lease rate does not include utilities, property expenses or building services
- Fully Built-Out as Standard Medical Space
- Office intensive layout
- Space In Need of Renovation
- Can be combined with additional space(s) for up to 15,548 SF of adjacent space
1st Floor, Ste 7495
| Size | 2,900 SF |
| Term | Negotiable |
| Rental Rate | $48.23 CAD/SF/YR |
| Space Use | Office/Medical |
| Build-Out | Full Build-Out |
| Available | Now |
Well finished turnkey medical office. Large waiting room and check in/check out 7-9 Exam rooms Xray room Lab 2 offices Breakroom
- Lease rate does not include utilities, property expenses or building services
- Fully Built-Out as Standard Medical Space
- Office intensive layout
- Space is in Excellent Condition
Property Overview
Medical Retail Plaza located on University Drive adjacent to Woodmont Hospital. Great frontage off of University Drive with turn in access both from North and South bound Traffic. Current anchors include: Specialty Gastro Center (Gastroenterologist) and Children's Medical Association (Pediatrician) Flexible NC (Neighborhood Commercial) zoning allows for many retail uses along side medical. Full list of allowed below in "Links". Units from 1,160 sqft up to 10,645 sqft Multiple turnkey medical offices: Former 1,160 sqft optometrist offices | 2,900 medical general medical office | 10,645 sqft former gastro exam/procedure office Grey shell spaces available for custom businesses. Can be subdivided. Ample TI and rent abatement available.
- Bus Line
- Signage
- Air Conditioning
Property Facts
Presented by
Towne Plaza | 7443-7495 N University Dr
Hmm, there seems to have been an error sending your message. Please try again.
Thanks! Your message was sent.


















