Your email has been sent.
Midway Medical Campus 7456 S State Rd 1,136 - 19,472 SF of Space Available in Bedford Park, IL 60638



HIGHLIGHTS
- Brand new state-of-the-art medical campus
- Multi-modality medical imaging and diagnostic radiology
- Immediate access to Midway International Airport, numerous area hotels as well as major highways I-55 & I-294
- Surgery rights and partnership opportunities with on-site Magna Surgery Center
- Signage opportunities available along State Road just west of Cicero Avenue
- Professionally Maintained and Managed with a 24 hour management hotline
ALL AVAILABLE SPACES(5)
Display Rental Rate as
- SPACE
- SIZE
- TERM
- RENTAL RATE
- SPACE USE
- CONDITION
- AVAILABLE
Newly Built Out First Floor Medical Office Suite. Just off the Main Lobby, Corner Office Suite with plenty of natural light. Large waiting area, several treatment rooms, private offices, private washrooms, nurses' station and kitchen.
- Lease rate does not include utilities, property expenses or building services
- Office intensive layout
- Central Air Conditioning
- Private Restrooms
- Corner Space
- Fully Built-Out as Health Care Space
- High End Trophy Space
- Kitchen
- Plug & Play
- Wheelchair Accessible
Build to Suit Medical or General Office Space located directly off the 2nd floor bank of elevators which features a large open space surrounded by windows.
- Lease rate does not include utilities, property expenses or building services
- Space In Need of Renovation
- High Ceilings
- After Hours HVAC Available
- directly off elevator with excellent exposure
- Open Floor Plan Layout
- Central Air Conditioning
- Natural Light
- natural light
Beautifully built out corner space with plenty of natural light featuring a reception desk, waiting area, open plan ideal for physical therapy equipped with treatment rooms and or private office. Move-In Ready!
- Lease rate does not include utilities, property expenses or building services
- Office intensive layout
- Reception Area
- Fully Built-Out as Physical Therapy Space
- Space is in Excellent Condition
- Corner Space
Suite 205 is MOVE IN READY featuring a waiting area, receptionists built in desk, private washroom, two treatment rooms with water, large laboratory/kitchen and private office with windows.
- Lease rate does not include utilities, property expenses or building services
- Office intensive layout
- Laboratory
- Private Restrooms
- Wheelchair Accessible
- move in ready medical office suite
- Fully Built-Out as Standard Medical Space
- Space is in Excellent Condition
- Reception Area
- Plug & Play
- move in ready medical office suite
COMING SOON!! Plug and Play Medical Office with Waiting Room, Reception and Admin Area, 3 Exam Rooms. MOVE IN READY!
- Lease rate does not include utilities, property expenses or building services
- Office intensive layout
- Central Air Conditioning
- Plug & Play
- full medical build out
- plug and play
- Fully Built-Out as Standard Medical Space
- Space is in Excellent Condition
- Fully Carpeted
- Corner Space
- full medical build out
| Space | Size | Term | Rental Rate | Space Use | Condition | Available |
| 1st Floor, Ste 104 | 4,716-5,373 SF | 5-15 Years | $33.50 CAD/SF/YR $2.79 CAD/SF/MO $180,007 CAD/YR $15,001 CAD/MO | Medical | Full Build-Out | Now |
| 2nd Floor, Ste 200 | 9,509 SF | 5-20 Years | $29.31 CAD/SF/YR $2.44 CAD/SF/MO $278,750 CAD/YR $23,229 CAD/MO | Office/Medical | Shell Space | Now |
| 2nd Floor, Ste 204 | 2,090 SF | Negotiable | $29.31 CAD/SF/YR $2.44 CAD/SF/MO $61,267 CAD/YR $5,106 CAD/MO | Medical | Full Build-Out | Now |
| 2nd Floor, Ste 205 | 1,364 SF | Negotiable | $29.31 CAD/SF/YR $2.44 CAD/SF/MO $39,985 CAD/YR $3,332 CAD/MO | Medical | Full Build-Out | Now |
| 3rd Floor, Ste 303 | 1,136 SF | Negotiable | $29.31 CAD/SF/YR $2.44 CAD/SF/MO $33,301 CAD/YR $2,775 CAD/MO | Medical | Full Build-Out | Now |
1st Floor, Ste 104
| Size |
| 4,716-5,373 SF |
| Term |
| 5-15 Years |
| Rental Rate |
| $33.50 CAD/SF/YR $2.79 CAD/SF/MO $180,007 CAD/YR $15,001 CAD/MO |
| Space Use |
| Medical |
| Condition |
| Full Build-Out |
| Available |
| Now |
2nd Floor, Ste 200
| Size |
| 9,509 SF |
| Term |
| 5-20 Years |
| Rental Rate |
| $29.31 CAD/SF/YR $2.44 CAD/SF/MO $278,750 CAD/YR $23,229 CAD/MO |
| Space Use |
| Office/Medical |
| Condition |
| Shell Space |
| Available |
| Now |
2nd Floor, Ste 204
| Size |
| 2,090 SF |
| Term |
| Negotiable |
| Rental Rate |
| $29.31 CAD/SF/YR $2.44 CAD/SF/MO $61,267 CAD/YR $5,106 CAD/MO |
| Space Use |
| Medical |
| Condition |
| Full Build-Out |
| Available |
| Now |
2nd Floor, Ste 205
| Size |
| 1,364 SF |
| Term |
| Negotiable |
| Rental Rate |
| $29.31 CAD/SF/YR $2.44 CAD/SF/MO $39,985 CAD/YR $3,332 CAD/MO |
| Space Use |
| Medical |
| Condition |
| Full Build-Out |
| Available |
| Now |
3rd Floor, Ste 303
| Size |
| 1,136 SF |
| Term |
| Negotiable |
| Rental Rate |
| $29.31 CAD/SF/YR $2.44 CAD/SF/MO $33,301 CAD/YR $2,775 CAD/MO |
| Space Use |
| Medical |
| Condition |
| Full Build-Out |
| Available |
| Now |
1st Floor, Ste 104
| Size | 4,716-5,373 SF |
| Term | 5-15 Years |
| Rental Rate | $33.50 CAD/SF/YR |
| Space Use | Medical |
| Condition | Full Build-Out |
| Available | Now |
Newly Built Out First Floor Medical Office Suite. Just off the Main Lobby, Corner Office Suite with plenty of natural light. Large waiting area, several treatment rooms, private offices, private washrooms, nurses' station and kitchen.
- Lease rate does not include utilities, property expenses or building services
- Fully Built-Out as Health Care Space
- Office intensive layout
- High End Trophy Space
- Central Air Conditioning
- Kitchen
- Private Restrooms
- Plug & Play
- Corner Space
- Wheelchair Accessible
2nd Floor, Ste 200
| Size | 9,509 SF |
| Term | 5-20 Years |
| Rental Rate | $29.31 CAD/SF/YR |
| Space Use | Office/Medical |
| Condition | Shell Space |
| Available | Now |
Build to Suit Medical or General Office Space located directly off the 2nd floor bank of elevators which features a large open space surrounded by windows.
- Lease rate does not include utilities, property expenses or building services
- Open Floor Plan Layout
- Space In Need of Renovation
- Central Air Conditioning
- High Ceilings
- Natural Light
- After Hours HVAC Available
- natural light
- directly off elevator with excellent exposure
2nd Floor, Ste 204
| Size | 2,090 SF |
| Term | Negotiable |
| Rental Rate | $29.31 CAD/SF/YR |
| Space Use | Medical |
| Condition | Full Build-Out |
| Available | Now |
Beautifully built out corner space with plenty of natural light featuring a reception desk, waiting area, open plan ideal for physical therapy equipped with treatment rooms and or private office. Move-In Ready!
- Lease rate does not include utilities, property expenses or building services
- Fully Built-Out as Physical Therapy Space
- Office intensive layout
- Space is in Excellent Condition
- Reception Area
- Corner Space
2nd Floor, Ste 205
| Size | 1,364 SF |
| Term | Negotiable |
| Rental Rate | $29.31 CAD/SF/YR |
| Space Use | Medical |
| Condition | Full Build-Out |
| Available | Now |
Suite 205 is MOVE IN READY featuring a waiting area, receptionists built in desk, private washroom, two treatment rooms with water, large laboratory/kitchen and private office with windows.
- Lease rate does not include utilities, property expenses or building services
- Fully Built-Out as Standard Medical Space
- Office intensive layout
- Space is in Excellent Condition
- Laboratory
- Reception Area
- Private Restrooms
- Plug & Play
- Wheelchair Accessible
- move in ready medical office suite
- move in ready medical office suite
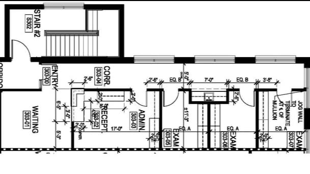
3rd Floor, Ste 303
| Size | 1,136 SF |
| Term | Negotiable |
| Rental Rate | $29.31 CAD/SF/YR |
| Space Use | Medical |
| Condition | Full Build-Out |
| Available | Now |
COMING SOON!! Plug and Play Medical Office with Waiting Room, Reception and Admin Area, 3 Exam Rooms. MOVE IN READY!
- Lease rate does not include utilities, property expenses or building services
- Fully Built-Out as Standard Medical Space
- Office intensive layout
- Space is in Excellent Condition
- Central Air Conditioning
- Fully Carpeted
- Plug & Play
- Corner Space
- full medical build out
- full medical build out
- plug and play
PROPERTY OVERVIEW
- Three (3) story class-A, state-of-the-art, medical office building in Bedford Park. - On-Site Amenities and Tenants include: - Magna Surgery Center offers surgery rights and partnership opportunities with a brand new, fully operational, surgery center located on the 3rd floor - Bright Light Radiology and Imaging (BLR), a multi-modality medical imaging and diagnostic radiology including: High Field (1.5T) MRI, 64 slice CT, digital mammography, ultrasound & digital X-ray. - The opportunity to customize your medical space with flexible existing conditions and cost-saving infrastructure already in place, generous TIA, with in house construction and design. -Exceptional payer mix in the area. - Ideally located in the heart of Bedford Park with an exceptional mix of retail, medical office, general office, industrial office and strong area demographics - Midway Medical Campus is just 15 minutes away from four area hospitals and provides exceptional access to a vast network of care providers and patients - Immediate access to I-55 and I-294 and just minutes away from Midway International Airport and Downtown Chicago - Directly adjacent to Costco and under 3 miles to the new Wintrust Sports Complex.
- Security System
- Signage
- High Ceilings
- Natural Light
- Plug & Play
- Wi-Fi
- Monument Signage
- Air Conditioning
PROPERTY FACTS
SELECT TENANTS
- FLOOR
- TENANT NAME
- INDUSTRY
- 1st
- Bright Light Medical Imaging
- Health Care and Social Assistance
- 3rd
- Magna Surgical Center
- Health Care and Social Assistance
Presented by
Midway Medical Campus | 7456 S State Rd
Hmm, there seems to have been an error sending your message. Please try again.
Thanks! Your message was sent.




