Log In/Sign Up
Your email has been sent.
Mary Lake 748 N Knowles Ave 103 Unit Apartment Building $2,051,550 CAD ($19,918 CAD/Unit) New Richmond, WI 54017



Investment Highlights
- To be Built Market Rate Apartment Building
- Permit Ready with all Construction Documentation
- Lake Front (Mary Lake Park)
Executive Summary
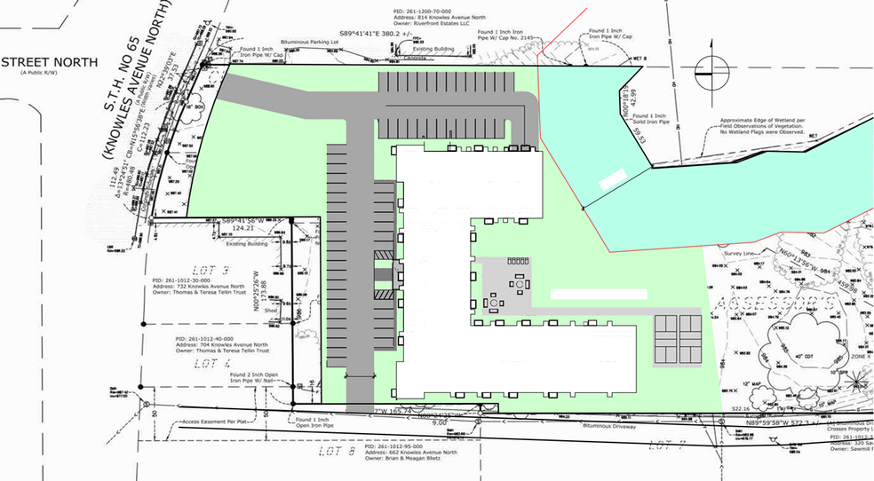
This is an approved permit ready site for a 96,000 Sq ft 103 Unit apartment building with 28,000 Sq Ft of at grade parking. It sits on a great lot with direct access to Lake Sarah.
Sale will include all design and construction documents.
Sale will include all design and construction documents.
Property Facts
| Price | $2,051,550 CAD | Building Class | B |
| Price Per Unit | $19,918 CAD | Lot Size | 5.50 AC |
| Sale Type | Investment | Construction Status | Proposed |
| No. Units | 103 | Building Size | 122,000 SF |
| Property Type | Multifamily | No. Stories | 4 |
| Property Subtype | Apartment | Year Built | 2027 |
| Apartment Style | Mid-Rise | ||
| Zoning | Multi-Family - Multi-Family | ||
| Price | $2,051,550 CAD |
| Price Per Unit | $19,918 CAD |
| Sale Type | Investment |
| No. Units | 103 |
| Property Type | Multifamily |
| Property Subtype | Apartment |
| Apartment Style | Mid-Rise |
| Building Class | B |
| Lot Size | 5.50 AC |
| Construction Status | Proposed |
| Building Size | 122,000 SF |
| No. Stories | 4 |
| Year Built | 2027 |
| Zoning | Multi-Family - Multi-Family |
Amenities
Unit Amenities
- Air Conditioning
- Balcony
- Cable Ready
- Dishwasher
- Disposal
- Washer/Dryer
- Washer/Dryer Hookup
- Heating
- Tile Floors
- Kitchen
- Granite Countertops
- High Speed Internet Access
- Sprinkler System
- Stainless Steel Appliances
- Tub/Shower
- Walk-In Closets
- Carpet
- Wi-Fi
- Family Room
- Large Bedrooms
- Quartz Countertops
Site Amenities
- Private Bathroom
1 1
Somewhat walkable
30/100
Exceptionally drivable
100/100
Somewhat bikeable
30/100
1 of 4
Videos
Matterport 3D Exterior
Matterport 3D Tour
Photos
Street View
Street
Map
1 of 1
Presented by
Grant Johnson Group - Real Broker
Mary Lake | 748 N Knowles Ave
Already a member? Log In
Hmm, there seems to have been an error sending your message. Please try again.
Thanks! Your message was sent.
