Your email has been sent.
75 Rue De Normandie 1,753 - 3,595 SF of Industrial Space Available in Repentigny, QC J6A 7B3
Highlights
- Quick access to Highway 40 for regional distribution
- Ample fenestration enhances natural light and visibility
- Modern corner building with strong street presence
Space Availability (2)
Display Rental Rate as
- Space
- Size
- Ceiling
- Term
- Rental Rate
- Rent Type
| Space | Size | Ceiling | Term | Rental Rate | Rent Type | |
| 1st Floor - 611 | 1,753 SF | 16’ | 1-10 Years | Upon Request Upon Request Upon Request Upon Request | TBD | |
| 1st Floor - 615 | 1,842 SF | 16’ | 1-10 Years | Upon Request Upon Request Upon Request Upon Request | TBD |
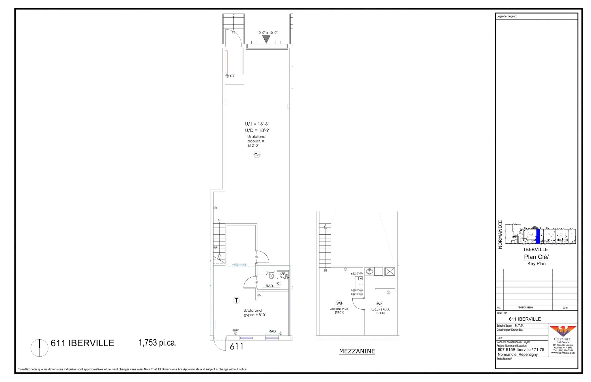
1st Floor - 611
Very modern corner building with quick access to Highway 40, in the heart of Repentigny. Excellent location for a manufacturing or distribution company with retail possibility. 16'9 Clear height. Ample fenestration and parking available. Available as of April 2026.
- Includes 600 SF of dedicated office space
- 1 Loading Dock
- Finished Ceilings: 16’
- Located in vibrant Repentigny business corridor
- Modern corner building with strong street presence
- Quick access to Hwy 40 for regional distribution
1st Floor - 615
The building’s contemporary design features expansive fenestration that floods the interior with natural light, enhancing the work environment and presenting a polished exterior for customer-facing uses. With ample on-site parking and ground-level shipping access, the property is well-equipped to support a range of industrial functions. The 16-foot clear ceiling height provides flexibility for racking, equipment, or light production needs.
- Finished Ceilings: 16’
- Located in vibrant Repentigny business corridor
- Modern corner building with strong street presence
- Quick access to Hwy 40 for regional distribution
Rent Types
The rent amount and type that the tenant (lessee) will be responsible to pay to the landlord (lessor) throughout the lease term is negotiated prior to both parties signing a lease agreement. The rent type will vary depending upon the services provided. For example, triple net rents are typically lower than full service rents due to additional expenses the tenant is required to pay in addition to the base rent. Contact the listing broker for a full understanding of any associated costs or additional expenses for each rent type.
1. Full Service: A rental rate that includes normal building standard services as provided by the landlord within a base year rental.
2. Double Net (NN): Tenant pays for only two of the building expenses; the landlord and tenant determine the specific expenses prior to signing the lease agreement.
3. Triple Net (NNN): A lease in which the tenant is responsible for all expenses associated with their proportional share of occupancy of the building.
4. Modified Gross: Modified Gross is a general type of lease rate where typically the tenant will be responsible for their proportional share of one or more of the expenses. The landlord will pay the remaining expenses. See the below list of common Modified Gross rental rate structures: 4. Plus All Utilities: A type of Modified Gross Lease where the tenant is responsible for their proportional share of utilities in addition to the rent. 4. Plus Cleaning: A type of Modified Gross Lease where the tenant is responsible for their proportional share of cleaning in addition to the rent. 4. Plus Electric: A type of Modified Gross Lease where the tenant is responsible for their proportional share of the electrical cost in addition to the rent. 4. Plus Electric & Cleaning: A type of Modified Gross Lease where the tenant is responsible for their proportional share of the electrical and cleaning cost in addition to the rent. 4. Plus Utilities and Char: A type of Modified Gross Lease where the tenant is responsible for their proportional share of the utilities and cleaning cost in addition to the rent. 4. Industrial Gross: A type of Modified Gross lease where the tenant pays one or more of the expenses in addition to the rent. The landlord and tenant determine these prior to signing the lease agreement.
5. Tenant Electric: The landlord pays for all services and the tenant is responsible for their usage of lights and electrical outlets in the space they occupy.
6. Negotiable or Upon Request: Used when the leasing contact does not provide the rent or service type.
7. TBD: To be determined; used for buildings for which no rent or service type is known, commonly utilized when the buildings are not yet built.
Property Facts
| Total Space Available | 3,595 SF | Year Built | 1986 |
| Property Type | Retail | Parking Ratio | 2.18/1,000 SF |
| Gross Leasable Area | 26,147 SF |
| Total Space Available | 3,595 SF |
| Property Type | Retail |
| Gross Leasable Area | 26,147 SF |
| Year Built | 1986 |
| Parking Ratio | 2.18/1,000 SF |
About the Property
Positioned at a prominent corner in the heart of Repentigny, this modern industrial property offers an exceptional opportunity for businesses seeking visibility, accessibility, and operational efficiency. Located just moments from Highway 40, the site ensures seamless connectivity to Greater Montreal and surrounding logistics corridors, making it ideal for manufacturing, distribution, or hybrid retail-industrial operations.
- 24 Hour Access
Nearby Major Retailers
Presented by
75 Rue De Normandie
Hmm, there seems to have been an error sending your message. Please try again.
Thanks! Your message was sent.

