Log In/Sign Up
Your email has been sent.
Executive Summary
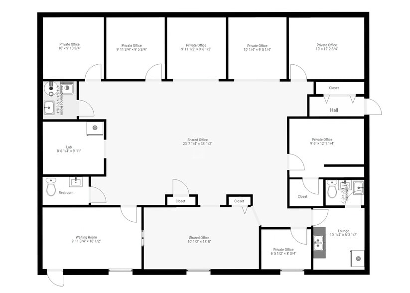
South Frederica business district. Currently being used as a medical practice, this space is for lease and can altered to match your
business needs. 2285 square feet divided into private offices and exam rooms. See the floorplan attached with photos. Suite 1-B is also
available in the Bridgewater Commerce center with Common area and security doors
business needs. 2285 square feet divided into private offices and exam rooms. See the floorplan attached with photos. Suite 1-B is also
available in the Bridgewater Commerce center with Common area and security doors
Property Facts
Sale Type
Investment or Owner User
Property Type
Office
Property Subtype
Medical
Building Size
10,560 SF
Building Class
B
Year Built
1984
Price
$1,226,452 CAD
Price Per SF
$116.14 CAD
Percent Leased
Vacant
Tenancy
Multiple
Building Height
2 Stories
Typical Floor Size
5,280 SF
Building FAR
0.31
Lot Size
0.78 AC
Zoning
C-1 - Commercial
Parking
35 Spaces (3.31 Spaces per 1,000 SF Leased)
Amenities
- Signage
- Kitchen
- Central Heating
- Air Conditioning
Space Availability
- Space
- Size
- Space Use
- Build-Out
- Available
- 2nd Fl-Ste C
- 1,200 SF
- Office
- Full Build-Out
- Now
- 2nd Fl-Ste D
- 1,200 SF
- Office
- Full Build-Out
- Now
| Space | Size | Space Use | Build-Out | Available |
| 1st Fl-Ste A | 2,285 SF | Office/Medical | Partial Build-Out | Now |
| 2nd Fl-Ste C | 1,200 SF | Office | Full Build-Out | Now |
| 2nd Fl-Ste D | 1,200 SF | Office | Full Build-Out | Now |
1st Fl-Ste A
| Size |
| 2,285 SF |
| Space Use |
| Office/Medical |
| Build-Out |
| Partial Build-Out |
| Available |
| Now |
2nd Fl-Ste C
| Size |
| 1,200 SF |
| Space Use |
| Office |
| Build-Out |
| Full Build-Out |
| Available |
| Now |
2nd Fl-Ste D
| Size |
| 1,200 SF |
| Space Use |
| Office |
| Build-Out |
| Full Build-Out |
| Available |
| Now |
1 of 22
Videos
Matterport 3D Exterior
Matterport 3D Tour
Photos
Street View
Street
Map
1st Fl-Ste A
| Size | 2,285 SF |
| Space Use | Office/Medical |
| Build-Out | Partial Build-Out |
| Available | Now |
1 1
Fairly walkable
40/100
Very drivable
80/100
Somewhat bikeable
30/100
Property Taxes
| Parcel Number | 003-12-27-045-00-000 | Improvements Assessment | $436,392 CAD |
| Land Assessment | $268,613 CAD | Total Assessment | $705,005 CAD |
Property Taxes
Parcel Number
003-12-27-045-00-000
Land Assessment
$268,613 CAD
Improvements Assessment
$436,392 CAD
Total Assessment
$705,005 CAD
1 of 26
Videos
Matterport 3D Exterior
Matterport 3D Tour
Photos
Street View
Street
Map
1 of 1
Presented by
750 Salem Dr
Already a member? Log In
Hmm, there seems to have been an error sending your message. Please try again.
Thanks! Your message was sent.






