Log In/Sign Up
Your email has been sent.
7505-7509 NW 23rd St 2,904 SF Vacant Office Building Bethany, OK 73008 $481,987 CAD ($165.97 CAD/SF)



Executive Summary
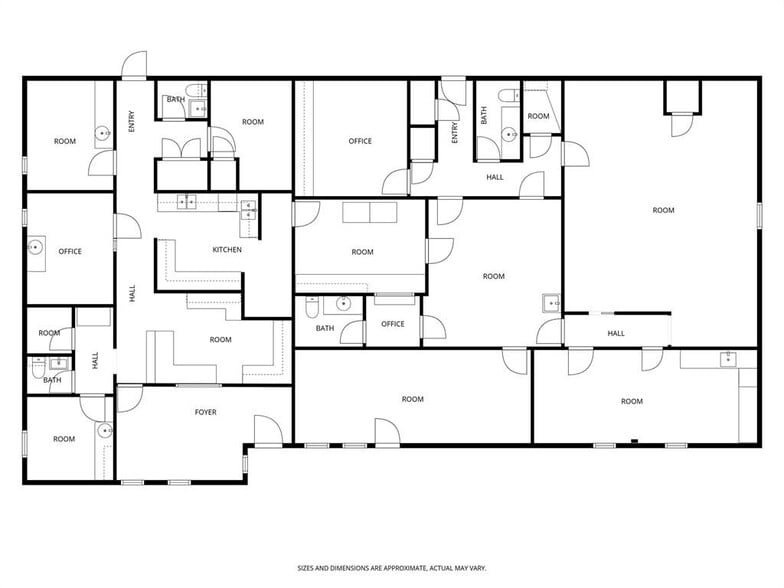
Value-add flex opportunity along the broader NW 23rd ST thoroughfare. Family owned commercial property since 1979 and priced to allow for modernization and repositioning profit. This property has ample parking and a duplex configuration with one side formerly operating as a successful dental practice. West unit comes complete with waiting room, front office, private client/patient rooms and kitchen. Plumbing infrastructure designed for dental waterlines and heavy usage throughout both sides. The east duplex allows for a number of reimagined concepts. At one time used as a grow facility, a rare small-bay commercial space previously approved for food-grade processing. Two upgraded 200 amp distribution panels installed to support this field of operation. Value-add options include: owner-occupy while leasing the second suite to offset mortgage, use the existing plumbing for a medical/wellness conversion, or go for a complete open concept reposition and create one modern flexible layout.
The exterior column damage noticeable when you arrive is scheduled to be repaired in March. Family owned since 1979. No leasing history available. East duplex had additional plumbing routed through the slab with additional shut-off valves. Identified by weak subfloor covering. This was not a slab leak or plumbing issue so no remediation required. Sale is for property only. Dental business does not convey.
The exterior column damage noticeable when you arrive is scheduled to be repaired in March. Family owned since 1979. No leasing history available. East duplex had additional plumbing routed through the slab with additional shut-off valves. Identified by weak subfloor covering. This was not a slab leak or plumbing issue so no remediation required. Sale is for property only. Dental business does not convey.
Property Facts
Sale Type
Investment or Owner User
Sale Conditions
Property Type
Office
Property Subtype
Medical
Building Size
2,904 SF
Building Class
C
Year Built
1979
Price
$481,987 CAD
Price Per SF
$165.97 CAD
Percent Leased
Vacant
Tenancy
Multiple
Building Height
1 Story
Typical Floor Size
2,904 SF
Building FAR
0.25
Lot Size
0.27 AC
Parking
20 Spaces (6.89 Spaces per 1,000 SF Leased)
Amenities
- Signage
- Kitchen
- Reception
- Air Conditioning
1 1
Moderately walkable
60/100
Very drivable
80/100
Fairly bikeable
50/100
Property Taxes
| Parcel Number | 173961003 | Improvements Assessment | $40,929 CAD |
| Land Assessment | $6,335 CAD | Total Assessment | $47,264 CAD |
Property Taxes
Parcel Number
173961003
Land Assessment
$6,335 CAD
Improvements Assessment
$40,929 CAD
Total Assessment
$47,264 CAD
1 of 11
Videos
Matterport 3D Exterior
Matterport 3D Tour
Photos
Street View
Street
Map
1 of 1
Presented by
7505-7509 NW 23rd St
Already a member? Log In
Hmm, there seems to have been an error sending your message. Please try again.
Thanks! Your message was sent.
