Log In/Sign Up
Your email has been sent.
753 Mid Cities Blvd 3,021 SF Office Building North Richland Hills, TX 76180 $1,084,173 CAD ($358.88 CAD/SF)



Investment Highlights
- Owner User Opportunity
- Dedicated Parking and Well Built
- Great Visibility on Mid Cities Blvd
Executive Summary
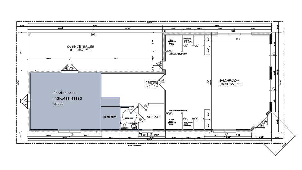
Retail/Office building For Sale in busy North Richland Hills, TX. Utilize all or part of this building that currently is operated as two suites. The main suite is currently being used for retail but easily converted to office or medical use. The other smaller space can remain as separate leased space or utilize with the main suite. The building has great visibility on Mid Cities Blvd right off the corner of Precinct Line. Building has 3,021 SF under roof with 2,380 SF conditioned space.
This asset is in great condition with 19 dedicated parking spaces. Please do not disturb tenant or tour building without contacting agent.
This asset is in great condition with 19 dedicated parking spaces. Please do not disturb tenant or tour building without contacting agent.
Taxes & Operating Expenses (Actual - 2025) Click Here to Access |
Annual (CAD) | Annual Per SF (CAD) |
|---|---|---|
| Taxes |
-
|
-
|
| Operating Expenses |
-
|
-
|
| Total Expenses |
$99,999
|
$9.99
|
Taxes & Operating Expenses (Actual - 2025) Click Here to Access
| Taxes (CAD) | |
|---|---|
| Annual | - |
| Annual Per SF | - |
| Operating Expenses (CAD) | |
|---|---|
| Annual | - |
| Annual Per SF | - |
| Total Expenses (CAD) | |
|---|---|
| Annual | $99,999 |
| Annual Per SF | $9.99 |
Property Facts
Sale Type
Owner User
Property Type
Building Size
3,021 SF
Building Class
B
Year Built
2012
Price
$1,084,173 CAD
Price Per SF
$358.88 CAD
Tenancy
Multiple
Building Height
1 Story
Typical Floor Size
3,021 SF
Building FAR
0.14
Lot Size
0.48 AC
Zoning
Commercial - General Commercial
Parking
30 Spaces (9.93 Spaces per 1,000 SF Leased)
1 1
Property Taxes
| Parcel Number | 41438523 | Improvements Assessment | $915,123 CAD |
| Land Assessment | $284,971 CAD | Total Assessment | $1,200,094 CAD |
Property Taxes
Parcel Number
41438523
Land Assessment
$284,971 CAD
Improvements Assessment
$915,123 CAD
Total Assessment
$1,200,094 CAD
1 of 19
Videos
Matterport 3D Exterior
Matterport 3D Tour
Photos
Street View
Street
Map
1 of 1
Presented by
753 Mid Cities Blvd
Already a member? Log In
Hmm, there seems to have been an error sending your message. Please try again.
Thanks! Your message was sent.
Your message has been sent!
Activate your LoopNet account now to track properties, get real-time alerts, save time on future inquiries, and more.
