Your email has been sent.
Sublease Highlights
- 24-hour security
- On-site deli
All Available Space(1)
Display Rental Rate as
- Space
- Size
- Term
- Rental Rate
- Space Use
- Build-Out
- Available
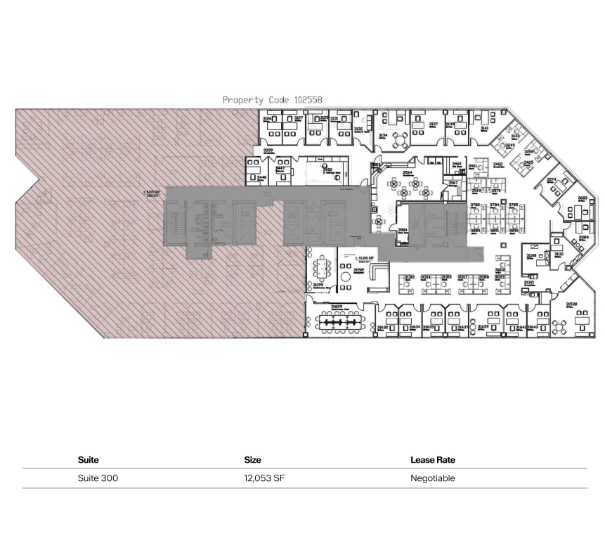
Plug and Play Sublease - Suite 300 - 12,053 SF
- Sublease space available from current tenant
- Fits 31 - 97 People
- 2 Conference Rooms
- Space is in Excellent Condition
- Elevator Exposure
- Listed lease rate plus proportional share of electrical cost
- 23 Private Offices
- 17 Workstations
- Furniture Available
| Space | Size | Term | Rental Rate | Space Use | Build-Out | Available |
| 3rd Floor, Ste 300 | 12,053 SF | May 2027 | $24.67 CAD/SF/YR $2.06 CAD/SF/MO $297,316 CAD/YR $24,776 CAD/MO | Office | - | Now |
3rd Floor, Ste 300
| Size |
| 12,053 SF |
| Term |
| May 2027 |
| Rental Rate |
| $24.67 CAD/SF/YR $2.06 CAD/SF/MO $297,316 CAD/YR $24,776 CAD/MO |
| Space Use |
| Office |
| Build-Out |
| - |
| Available |
| Now |
3rd Floor, Ste 300
| Size | 12,053 SF |
| Term | May 2027 |
| Rental Rate | $24.67 CAD/SF/YR |
| Space Use | Office |
| Build-Out | - |
| Available | Now |
Plug and Play Sublease - Suite 300 - 12,053 SF
- Sublease space available from current tenant
- Listed lease rate plus proportional share of electrical cost
- Fits 31 - 97 People
- 23 Private Offices
- 2 Conference Rooms
- 17 Workstations
- Space is in Excellent Condition
- Furniture Available
- Elevator Exposure
Property Overview
Rambler Park is a Class-A office building with a 4.0 / 1,000 SF parking ratio.
- Conferencing Facility
- Food Service
- Property Manager on Site
Property Facts
Select Tenants
- Floor
- Tenant Name
- Industry
- Multiple
- Baptist General Convention of Texas
- Services
- 3rd
- CRC Insurance Services, Inc.
- Finance and Insurance
- 10th
- Easy Recycling Services
- Waste Management and Remediation Services
- 14th
- Goldman Ismail Tomaselli Brennan & Baum
- Professional, Scientific, and Technical Services
- 5th
- Jones, Allen, & Fuquay
- Professional, Scientific, and Technical Services
- 8th
- Nucor Vulcraft
- Manufacturing
- 4th
- Preston Hollow Allergy
- Health Care and Social Assistance
- 9th
- Smith, Jackson, Boyer, Bovard, PLLC.
- Professional, Scientific, and Technical Services
- 6th
- The Bonadio Group
- Professional, Scientific, and Technical Services
- Multiple
- Westwood Professional Services
- Professional, Scientific, and Technical Services
Sustainability
Sustainability
LEED Certification Developed by the U.S. Green Building Council (USGBC), the Leadership in Energy and Environmental Design (LEED) is a green building certification program focused on the design, construction, operation, and maintenance of green buildings, homes, and neighborhoods, which aims to help building owners and operators be environmentally responsible and use resources efficiently. LEED certification is a globally recognized symbol of sustainability achievement and leadership. To achieve LEED certification, a project earns points by adhering to prerequisites and credits that address carbon, energy, water, waste, transportation, materials, health and indoor environmental quality. Projects go through a verification and review process and are awarded points that correspond to a level of LEED certification: Platinum (80+ points) Gold (60-79 points) Silver (50-59 points) Certified (40-49 points)
Presented by
Rambler Park | 7557 Rambler Rd
Hmm, there seems to have been an error sending your message. Please try again.
Thanks! Your message was sent.





