Your email has been sent.
7580-7600 Gibson St 9,200 SF of Retail Space Available in Liberty Township, OH 45069



Sublease Highlights
- Surrounded by major healthcare and education employers.
- Limited retail competition in immediate vicinity.
- High-income trade area with strong population growth.
- Prime location in Liberty Center with direct I-75 access.
Space Availability (1)
Display Rental Rate as
- Space
- Size
- Term
- Rental Rate
- Rent Type
| Space | Size | Term | Rental Rate | Rent Type | ||
| 1st Floor | 9,200 SF | Negotiable | Upon Request Upon Request Upon Request Upon Request | TBD |
1st Floor
Position your business in one of Southwest Ohio’s most dynamic retail destinations at Liberty Center, strategically located off I-75 between Cincinnati and Dayton. This former pOpshelf space offers prime visibility and convenient access within a thriving trade area known for its strong demographics and limited retail competition. Liberty Township boasts median household incomes exceeding $147,000—more than double the Ohio state average—creating a high-purchasing-power customer base for retailers and service providers.
- Sublease space available from current tenant
- Partially Built-Out as Standard Retail Space
- Central Air Conditioning
Rent Types
The rent amount and type that the tenant (lessee) will be responsible to pay to the landlord (lessor) throughout the lease term is negotiated prior to both parties signing a lease agreement. The rent type will vary depending upon the services provided. For example, triple net rents are typically lower than full service rents due to additional expenses the tenant is required to pay in addition to the base rent. Contact the listing broker for a full understanding of any associated costs or additional expenses for each rent type.
1. Full Service: A rental rate that includes normal building standard services as provided by the landlord within a base year rental.
2. Double Net (NN): Tenant pays for only two of the building expenses; the landlord and tenant determine the specific expenses prior to signing the lease agreement.
3. Triple Net (NNN): A lease in which the tenant is responsible for all expenses associated with their proportional share of occupancy of the building.
4. Modified Gross: Modified Gross is a general type of lease rate where typically the tenant will be responsible for their proportional share of one or more of the expenses. The landlord will pay the remaining expenses. See the below list of common Modified Gross rental rate structures: 4. Plus All Utilities: A type of Modified Gross Lease where the tenant is responsible for their proportional share of utilities in addition to the rent. 4. Plus Cleaning: A type of Modified Gross Lease where the tenant is responsible for their proportional share of cleaning in addition to the rent. 4. Plus Electric: A type of Modified Gross Lease where the tenant is responsible for their proportional share of the electrical cost in addition to the rent. 4. Plus Electric & Cleaning: A type of Modified Gross Lease where the tenant is responsible for their proportional share of the electrical and cleaning cost in addition to the rent. 4. Plus Utilities and Char: A type of Modified Gross Lease where the tenant is responsible for their proportional share of the utilities and cleaning cost in addition to the rent. 4. Industrial Gross: A type of Modified Gross lease where the tenant pays one or more of the expenses in addition to the rent. The landlord and tenant determine these prior to signing the lease agreement.
5. Tenant Electric: The landlord pays for all services and the tenant is responsible for their usage of lights and electrical outlets in the space they occupy.
6. Negotiable or Upon Request: Used when the leasing contact does not provide the rent or service type.
7. TBD: To be determined; used for buildings for which no rent or service type is known, commonly utilized when the buildings are not yet built.
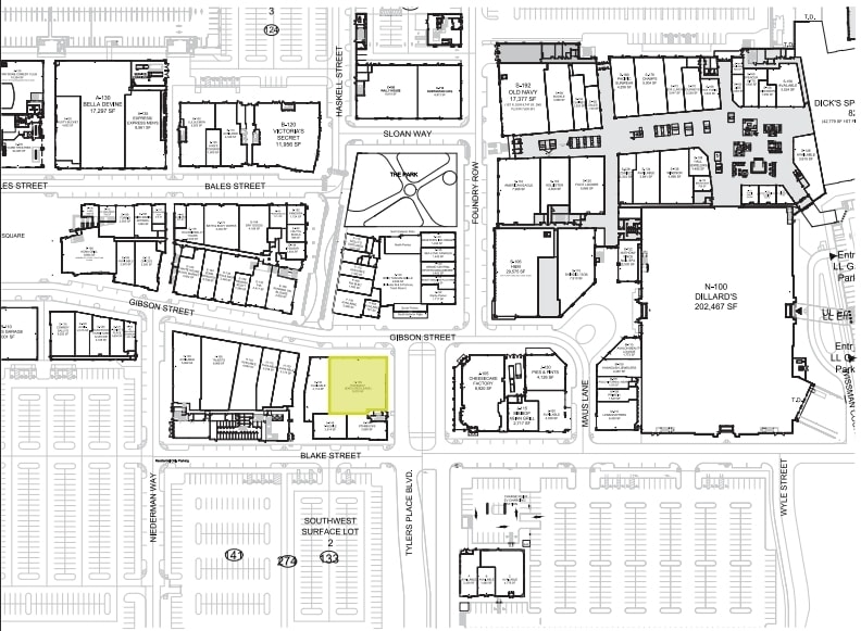
Site Plan
Select Tenants at 7580-7600 Gibson St, Liberty Township, OH 45069
- Tenant
- Description
- US Locations
- Reach
- AKT
- Fitness
- 8
- National
- Celebrate Local
- Card/Gifts
- 1
- -
- ERA Real Solutions
- Real Estate
- 423
- National
- Graeter's Ice Cream
- Ice Cream
- 66
- National
- Pen Nash Company
- Dept Store
- 1
- -
- Warby Parker
- Eyeware Accessories
- 407
- International
| Tenant | Description | US Locations | Reach |
| AKT | Fitness | 8 | National |
| Celebrate Local | Card/Gifts | 1 | - |
| ERA Real Solutions | Real Estate | 423 | National |
| Graeter's Ice Cream | Ice Cream | 66 | National |
| Pen Nash Company | Dept Store | 1 | - |
| Warby Parker | Eyeware Accessories | 407 | International |
Property Facts
| Total Space Available | 9,200 SF | Gross Leasable Area | 21,261 SF |
| Property Type | Retail | Year Built | 2015 |
| Property Subtype | Restaurant |
| Total Space Available | 9,200 SF |
| Property Type | Retail |
| Property Subtype | Restaurant |
| Gross Leasable Area | 21,261 SF |
| Year Built | 2015 |
About the Property
The surrounding area is anchored by major employers such as Cincinnati Children’s Hospital – Liberty Campus, UC Health West Chester Hospital, and Lakota Local Schools, ensuring a robust daytime population. Liberty Center itself is a vibrant mixed-use development combining retail, dining, residential, and office space, attracting consistent foot traffic and regional visitors. With quick connectivity to Cincinnati and Dayton, plus proximity to Tylersville Road and other key commercial corridors, this location offers unmatched regional reach.
Nearby Major Retailers
Presented by
7580-7600 Gibson St
Hmm, there seems to have been an error sending your message. Please try again.
Thanks! Your message was sent.
