Your email has been sent.
Turnkey Medical Buildout | Immediate Occupanc 7580 W Sahara Ave 2,529 - 10,729 SF of Office/Medical Space Available in Las Vegas, NV 89117



Highlights
- For Lease or For Sale
- Situated on ±0.75 acres
- Ideal for medical, dental, wellness, or professional office users
- Turnkey medical suites available – plug-and-play functionality
- Immediate access to Summerlin, Canyon Gate, US-95 & CC-215
All Available Spaces(3)
Display Rental Rate as
- Space
- Size
- Term
- Rental Rate
- Space Use
- Build-Out
- Available
First floor- Built-out with exam room breakroom, bathroom, reception area,
- Listed rate may not include certain utilities, building services and property expenses
- Mostly Open Floor Plan Layout
- Reception Area
- Plug & Play
- Atrium
- Wheelchair Accessible
- Fully built out Doctor office
- Fully Built-Out as Health Care Space
- Space is in Excellent Condition
- Central Air and Heating
- Natural Light
- Open-Plan
- Fully built out Doctor office
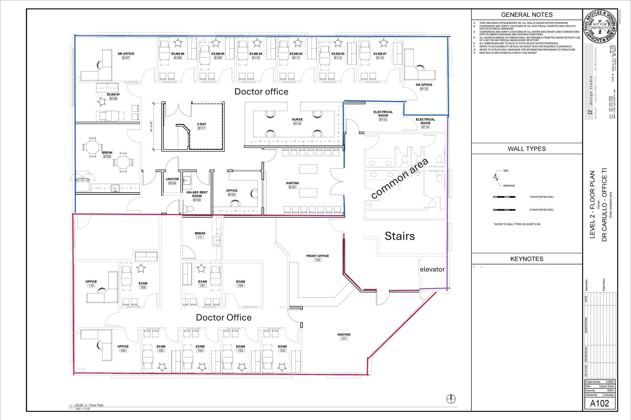
Suite ±2,529 SF – Fully Built-Out Medical Office (Outlined in Red on Floor Plan) Turnkey medical office space designed for efficient patient flow and seamless daily operations. The layout supports a smooth transition from reception to exam rooms, enhancing both patient experience and staff productivity. This suite can be easily combined with Suite 2-B to create a larger contiguous space totaling approximately ±6,439 SF, making it ideal for expanding practices or multi-provider groups. Located on the second floor, the building features common restrooms, while the suite itself includes a complete in-suite layout with: Reception / waiting area Nurse station Multiple exam rooms Private physician office Break room Move-in ready and built for real medical use—offering immediate functionality without the cost and delays of new construction.
- Listed rate may not include certain utilities, building services and property expenses
- Space is in Excellent Condition
- Corner Space
- Multiple exam rooms
- Break room
- Fully Built-Out as Health Care Space
- Plug & Play
- Reception / waiting area
- Private physician office
Fully built-out medical office (outlined in blue on the space plan), designed for efficient patient flow and seamless daily operations. The layout supports a smooth transition from reception to exam rooms, maximizing both staff efficiency and patient experience. This suite offers a true turnkey medical environment, allowing for immediate occupancy without the cost, delays, and uncertainty of new construction—an increasingly valuable advantage in today’s market. The space can be easily combined with Suite 2-A to create a larger contiguous suite of approximately ±6,439 SF, making it ideal for expanding practices or multi-provider operations. The second floor features common restrooms, while each suite includes its own private: Reception / waiting area Nurse station Multiple exam rooms Private physician office Break room Strategically designed and built for real medical use, this is not a retrofitted office—offering functionality, efficiency, and immediate usability.
- Listed rate may not include certain utilities, building services and property expenses
- Reception Area
- Plug & Play
- Efficient Patient Flow Layout
- Can be combined with Suite 2-A for a total of ±6,4
- Second floor includes common restrooms for added c
- Space is in Excellent Condition
- Central Air Conditioning
- Corner Space
- Turnkey layout allows for immediate occupancy and
- Ideal for growing practices or multi-provider user
| Space | Size | Term | Rental Rate | Space Use | Build-Out | Available |
| 1st Floor, Ste A | 5,000 SF | Negotiable | $46.66 CAD/SF/YR $3.89 CAD/SF/MO $233,285 CAD/YR $19,440 CAD/MO | Office/Medical | Full Build-Out | Now |
| 2nd Floor, Ste 2-A | 2,529 SF | Negotiable | $46.66 CAD/SF/YR $3.89 CAD/SF/MO $117,996 CAD/YR $9,833 CAD/MO | Office/Medical | Full Build-Out | 30 Days |
| 2nd Floor, Ste 2B | 3,200 SF | Negotiable | $46.66 CAD/SF/YR $3.89 CAD/SF/MO $149,302 CAD/YR $12,442 CAD/MO | Office/Medical | - | 30 Days |
1st Floor, Ste A
| Size |
| 5,000 SF |
| Term |
| Negotiable |
| Rental Rate |
| $46.66 CAD/SF/YR $3.89 CAD/SF/MO $233,285 CAD/YR $19,440 CAD/MO |
| Space Use |
| Office/Medical |
| Build-Out |
| Full Build-Out |
| Available |
| Now |
2nd Floor, Ste 2-A
| Size |
| 2,529 SF |
| Term |
| Negotiable |
| Rental Rate |
| $46.66 CAD/SF/YR $3.89 CAD/SF/MO $117,996 CAD/YR $9,833 CAD/MO |
| Space Use |
| Office/Medical |
| Build-Out |
| Full Build-Out |
| Available |
| 30 Days |
2nd Floor, Ste 2B
| Size |
| 3,200 SF |
| Term |
| Negotiable |
| Rental Rate |
| $46.66 CAD/SF/YR $3.89 CAD/SF/MO $149,302 CAD/YR $12,442 CAD/MO |
| Space Use |
| Office/Medical |
| Build-Out |
| - |
| Available |
| 30 Days |
1st Floor, Ste A
| Size | 5,000 SF |
| Term | Negotiable |
| Rental Rate | $46.66 CAD/SF/YR |
| Space Use | Office/Medical |
| Build-Out | Full Build-Out |
| Available | Now |
First floor- Built-out with exam room breakroom, bathroom, reception area,
- Listed rate may not include certain utilities, building services and property expenses
- Fully Built-Out as Health Care Space
- Mostly Open Floor Plan Layout
- Space is in Excellent Condition
- Reception Area
- Central Air and Heating
- Plug & Play
- Natural Light
- Atrium
- Open-Plan
- Wheelchair Accessible
- Fully built out Doctor office
- Fully built out Doctor office
2nd Floor, Ste 2-A
| Size | 2,529 SF |
| Term | Negotiable |
| Rental Rate | $46.66 CAD/SF/YR |
| Space Use | Office/Medical |
| Build-Out | Full Build-Out |
| Available | 30 Days |
Suite ±2,529 SF – Fully Built-Out Medical Office (Outlined in Red on Floor Plan) Turnkey medical office space designed for efficient patient flow and seamless daily operations. The layout supports a smooth transition from reception to exam rooms, enhancing both patient experience and staff productivity. This suite can be easily combined with Suite 2-B to create a larger contiguous space totaling approximately ±6,439 SF, making it ideal for expanding practices or multi-provider groups. Located on the second floor, the building features common restrooms, while the suite itself includes a complete in-suite layout with: Reception / waiting area Nurse station Multiple exam rooms Private physician office Break room Move-in ready and built for real medical use—offering immediate functionality without the cost and delays of new construction.
- Listed rate may not include certain utilities, building services and property expenses
- Fully Built-Out as Health Care Space
- Space is in Excellent Condition
- Plug & Play
- Corner Space
- Reception / waiting area
- Multiple exam rooms
- Private physician office
- Break room
2nd Floor, Ste 2B
| Size | 3,200 SF |
| Term | Negotiable |
| Rental Rate | $46.66 CAD/SF/YR |
| Space Use | Office/Medical |
| Build-Out | - |
| Available | 30 Days |
Fully built-out medical office (outlined in blue on the space plan), designed for efficient patient flow and seamless daily operations. The layout supports a smooth transition from reception to exam rooms, maximizing both staff efficiency and patient experience. This suite offers a true turnkey medical environment, allowing for immediate occupancy without the cost, delays, and uncertainty of new construction—an increasingly valuable advantage in today’s market. The space can be easily combined with Suite 2-A to create a larger contiguous suite of approximately ±6,439 SF, making it ideal for expanding practices or multi-provider operations. The second floor features common restrooms, while each suite includes its own private: Reception / waiting area Nurse station Multiple exam rooms Private physician office Break room Strategically designed and built for real medical use, this is not a retrofitted office—offering functionality, efficiency, and immediate usability.
- Listed rate may not include certain utilities, building services and property expenses
- Space is in Excellent Condition
- Reception Area
- Central Air Conditioning
- Plug & Play
- Corner Space
- Efficient Patient Flow Layout
- Turnkey layout allows for immediate occupancy and
- Can be combined with Suite 2-A for a total of ±6,4
- Ideal for growing practices or multi-provider user
- Second floor includes common restrooms for added c
Property Overview
*Turnkey Medical Office Opportunity | Prime West Sahara Location | Immediate Occupancy Exceptional lease opportunity for a ±11,483 SF two-story medical/office building on West Sahara Avenue in Las Vegas, originally built in 2003 and remodeled in 2017. Two suites are currently available—±2,539 SF on the 1st floor and ±3,200 SF on the 2nd floor—both featuring turnkey medical buildouts with reception areas, exam rooms, nurses’ stations, and fully functional support spaces. These suites offer a true plug-and-play solution, allowing medical or office users to operate immediately without the time, cost, and uncertainty of new construction. In today’s market—where buildout costs and timelines continue to rise—this creates a significant advantage for tenants looking to open quickly, scale efficiently, and minimize upfront capital. The layouts support a wide range of healthcare and wellness users, including primary care, specialty practices, and outpatient services, making the space highly adaptable and functional. Strategically positioned with strong frontage on West Sahara, the property offers excellent visibility with monument and building signage, along with convenient access to Summerlin, Canyon Gate, US-95, and CC-215. The surrounding area is supported by a dense and growing population. Additional features include ±21 striped parking spaces, elevator service, and common area restrooms, enhancing usability for both floors. Zoned C-1 and situated on ±0.75 acres, the property delivers immediate functionality for tenants while also offering long-term upside through Las Vegas’s expanding healthcare demand and future value potential with cosmetic upgrades or repositioning.
- 24 Hour Access
- Banking
- Bus Line
- Signage
Property Facts
Select Tenants
- Floor
- Tenant Name
- Industry
- 1st
- Vein Center
- Professional, Scientific, and Technical Services
Presented by
Turnkey Medical Buildout | Immediate Occupanc | 7580 W Sahara Ave
Hmm, there seems to have been an error sending your message. Please try again.
Thanks! Your message was sent.







