Your email has been sent.
Investment Highlights
- Great visibility from Hempstead Highway
- Fenced outdoor storage
- Located with Immediate access to Hempstead Highway and Highway 290.
Executive Summary
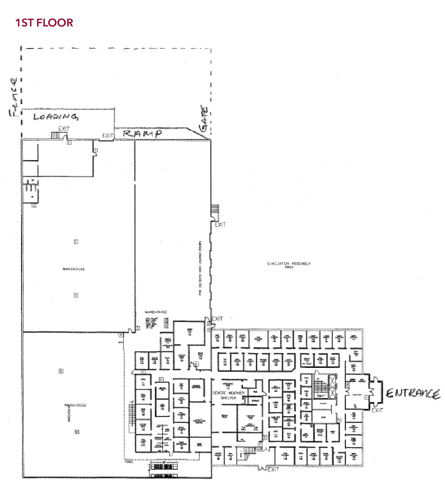
Warehouse Size: ±34,108 SF
Office: ±48,835 SF Three-story office building connected to warehouse
Land: ±3.18 AC
Clear Height: ±24´
Loading: Four (4) dock-high doors
Two (2) drive-in ramps
Power: 3-Phase / 480V heavy power
Parking: ±130 Car parks
Construction: Tilt-wall
Floodplain: Not in Floodplain
Visibility: Great visibility from Hempstead Highway
Location: Located with Immediate access to Hempstead Highway and Highway 290.
Additional Comments: Fenced outdoor storage
ECONOMIC DATA
Lease Rate: Call For Information
Sale Price: Call For Information
Property Facts
Space Availability
- Space
- Size
- Space Use
- Build-Out
- Available
Total Improvements: ±82,943 SF Fully sprinklered Warehouse Size: ±34,108 SF Office: ±48,835 SF Three-story office building connected to warehouse Land: ±3.18 AC Clear Height: ±24´ Loading: Four (4) dock-high doors Two (2) drive-in ramps Power: 3-Phase / 480V heavy power Parking: ±130 Car parks Construction: Tilt-wall Floodplain: Not in Floodplain Visibility: Great visibility from Hempstead Highway Location: Located with Immediate access to Hempstead Highway and Highway 290. Additional Comments: Fenced outdoor storage ECONOMIC DATA Lease Rate: Call For Information Sale Price: Call For Information
| Space | Size | Space Use | Build-Out | Available |
| 1st Floor | 82,943 SF | Flex | - | Now |
1st Floor
| Size |
| 82,943 SF |
| Space Use |
| Flex |
| Build-Out |
| - |
| Available |
| Now |
1st Floor
| Size | 82,943 SF |
| Space Use | Flex |
| Build-Out | - |
| Available | Now |
Total Improvements: ±82,943 SF Fully sprinklered Warehouse Size: ±34,108 SF Office: ±48,835 SF Three-story office building connected to warehouse Land: ±3.18 AC Clear Height: ±24´ Loading: Four (4) dock-high doors Two (2) drive-in ramps Power: 3-Phase / 480V heavy power Parking: ±130 Car parks Construction: Tilt-wall Floodplain: Not in Floodplain Visibility: Great visibility from Hempstead Highway Location: Located with Immediate access to Hempstead Highway and Highway 290. Additional Comments: Fenced outdoor storage ECONOMIC DATA Lease Rate: Call For Information Sale Price: Call For Information
Property Taxes
| Parcel Number | 0590030370037 | Improvements Assessment | $5,730,420 CAD (2025) |
| Land Assessment | $662,203 CAD (2025) | Total Assessment | $6,392,624 CAD (2025) |
Property Taxes
Presented by
7604 Kempwood Dr
Hmm, there seems to have been an error sending your message. Please try again.
Thanks! Your message was sent.







