Log In/Sign Up
Your email has been sent.
7620-7632 W 159th St 3,000 SF 100% Leased Office Building Orland Park, IL 60462 $549,120 CAD ($183.04 CAD/SF)



Executive Summary
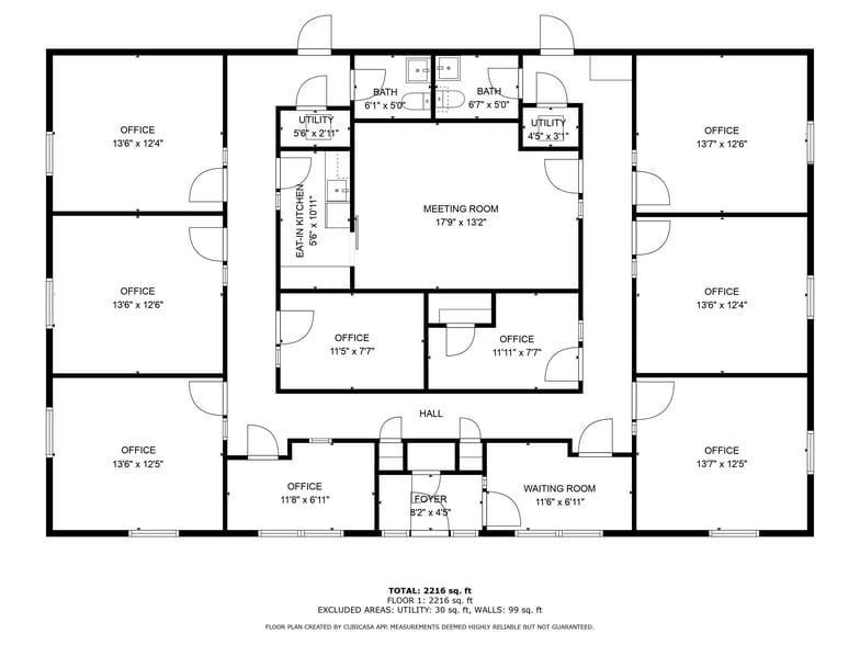
Prime 2600 sq ft commercial property featuring a welcoming private foyer entrance with a mail area leading to a spacious waiting room that opens to 9 private offices, 6 of which are approximately 14' x 12' with window views! This property also includes a meeting area, an eat-in kitchen with cabinetry, 2 handicap-able bathrooms, and ample outdoor parking. Solid brick building with nice curb appeal. Conveniently located on busy 159th Street near other businesses, local shopping, and dining, this is an excellent investment opportunity with high visibility and accessibility.
Property Facts
Sale Type
Investment
Property Type
Office
Building Size
3,000 SF
Building Class
B
Year Built
1996
Price
$549,120 CAD
Price Per SF
$183.04 CAD
Percent Leased
100%
Tenancy
Multiple
Building Height
1 Story
Typical Floor Size
3,000 SF
Building FAR
0.12
Lot Size
0.58 AC
Zoning
BIZ - Business and Industrial District
Parking
24 Spaces (8 Spaces per 1,000 SF Leased)
Amenities
- Bus Line
- Property Manager on Site
- Signage
- Air Conditioning
Major Tenants
- Tenant
- Industry
- SF Occupied
- Rent/SF
- Lease End
- K And K Tax And Financial
- Professional, Scientific, and Technical Services
- -
- -
- -
| Tenant | Industry | SF Occupied | Rent/SF | Lease End | ||
| K And K Tax And Financial | Professional, Scientific, and Technical Services | - | - | - |
1 1
Moderately walkable
60/100
Very drivable
80/100
Limited public transit
30/100
Fairly bikeable
50/100
Property Taxes
| Parcel Numbers | Improvements Assessment | $57,721 CAD | |
| Land Assessment | $85,800 CAD | Total Assessment | $143,521 CAD |
Property Taxes
Parcel Numbers
Land Assessment
$85,800 CAD
Improvements Assessment
$57,721 CAD
Total Assessment
$143,521 CAD
1 of 44
Videos
Matterport 3D Exterior
Matterport 3D Tour
Photos
Street View
Street
Map
1 of 1
Presented by
7620-7632 W 159th St
Already a member? Log In
Hmm, there seems to have been an error sending your message. Please try again.
Thanks! Your message was sent.
