Your email has been sent.
Hazard Center Office Tower 7676 Hazard Center Dr 2,056 - 83,326 SF of 4-Star Office Space Available in San Diego, CA 92108



Highlights
- Fitness center with showers, lockers, and towel service
- EV charging, auto detailing, and free subterranean and covered parking
- On-site coffee/deli cart, restaurants, and retail
- Conference center and tenant lounge (underway)
- 24/7 security with roving patrol and on-site staffed security desk
- Direct access to CA-163, Friars Road, five major freeways, an on-site trolley stop, and a new pedestrian link to Fashion Valley Mall
All Available Spaces(15)
Display Rental Rate as
- Space
- Size
- Term
- Rental Rate
- Space Use
- Build-Out
- Available
Eleven (11) private offices, break area, IT closet and large open office.
- Rate includes utilities, building services and property expenses
- Mostly Open Floor Plan Layout
- Space is in Excellent Condition
- Kitchen
- Fitness center with showers and lockers
- EV charging, auto detailing, and covered parking
- On-site coffee/deli cart, restaurants, and retail
- Fully Built-Out as Standard Office
- 11 Private Offices
- Reception Area
- Natural Light
- Conference center and tenant lounge
- 24/7 security with roving patrol and guard desk
- Direct access to CA-163 and five major freeways
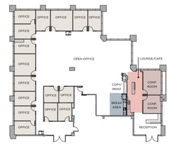
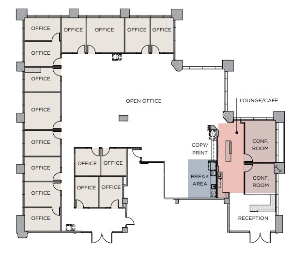
Double door entry, reception, sixteen (16) private offices, two (2) conference rooms, lounge/cafe, break area, copy/print and open office.
- Rate includes utilities, building services and property expenses
- 16 Private Offices
- Space is in Excellent Condition
- Kitchen
- Fitness center with showers and lockers
- EV charging, auto detailing, and covered parking
- On-site coffee/deli cart, restaurants, and retail
- Fully Built-Out as Standard Office
- 2 Conference Rooms
- Reception Area
- Natural Light
- Conference center and tenant lounge
- 24/7 security with roving patrol and guard desk
- Direct access to CA-163 and five major freeways
Reception, eight (8) private offices, conference room, break room, copy/ print area, storage and server closets, large training room and open office.
- Rate includes utilities, building services and property expenses
- 8 Private Offices
- Reception Area
- Secure Storage
- Fitness center with showers and lockers
- EV charging, auto detailing, and covered parking
- On-site coffee/deli cart, restaurants, and retail
- Fully Built-Out as Standard Office
- 1 Conference Room
- Kitchen
- Natural Light
- Conference center and tenant lounge
- 24/7 security with roving patrol and guard desk
- Direct access to CA-163 and five major freeways
Double door entry with reception, five (5) private offices, conference room, training room, huddle room, storage closet, server closet and large open area.
- Rate includes utilities, building services and property expenses
- Mostly Open Floor Plan Layout
- 1 Conference Room
- Partially Built-Out as Standard Office
- 5 Private Offices
- Reception Area
Reception, six (6) private offices, two (2) conference rooms, phone room, break area, copy/ print area, storage and server closets, and large open office.
- Rate includes utilities, building services and property expenses
- Open Floor Plan Layout
- 2 Conference Rooms
- Reception Area
- Conference center and tenant lounge
- 24/7 security with roving patrol and guard desk
- Direct access to CA-163 and five major freeways
- Fully Built-Out as Standard Office
- 6 Private Offices
- 57 Workstations
- Fitness center with showers and lockers
- EV charging, auto detailing, and covered parking
- On-site coffee/deli cart, restaurants, and retail
Planned spec suite with glass conference room, six (6) private offices, break room/cafe, server and storage room, and open area for approx. 24 cubes. https://matterport.com/discover/space/SGT83mku3hY
- Rate includes utilities, building services and property expenses
- 6 Private Offices
- 24 Workstations
- Reception Area
- Natural Light
- Conference center and tenant lounge
- 24/7 security with roving patrol and guard desk
- Direct access to CA-163 and five major freeways
- Fully Built-Out as Standard Office
- 1 Conference Room
- Space is in Excellent Condition
- Print/Copy Room
- Fitness center with showers and lockers
- EV charging, auto detailing, and covered parking
- On-site coffee/deli cart, restaurants, and retail
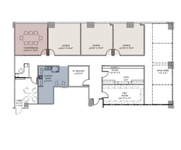
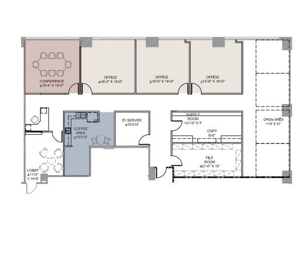
Lobby/reception area, three (3) private offices, conference room, break room, it/server room, file room and open office area.
- Rate includes utilities, building services and property expenses
- 3 Private Offices
- Space is in Excellent Condition
- Kitchen
- Natural Light
- Conference center and tenant lounge
- 24/7 security with roving patrol and guard desk
- Direct access to CA-163 and five major freeways
- Fully Built-Out as Standard Office
- 1 Conference Room
- Reception Area
- Print/Copy Room
- Fitness center with showers and lockers
- EV charging, auto detailing, and covered parking
- On-site coffee/deli cart, restaurants, and retail
Double door entry, reception, three (3) private offices, two (2) conference rooms, three (3) phone rooms, break room, storage room and open office for approx. 12 cubes.
- Rate includes utilities, building services and property expenses
- 3 Private Offices
- 12 Workstations
- Reception Area
- Secure Storage
- Fitness center with showers and lockers
- EV charging, auto detailing, and covered parking
- On-site coffee/deli cart, restaurants, and retail
- Fully Built-Out as Standard Office
- 2 Conference Rooms
- Space is in Excellent Condition
- Kitchen
- Natural Light
- Conference center and tenant lounge
- 24/7 security with roving patrol and guard desk
- Direct access to CA-163 and five major freeways
Four (4) private offices, conference room, open office, break room and storage closet
- Rate includes utilities, building services and property expenses
- Mostly Open Floor Plan Layout
- 1 Conference Room
- Secure Storage
- Fully Built-Out as Standard Office
- 4 Private Offices
- Can be combined with additional space(s) for up to 4,970 SF of adjacent space
Four (4) private offices, break room and open area. Planned spec suite to include one (1) private office, conference room, break/lounge area and open office for approx. 14 cubes.
- Rate includes utilities, building services and property expenses
- 4 Private Offices
- Can be combined with additional space(s) for up to 4,970 SF of adjacent space
- Corner Space
- Open-Plan
- Conference center and tenant lounge
- 24/7 security with roving patrol and guard desk
- Direct access to CA-163 and five major freeways
- Fully Built-Out as Standard Office
- Space is in Excellent Condition
- Kitchen
- Natural Light
- Fitness center with showers and lockers
- EV charging, auto detailing, and covered parking
- On-site coffee/deli cart, restaurants, and retail
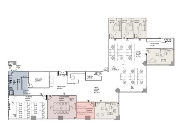
Prominent double-door entry off of elevator lobby, reception area, nine (9) private offices, conference room, two (2) huddle rooms, break room and abundant open area
- Rate includes utilities, building services and property expenses
- Mostly Open Floor Plan Layout
- 1 Conference Room
- Space is in Excellent Condition
- Reception Area
- Print/Copy Room
- Fitness center with showers and lockers
- EV charging, auto detailing, and covered parking
- On-site coffee/deli cart, restaurants, and retail
- Fully Built-Out as Standard Office
- 10 Private Offices
- 38 Workstations
- Can be combined with additional space(s) for up to 17,245 SF of adjacent space
- Kitchen
- Natural Light
- Conference center and tenant lounge
- 24/7 security with roving patrol and guard desk
- Direct access to CA-163 and five major freeways
Double door entry, reception, twelve (12) private offices, two (2) conference rooms, break room, copy room, server room and open office.
- Rate includes utilities, building services and property expenses
- 12 Private Offices
- Can be combined with additional space(s) for up to 17,245 SF of adjacent space
- Partially Built-Out as Standard Office
- 2 Conference Rooms
- Reception Area
Nine (9) private offices, storage area, and large open office area Suite is contiguous with Suite 1300 for up to 16,780sf.
- Rate includes utilities, building services and property expenses
- 9 Private Offices
- Space is in Excellent Condition
- Print/Copy Room
- Natural Light
- Fitness center with showers and lockers
- EV charging, auto detailing, and covered parking
- On-site coffee/deli cart, restaurants, and retail
- Fully Built-Out as Standard Office
- Conference Rooms
- Kitchen
- Secure Storage
- Open-Plan
- Conference center and tenant lounge
- 24/7 security with roving patrol and guard desk
- Direct access to CA-163 and five major freeways
Planned spec suite. Double door entry, three (3) private window line offices, conference room, open office, break area and approx. 2,000 sf private rooftop terrace
- Rate includes utilities, building services and property expenses
- Mostly Open Floor Plan Layout
- 1 Conference Room
- Partially Built-Out as Standard Office
- 3 Private Offices
Two (2) private offices, break room, storage closet and large open area.
- Rate includes utilities, building services and property expenses
- 2 Private Offices
- Natural Light
- Conference center and tenant lounge
- 24/7 security with roving patrol and guard desk
- Direct access to CA-163 and five major freeways
- Fully Built-Out as Standard Office
- Space is in Excellent Condition
- Fitness center with showers and lockers
- EV charging, auto detailing, and covered parking
- On-site coffee/deli cart, restaurants, and retail
| Space | Size | Term | Rental Rate | Space Use | Build-Out | Available |
| 1st Floor, Ste 100 | 4,918 SF | Negotiable | $61.18 CAD/SF/YR $5.10 CAD/SF/MO $300,871 CAD/YR $25,073 CAD/MO | Office | Full Build-Out | Now |
| 2nd Floor, Ste 200 | 7,788 SF | Negotiable | $61.18 CAD/SF/YR $5.10 CAD/SF/MO $476,450 CAD/YR $39,704 CAD/MO | Office | Full Build-Out | Now |
| 3rd Floor, Ste 300 | 5,700 SF | Negotiable | $61.18 CAD/SF/YR $5.10 CAD/SF/MO $348,712 CAD/YR $29,059 CAD/MO | Office | Full Build-Out | Now |
| 4th Floor, Ste 400 | 6,313 SF | Negotiable | $61.18 CAD/SF/YR $5.10 CAD/SF/MO $386,214 CAD/YR $32,184 CAD/MO | Office | Partial Build-Out | Now |
| 5th Floor, Ste 500 | 10,413 SF | Negotiable | $61.18 CAD/SF/YR $5.10 CAD/SF/MO $637,041 CAD/YR $53,087 CAD/MO | Office | Full Build-Out | Now |
| 6th Floor, Ste 650 | 5,183 SF | Negotiable | $61.18 CAD/SF/YR $5.10 CAD/SF/MO $317,083 CAD/YR $26,424 CAD/MO | Office | Full Build-Out | Now |
| 7th Floor, Ste 750 | 3,813 SF | Negotiable | $61.18 CAD/SF/YR $5.10 CAD/SF/MO $233,270 CAD/YR $19,439 CAD/MO | Office | Full Build-Out | Now |
| 8th Floor, Ste 810 | 3,977 SF | Negotiable | $61.18 CAD/SF/YR $5.10 CAD/SF/MO $243,303 CAD/YR $20,275 CAD/MO | Office | Full Build-Out | Now |
| 8th Floor, Ste 845 | 2,914 SF | Negotiable | $61.18 CAD/SF/YR $5.10 CAD/SF/MO $178,271 CAD/YR $14,856 CAD/MO | Office | Full Build-Out | 2026-08-01 |
| 8th Floor, Ste 860 | 2,056 SF | Negotiable | $61.18 CAD/SF/YR $5.10 CAD/SF/MO $125,781 CAD/YR $10,482 CAD/MO | Office | Full Build-Out | Now |
| 11th Floor, Ste 1100 | 9,685 SF | Negotiable | $61.18 CAD/SF/YR $5.10 CAD/SF/MO $592,504 CAD/YR $49,375 CAD/MO | Office | Full Build-Out | Now |
| 11th Floor, Ste 1150 | 7,560 SF | Negotiable | $61.18 CAD/SF/YR $5.10 CAD/SF/MO $462,502 CAD/YR $38,542 CAD/MO | Office | Partial Build-Out | 2026-10-01 |
| 13th Floor, Ste 1360 | 8,411 SF | Negotiable | $61.18 CAD/SF/YR $5.10 CAD/SF/MO $514,564 CAD/YR $42,880 CAD/MO | Office | Full Build-Out | Now |
| 14th Floor, Ste 1450 | 2,533 SF | Negotiable | $65.26 CAD/SF/YR $5.44 CAD/SF/MO $165,293 CAD/YR $13,774 CAD/MO | Office | Partial Build-Out | 2026-09-01 |
| 15th Floor, Ste 1540 | 2,062 SF | Negotiable | $61.18 CAD/SF/YR $5.10 CAD/SF/MO $126,148 CAD/YR $10,512 CAD/MO | Office | Full Build-Out | Now |
1st Floor, Ste 100
| Size |
| 4,918 SF |
| Term |
| Negotiable |
| Rental Rate |
| $61.18 CAD/SF/YR $5.10 CAD/SF/MO $300,871 CAD/YR $25,073 CAD/MO |
| Space Use |
| Office |
| Build-Out |
| Full Build-Out |
| Available |
| Now |
2nd Floor, Ste 200
| Size |
| 7,788 SF |
| Term |
| Negotiable |
| Rental Rate |
| $61.18 CAD/SF/YR $5.10 CAD/SF/MO $476,450 CAD/YR $39,704 CAD/MO |
| Space Use |
| Office |
| Build-Out |
| Full Build-Out |
| Available |
| Now |
3rd Floor, Ste 300
| Size |
| 5,700 SF |
| Term |
| Negotiable |
| Rental Rate |
| $61.18 CAD/SF/YR $5.10 CAD/SF/MO $348,712 CAD/YR $29,059 CAD/MO |
| Space Use |
| Office |
| Build-Out |
| Full Build-Out |
| Available |
| Now |
4th Floor, Ste 400
| Size |
| 6,313 SF |
| Term |
| Negotiable |
| Rental Rate |
| $61.18 CAD/SF/YR $5.10 CAD/SF/MO $386,214 CAD/YR $32,184 CAD/MO |
| Space Use |
| Office |
| Build-Out |
| Partial Build-Out |
| Available |
| Now |
5th Floor, Ste 500
| Size |
| 10,413 SF |
| Term |
| Negotiable |
| Rental Rate |
| $61.18 CAD/SF/YR $5.10 CAD/SF/MO $637,041 CAD/YR $53,087 CAD/MO |
| Space Use |
| Office |
| Build-Out |
| Full Build-Out |
| Available |
| Now |
6th Floor, Ste 650
| Size |
| 5,183 SF |
| Term |
| Negotiable |
| Rental Rate |
| $61.18 CAD/SF/YR $5.10 CAD/SF/MO $317,083 CAD/YR $26,424 CAD/MO |
| Space Use |
| Office |
| Build-Out |
| Full Build-Out |
| Available |
| Now |
7th Floor, Ste 750
| Size |
| 3,813 SF |
| Term |
| Negotiable |
| Rental Rate |
| $61.18 CAD/SF/YR $5.10 CAD/SF/MO $233,270 CAD/YR $19,439 CAD/MO |
| Space Use |
| Office |
| Build-Out |
| Full Build-Out |
| Available |
| Now |
8th Floor, Ste 810
| Size |
| 3,977 SF |
| Term |
| Negotiable |
| Rental Rate |
| $61.18 CAD/SF/YR $5.10 CAD/SF/MO $243,303 CAD/YR $20,275 CAD/MO |
| Space Use |
| Office |
| Build-Out |
| Full Build-Out |
| Available |
| Now |
8th Floor, Ste 845
| Size |
| 2,914 SF |
| Term |
| Negotiable |
| Rental Rate |
| $61.18 CAD/SF/YR $5.10 CAD/SF/MO $178,271 CAD/YR $14,856 CAD/MO |
| Space Use |
| Office |
| Build-Out |
| Full Build-Out |
| Available |
| 2026-08-01 |
8th Floor, Ste 860
| Size |
| 2,056 SF |
| Term |
| Negotiable |
| Rental Rate |
| $61.18 CAD/SF/YR $5.10 CAD/SF/MO $125,781 CAD/YR $10,482 CAD/MO |
| Space Use |
| Office |
| Build-Out |
| Full Build-Out |
| Available |
| Now |
11th Floor, Ste 1100
| Size |
| 9,685 SF |
| Term |
| Negotiable |
| Rental Rate |
| $61.18 CAD/SF/YR $5.10 CAD/SF/MO $592,504 CAD/YR $49,375 CAD/MO |
| Space Use |
| Office |
| Build-Out |
| Full Build-Out |
| Available |
| Now |
11th Floor, Ste 1150
| Size |
| 7,560 SF |
| Term |
| Negotiable |
| Rental Rate |
| $61.18 CAD/SF/YR $5.10 CAD/SF/MO $462,502 CAD/YR $38,542 CAD/MO |
| Space Use |
| Office |
| Build-Out |
| Partial Build-Out |
| Available |
| 2026-10-01 |
13th Floor, Ste 1360
| Size |
| 8,411 SF |
| Term |
| Negotiable |
| Rental Rate |
| $61.18 CAD/SF/YR $5.10 CAD/SF/MO $514,564 CAD/YR $42,880 CAD/MO |
| Space Use |
| Office |
| Build-Out |
| Full Build-Out |
| Available |
| Now |
14th Floor, Ste 1450
| Size |
| 2,533 SF |
| Term |
| Negotiable |
| Rental Rate |
| $65.26 CAD/SF/YR $5.44 CAD/SF/MO $165,293 CAD/YR $13,774 CAD/MO |
| Space Use |
| Office |
| Build-Out |
| Partial Build-Out |
| Available |
| 2026-09-01 |
15th Floor, Ste 1540
| Size |
| 2,062 SF |
| Term |
| Negotiable |
| Rental Rate |
| $61.18 CAD/SF/YR $5.10 CAD/SF/MO $126,148 CAD/YR $10,512 CAD/MO |
| Space Use |
| Office |
| Build-Out |
| Full Build-Out |
| Available |
| Now |
1st Floor, Ste 100
| Size | 4,918 SF |
| Term | Negotiable |
| Rental Rate | $61.18 CAD/SF/YR |
| Space Use | Office |
| Build-Out | Full Build-Out |
| Available | Now |
Eleven (11) private offices, break area, IT closet and large open office.
- Rate includes utilities, building services and property expenses
- Fully Built-Out as Standard Office
- Mostly Open Floor Plan Layout
- 11 Private Offices
- Space is in Excellent Condition
- Reception Area
- Kitchen
- Natural Light
- Fitness center with showers and lockers
- Conference center and tenant lounge
- EV charging, auto detailing, and covered parking
- 24/7 security with roving patrol and guard desk
- On-site coffee/deli cart, restaurants, and retail
- Direct access to CA-163 and five major freeways
2nd Floor, Ste 200
| Size | 7,788 SF |
| Term | Negotiable |
| Rental Rate | $61.18 CAD/SF/YR |
| Space Use | Office |
| Build-Out | Full Build-Out |
| Available | Now |
Double door entry, reception, sixteen (16) private offices, two (2) conference rooms, lounge/cafe, break area, copy/print and open office.
- Rate includes utilities, building services and property expenses
- Fully Built-Out as Standard Office
- 16 Private Offices
- 2 Conference Rooms
- Space is in Excellent Condition
- Reception Area
- Kitchen
- Natural Light
- Fitness center with showers and lockers
- Conference center and tenant lounge
- EV charging, auto detailing, and covered parking
- 24/7 security with roving patrol and guard desk
- On-site coffee/deli cart, restaurants, and retail
- Direct access to CA-163 and five major freeways
3rd Floor, Ste 300
| Size | 5,700 SF |
| Term | Negotiable |
| Rental Rate | $61.18 CAD/SF/YR |
| Space Use | Office |
| Build-Out | Full Build-Out |
| Available | Now |
Reception, eight (8) private offices, conference room, break room, copy/ print area, storage and server closets, large training room and open office.
- Rate includes utilities, building services and property expenses
- Fully Built-Out as Standard Office
- 8 Private Offices
- 1 Conference Room
- Reception Area
- Kitchen
- Secure Storage
- Natural Light
- Fitness center with showers and lockers
- Conference center and tenant lounge
- EV charging, auto detailing, and covered parking
- 24/7 security with roving patrol and guard desk
- On-site coffee/deli cart, restaurants, and retail
- Direct access to CA-163 and five major freeways
4th Floor, Ste 400
| Size | 6,313 SF |
| Term | Negotiable |
| Rental Rate | $61.18 CAD/SF/YR |
| Space Use | Office |
| Build-Out | Partial Build-Out |
| Available | Now |
Double door entry with reception, five (5) private offices, conference room, training room, huddle room, storage closet, server closet and large open area.
- Rate includes utilities, building services and property expenses
- Partially Built-Out as Standard Office
- Mostly Open Floor Plan Layout
- 5 Private Offices
- 1 Conference Room
- Reception Area
5th Floor, Ste 500
| Size | 10,413 SF |
| Term | Negotiable |
| Rental Rate | $61.18 CAD/SF/YR |
| Space Use | Office |
| Build-Out | Full Build-Out |
| Available | Now |
Reception, six (6) private offices, two (2) conference rooms, phone room, break area, copy/ print area, storage and server closets, and large open office.
- Rate includes utilities, building services and property expenses
- Fully Built-Out as Standard Office
- Open Floor Plan Layout
- 6 Private Offices
- 2 Conference Rooms
- 57 Workstations
- Reception Area
- Fitness center with showers and lockers
- Conference center and tenant lounge
- EV charging, auto detailing, and covered parking
- 24/7 security with roving patrol and guard desk
- On-site coffee/deli cart, restaurants, and retail
- Direct access to CA-163 and five major freeways
6th Floor, Ste 650
| Size | 5,183 SF |
| Term | Negotiable |
| Rental Rate | $61.18 CAD/SF/YR |
| Space Use | Office |
| Build-Out | Full Build-Out |
| Available | Now |
Planned spec suite with glass conference room, six (6) private offices, break room/cafe, server and storage room, and open area for approx. 24 cubes. https://matterport.com/discover/space/SGT83mku3hY
- Rate includes utilities, building services and property expenses
- Fully Built-Out as Standard Office
- 6 Private Offices
- 1 Conference Room
- 24 Workstations
- Space is in Excellent Condition
- Reception Area
- Print/Copy Room
- Natural Light
- Fitness center with showers and lockers
- Conference center and tenant lounge
- EV charging, auto detailing, and covered parking
- 24/7 security with roving patrol and guard desk
- On-site coffee/deli cart, restaurants, and retail
- Direct access to CA-163 and five major freeways
7th Floor, Ste 750
| Size | 3,813 SF |
| Term | Negotiable |
| Rental Rate | $61.18 CAD/SF/YR |
| Space Use | Office |
| Build-Out | Full Build-Out |
| Available | Now |
Lobby/reception area, three (3) private offices, conference room, break room, it/server room, file room and open office area.
- Rate includes utilities, building services and property expenses
- Fully Built-Out as Standard Office
- 3 Private Offices
- 1 Conference Room
- Space is in Excellent Condition
- Reception Area
- Kitchen
- Print/Copy Room
- Natural Light
- Fitness center with showers and lockers
- Conference center and tenant lounge
- EV charging, auto detailing, and covered parking
- 24/7 security with roving patrol and guard desk
- On-site coffee/deli cart, restaurants, and retail
- Direct access to CA-163 and five major freeways
8th Floor, Ste 810
| Size | 3,977 SF |
| Term | Negotiable |
| Rental Rate | $61.18 CAD/SF/YR |
| Space Use | Office |
| Build-Out | Full Build-Out |
| Available | Now |
Double door entry, reception, three (3) private offices, two (2) conference rooms, three (3) phone rooms, break room, storage room and open office for approx. 12 cubes.
- Rate includes utilities, building services and property expenses
- Fully Built-Out as Standard Office
- 3 Private Offices
- 2 Conference Rooms
- 12 Workstations
- Space is in Excellent Condition
- Reception Area
- Kitchen
- Secure Storage
- Natural Light
- Fitness center with showers and lockers
- Conference center and tenant lounge
- EV charging, auto detailing, and covered parking
- 24/7 security with roving patrol and guard desk
- On-site coffee/deli cart, restaurants, and retail
- Direct access to CA-163 and five major freeways
8th Floor, Ste 845
| Size | 2,914 SF |
| Term | Negotiable |
| Rental Rate | $61.18 CAD/SF/YR |
| Space Use | Office |
| Build-Out | Full Build-Out |
| Available | 2026-08-01 |
Four (4) private offices, conference room, open office, break room and storage closet
- Rate includes utilities, building services and property expenses
- Fully Built-Out as Standard Office
- Mostly Open Floor Plan Layout
- 4 Private Offices
- 1 Conference Room
- Can be combined with additional space(s) for up to 4,970 SF of adjacent space
- Secure Storage
8th Floor, Ste 860
| Size | 2,056 SF |
| Term | Negotiable |
| Rental Rate | $61.18 CAD/SF/YR |
| Space Use | Office |
| Build-Out | Full Build-Out |
| Available | Now |
Four (4) private offices, break room and open area. Planned spec suite to include one (1) private office, conference room, break/lounge area and open office for approx. 14 cubes.
- Rate includes utilities, building services and property expenses
- Fully Built-Out as Standard Office
- 4 Private Offices
- Space is in Excellent Condition
- Can be combined with additional space(s) for up to 4,970 SF of adjacent space
- Kitchen
- Corner Space
- Natural Light
- Open-Plan
- Fitness center with showers and lockers
- Conference center and tenant lounge
- EV charging, auto detailing, and covered parking
- 24/7 security with roving patrol and guard desk
- On-site coffee/deli cart, restaurants, and retail
- Direct access to CA-163 and five major freeways
11th Floor, Ste 1100
| Size | 9,685 SF |
| Term | Negotiable |
| Rental Rate | $61.18 CAD/SF/YR |
| Space Use | Office |
| Build-Out | Full Build-Out |
| Available | Now |
Prominent double-door entry off of elevator lobby, reception area, nine (9) private offices, conference room, two (2) huddle rooms, break room and abundant open area
- Rate includes utilities, building services and property expenses
- Fully Built-Out as Standard Office
- Mostly Open Floor Plan Layout
- 10 Private Offices
- 1 Conference Room
- 38 Workstations
- Space is in Excellent Condition
- Can be combined with additional space(s) for up to 17,245 SF of adjacent space
- Reception Area
- Kitchen
- Print/Copy Room
- Natural Light
- Fitness center with showers and lockers
- Conference center and tenant lounge
- EV charging, auto detailing, and covered parking
- 24/7 security with roving patrol and guard desk
- On-site coffee/deli cart, restaurants, and retail
- Direct access to CA-163 and five major freeways
11th Floor, Ste 1150
| Size | 7,560 SF |
| Term | Negotiable |
| Rental Rate | $61.18 CAD/SF/YR |
| Space Use | Office |
| Build-Out | Partial Build-Out |
| Available | 2026-10-01 |
Double door entry, reception, twelve (12) private offices, two (2) conference rooms, break room, copy room, server room and open office.
- Rate includes utilities, building services and property expenses
- Partially Built-Out as Standard Office
- 12 Private Offices
- 2 Conference Rooms
- Can be combined with additional space(s) for up to 17,245 SF of adjacent space
- Reception Area
13th Floor, Ste 1360
| Size | 8,411 SF |
| Term | Negotiable |
| Rental Rate | $61.18 CAD/SF/YR |
| Space Use | Office |
| Build-Out | Full Build-Out |
| Available | Now |
Nine (9) private offices, storage area, and large open office area Suite is contiguous with Suite 1300 for up to 16,780sf.
- Rate includes utilities, building services and property expenses
- Fully Built-Out as Standard Office
- 9 Private Offices
- Conference Rooms
- Space is in Excellent Condition
- Kitchen
- Print/Copy Room
- Secure Storage
- Natural Light
- Open-Plan
- Fitness center with showers and lockers
- Conference center and tenant lounge
- EV charging, auto detailing, and covered parking
- 24/7 security with roving patrol and guard desk
- On-site coffee/deli cart, restaurants, and retail
- Direct access to CA-163 and five major freeways
14th Floor, Ste 1450
| Size | 2,533 SF |
| Term | Negotiable |
| Rental Rate | $65.26 CAD/SF/YR |
| Space Use | Office |
| Build-Out | Partial Build-Out |
| Available | 2026-09-01 |
Planned spec suite. Double door entry, three (3) private window line offices, conference room, open office, break area and approx. 2,000 sf private rooftop terrace
- Rate includes utilities, building services and property expenses
- Partially Built-Out as Standard Office
- Mostly Open Floor Plan Layout
- 3 Private Offices
- 1 Conference Room
15th Floor, Ste 1540
| Size | 2,062 SF |
| Term | Negotiable |
| Rental Rate | $61.18 CAD/SF/YR |
| Space Use | Office |
| Build-Out | Full Build-Out |
| Available | Now |
Two (2) private offices, break room, storage closet and large open area.
- Rate includes utilities, building services and property expenses
- Fully Built-Out as Standard Office
- 2 Private Offices
- Space is in Excellent Condition
- Natural Light
- Fitness center with showers and lockers
- Conference center and tenant lounge
- EV charging, auto detailing, and covered parking
- 24/7 security with roving patrol and guard desk
- On-site coffee/deli cart, restaurants, and retail
- Direct access to CA-163 and five major freeways
Property Overview
Hazard Center Office Tower is Mission Valley’s only true mixed-use office and retail destination. This Class A, 15-story tower offers 273,710 RSF of premium workspace and is LEED Gold, WELL, and Energy Star certified. Tenant’s and their employees will have direct access to The Landing at HZRD, which will bring a reimagined retail and entertainment experience with new dining, flexible event space, and curated community programming—cementing Hazard Center as Mission Valley’s premier Class A mixed-use office destination. The Landing at HZRD will be completed in 2026.
- 24 Hour Access
- Bus Line
- Conferencing Facility
- Convenience Store
- Dry Cleaner
- Fitness Center
- Food Court
- Property Manager on Site
- Signage
- Energy Star Labeled
- Reception
- Partitioned Offices
Property Facts
Sustainability
Sustainability
LEED Certification Developed by the U.S. Green Building Council (USGBC), the Leadership in Energy and Environmental Design (LEED) is a green building certification program focused on the design, construction, operation, and maintenance of green buildings, homes, and neighborhoods, which aims to help building owners and operators be environmentally responsible and use resources efficiently. LEED certification is a globally recognized symbol of sustainability achievement and leadership. To achieve LEED certification, a project earns points by adhering to prerequisites and credits that address carbon, energy, water, waste, transportation, materials, health and indoor environmental quality. Projects go through a verification and review process and are awarded points that correspond to a level of LEED certification: Platinum (80+ points) Gold (60-79 points) Silver (50-59 points) Certified (40-49 points)
ENERGY STAR® Energy Star is a program run by the U.S. Environmental Protection Agency (EPA) and U.S. Department of Energy (DOE) that promotes energy efficiency and provides simple, credible, and unbiased information that consumers and businesses rely on to make well-informed decisions. Thousands of industrial, commercial, utility, state, and local organizations partner with the EPA to deliver cost-saving energy efficiency solutions that protect the climate while improving air quality and protecting public health. The Energy Star score compares a building’s energy performance to similar buildings nationwide and accounts for differences in operating conditions, regional weather data, and other important considerations. Certification is given on an annual basis, so a building must maintain its high performance to be certified year to year. To be eligible for Energy Star certification, a building must earn a score of 75 or higher on EPA’s 1 – 100 scale, indicating that it performs better than at least 75 percent of similar buildings nationwide. This 1 – 100 Energy Star score is based on the actual, measured energy use of a building and is calculated within EPA’s Energy Star Portfolio Manager tool.
Presented by
Hazard Center Office Tower | 7676 Hazard Center Dr
Hmm, there seems to have been an error sending your message. Please try again.
Thanks! Your message was sent.



































