Log In/Sign Up
Your email has been sent.
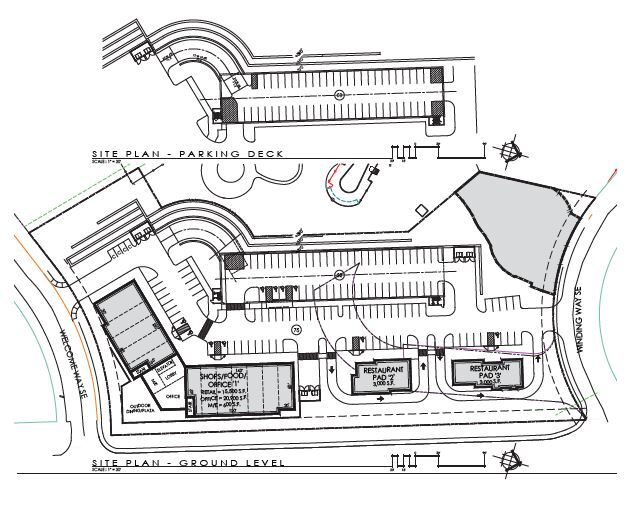
770 Winding Way SE
Salem, OR 97302
Commercial St · Retail Property For Lease
·
42,400 SF

Property Facts
| Total Space Available | 42,400 SF | Center Properties | 3 |
| Center Type | Neighborhood Center | Gross Leasable Area | 23,000 SF |
| Stores | 1 |
| Total Space Available | 42,400 SF |
| Center Type | Neighborhood Center |
| Stores | 1 |
| Center Properties | 3 |
| Gross Leasable Area | 23,000 SF |
1 of 2
Videos
Matterport 3D Exterior
Matterport 3D Tour
Photos
Street View
Street
Map
