Log In/Sign Up
Your email has been sent.
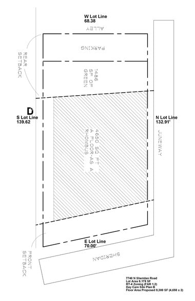
ROGERS PARK DAY CARE CENTER (BUILD-TO-SUIT) 7728 N Sheridan Rd 0.21 Acres of Residential Land for Lease in Chicago, IL 60626


LOT Available
Display Rental Rate as
| Rental Rate |
|
Lot Size | 0.21 AC |
| Lease Term | Negotiable |
| Rental Rate | |
| Lease Term | Negotiable |
| Lot Size | 0.21 AC |
Proposed 2-story Day Care Center consisting of a 12,000 SF building. No zoning change required.
Property Facts
1 1
Walk Score®
Very Walkable (76)
Transit Score®
Excellent Transit (76)
Bike Score®
Very Bikeable (76)
1 of 3
Videos
Matterport 3D Exterior
Matterport 3D Tour
Photos
Street View
Street
Map
1 of 1
Presented by
ROGERS PARK DAY CARE CENTER (BUILD-TO-SUIT) | 7728 N Sheridan Rd
Already a member? Log In
Hmm, there seems to have been an error sending your message. Please try again.
Thanks! Your message was sent.
