Your email has been sent.
7755 Ellis Rd 13,475 SF of Industrial Space Available in Melbourne, FL 32904



Sublease Highlights
- Highly desired and convenient location, approx 1 mile to Melbourne- Orlando International Airport; I-95, St Johns Heritage Parkway and Wickham Rd.
Features
All Available Space(1)
Display Rental Rate as
- Space
- Size
- Term
- Rental Rate
- Space Use
- Build-Out
- Available
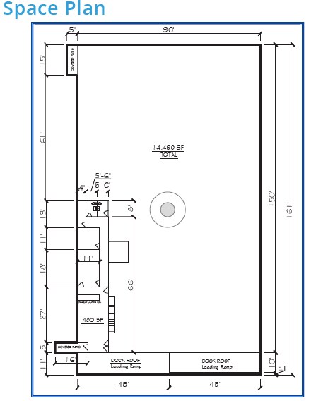
Free standing warehouse boasting 13,475 sq ft, on .94 acres on corner of Ellis Rd and Technology Dr. Highly desired and convenient location, approx 1 mile to Melbourne- Orlando International Airport; I-95, St Johns Heritage Parkway and Wickham Rd. Sublet from Tenant with 12 months remaining on Lease and/or expand into future long-term lease. Immediate availability, subject to Landlord’s approval. Zoned M-1, Light Industrial 3 dock doors: (2) 8’ x 10’ and (1) 12’ x 10’ Clear height: 16-18 ft Power: Single-Phase, 120/240 Volt, 400 Amp Service HVAC: Goodman 4-Ton HVAC in Office and Showroom Construction: Block and Metal Ample Parking Utilities: Electric: Florida Power & Light | Water: City of West Melbourne ADA Compliant; Ramp to front
- Sublease space available from current tenant
- Lease rate does not include utilities, property expenses or building services
| Space | Size | Term | Rental Rate | Space Use | Build-Out | Available |
| 1st Floor | 13,475 SF | Oct 2026 | $13.51 CAD/SF/YR $1.13 CAD/SF/MO $181,993 CAD/YR $15,166 CAD/MO | Industrial | Full Build-Out | Now |
1st Floor
| Size |
| 13,475 SF |
| Term |
| Oct 2026 |
| Rental Rate |
| $13.51 CAD/SF/YR $1.13 CAD/SF/MO $181,993 CAD/YR $15,166 CAD/MO |
| Space Use |
| Industrial |
| Build-Out |
| Full Build-Out |
| Available |
| Now |
1st Floor
| Size | 13,475 SF |
| Term | Oct 2026 |
| Rental Rate | $13.51 CAD/SF/YR |
| Space Use | Industrial |
| Build-Out | Full Build-Out |
| Available | Now |
Free standing warehouse boasting 13,475 sq ft, on .94 acres on corner of Ellis Rd and Technology Dr. Highly desired and convenient location, approx 1 mile to Melbourne- Orlando International Airport; I-95, St Johns Heritage Parkway and Wickham Rd. Sublet from Tenant with 12 months remaining on Lease and/or expand into future long-term lease. Immediate availability, subject to Landlord’s approval. Zoned M-1, Light Industrial 3 dock doors: (2) 8’ x 10’ and (1) 12’ x 10’ Clear height: 16-18 ft Power: Single-Phase, 120/240 Volt, 400 Amp Service HVAC: Goodman 4-Ton HVAC in Office and Showroom Construction: Block and Metal Ample Parking Utilities: Electric: Florida Power & Light | Water: City of West Melbourne ADA Compliant; Ramp to front
- Sublease space available from current tenant
- Lease rate does not include utilities, property expenses or building services
Property Overview
Free standing warehouse boasting 13,475 sq ft, on .94 acres on corner of Ellis Rd and Technology Dr. Highly desired and convenient location, approx 1 mile to Melbourne- Orlando International Airport; I-95, St Johns Heritage Parkway and Wickham Rd. Sublet from Tenant with 12 months remaining on Lease and/or expand into future long-term lease. Immediate availability, subject to Landlord’s approval. Zoned M-1, Light Industrial 3 dock doors: (2) 8’ x 10’ and (1) 12’ x 10’ Clear height: 16-18 ft Power: Single-Phase, 120/240 Volt, 400 Amp Service HVAC: Goodman 4-Ton HVAC in Office and Showroom Construction: Block and Metal Ample Parking Utilities: Electric: Florida Power & Light | Water: City of West Melbourne ADA Compliant; Ramp to front
Warehouse Facility Facts
Select Tenants
- Floor
- Tenant Name
- 1st
- Marine Whole Codings
Presented by
7755 Ellis Rd
Hmm, there seems to have been an error sending your message. Please try again.
Thanks! Your message was sent.
