Log In/Sign Up
Your email has been sent.
Features
Clear Height
14’
Drive In Bays
5
Standard Parking Spaces
35
All Available Space(1)
Display Rental Rate as
- Space
- Size
- Term
- Rental Rate
- Space Use
- Build-Out
- Available
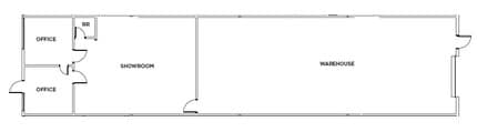
+2,588 SF Available sporting 60% Warehouse Space with 40% Office and Showroom. 100% Air Conditioned and located in the prestigious Scottsdale Airpark, this space offers 1 grade level door (10’ x 12’), restroom, and ample parking.
- Lease rate does not include utilities, property expenses or building services
- 1 Drive Bay
- Includes 1,035 SF of dedicated office space
- Central Air Conditioning
| Space | Size | Term | Rental Rate | Space Use | Build-Out | Available |
| 1st Floor - 2 | 2,588 SF | Negotiable | $27.90 CAD/SF/YR $2.33 CAD/SF/MO $72,208 CAD/YR $6,017 CAD/MO | Industrial | Partial Build-Out | Now |
1st Floor - 2
| Size |
| 2,588 SF |
| Term |
| Negotiable |
| Rental Rate |
| $27.90 CAD/SF/YR $2.33 CAD/SF/MO $72,208 CAD/YR $6,017 CAD/MO |
| Space Use |
| Industrial |
| Build-Out |
| Partial Build-Out |
| Available |
| Now |
1 of 1
Videos
Matterport 3D Exterior
Matterport 3D Tour
Photos
Street View
Street
Map
1st Floor - 2
| Size | 2,588 SF |
| Term | Negotiable |
| Rental Rate | $27.90 CAD/SF/YR |
| Space Use | Industrial |
| Build-Out | Partial Build-Out |
| Available | Now |
+2,588 SF Available sporting 60% Warehouse Space with 40% Office and Showroom. 100% Air Conditioned and located in the prestigious Scottsdale Airpark, this space offers 1 grade level door (10’ x 12’), restroom, and ample parking.
- Lease rate does not include utilities, property expenses or building services
- Includes 1,035 SF of dedicated office space
- 1 Drive Bay
- Central Air Conditioning
Warehouse Facility Facts
Building Size
16,380 SF
Lot Size
1.13 AC
Year Built/Renovated
1980/2025
Construction
Masonry
Power Supply
Amps: 200 Volts: 3 Phase: 3
Zoning
I-1, Scottsdale - Industrial
Select Tenants
- Floor
- Tenant Name
- Industry
- 1st
- Black Orchid
- Retailer
- 1st
- Bruce Lieberman
- Professional, Scientific, and Technical Services
- 1st
- Gunsafebed.com
- Professional, Scientific, and Technical Services
- 1st
- Laura Kehoe Design
- Professional, Scientific, and Technical Services
- 1st
- Law Tigers
- Professional, Scientific, and Technical Services
- 1st
- Leak Squad
- Construction
- 1st
- Lieberman Co
- Real Estate
- 1st
- Re/Max Prefered Choice
- Real Estate
- 1st
- Thomas Franchise Solutions Usa, Llc
- Professional, Scientific, and Technical Services
- 1st
- Urban Trend Builders Llc
- Construction
Fairly walkable
50/100
Exceptionally drivable
90/100
Minimal public transit
10/100
Fairly bikeable
50/100
1 of 5
Videos
Matterport 3D Exterior
Matterport 3D Tour
Photos
Street View
Street
Map
Presented by
7882 E Gray Rd
Already a member? Log In
Hmm, there seems to have been an error sending your message. Please try again.
Thanks! Your message was sent.






