Log In/Sign Up
Your email has been sent.
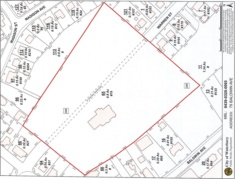
79 Baldwin Ave 6.8 Acres of Commercial Land Offered at $933,614 CAD in Waterbury, CT 06706


Executive Summary
6.8 +/- Acres (RL Zoned)
5,172 +/- S/F Office Building (WATR Radio Station)
Quiet Urban Setting with Excellent Access to I-84 & RT 8
Ample, On-Site Parking
Substantial Acreage Offers Development Flexibility
or Prime Corporate Headquarter Opportunity!!
Other Possible Uses Include Medical, Community or Educational Facilities
Offered at $685,000.00
5,172 +/- S/F Office Building (WATR Radio Station)
Quiet Urban Setting with Excellent Access to I-84 & RT 8
Ample, On-Site Parking
Substantial Acreage Offers Development Flexibility
or Prime Corporate Headquarter Opportunity!!
Other Possible Uses Include Medical, Community or Educational Facilities
Offered at $685,000.00
Property Facts
| Price | $933,614 CAD | Property Subtype | Commercial |
| Sale Type | Investment | Proposed Use | Radio or Television Transmission Facility |
| No. Lots | 1 | Total Lot Size | 6.83 AC |
| Property Type | Land | Opportunity Zone |
Yes
|
| Zoning | RL - Tv/Radio/Cable Facility | ||
| Price | $933,614 CAD |
| Sale Type | Investment |
| No. Lots | 1 |
| Property Type | Land |
| Property Subtype | Commercial |
| Proposed Use | Radio or Television Transmission Facility |
| Total Lot Size | 6.83 AC |
| Opportunity Zone |
Yes |
| Zoning | RL - Tv/Radio/Cable Facility |
1 Lot Available
Lot
| Price | $933,614 CAD | Lot Size | 6.80 AC |
| Price Per AC | $137,296.16 CAD |
| Price | $933,614 CAD |
| Price Per AC | $137,296.16 CAD |
| Lot Size | 6.80 AC |
1 1
Property Taxes
| Parcel Number | WATE-000417-000468-000042-000136 | Improvements Assessment | $1,431 CAD |
| Land Assessment | $0 CAD | Total Assessment | $1,431 CAD |
Property Taxes
Parcel Number
WATE-000417-000468-000042-000136
Land Assessment
$0 CAD
Improvements Assessment
$1,431 CAD
Total Assessment
$1,431 CAD
1 of 3
Videos
Matterport 3D Exterior
Matterport 3D Tour
Photos
Street View
Street
Map
1 of 1
Presented by
79 Baldwin Ave
Already a member? Log In
Hmm, there seems to have been an error sending your message. Please try again.
Thanks! Your message was sent.
