Log In/Sign Up
Your email has been sent.
Investment Highlights
- Quiet dead end street to build a building!
Executive Summary
Land is 2 tax lots totaling .30 acre
Financial Summary (Actual - 2025) Click Here to Access |
Annual (CAD) | Annual Per AC (CAD) |
|---|---|---|
| Taxes |
$99,999
|
$9.99
|
| Operating Expenses |
-
|
-
|
| Total Expenses |
$99,999
|
$9.99
|
Financial Summary (Actual - 2025) Click Here to Access
| Taxes (CAD) | |
|---|---|
| Annual | $99,999 |
| Annual Per AC | $9.99 |
| Operating Expenses (CAD) | |
|---|---|
| Annual | - |
| Annual Per AC | - |
| Total Expenses (CAD) | |
|---|---|
| Annual | $99,999 |
| Annual Per AC | $9.99 |
Property Facts
| Price | $1,025,288 CAD | Property Type | Land |
| Sale Type | Investment | Property Subtype | Commercial |
| Sale Condition | Redevelopment Project | Total Lot Size | 0.22 AC |
| No. Lots | 1 | ||
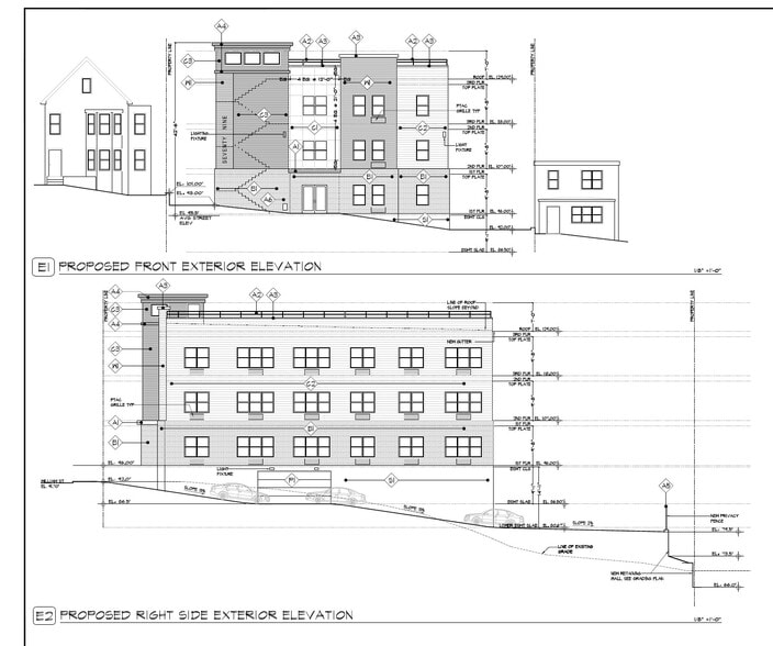
| Zoning | M - Approvals for 15 one bed apts with 20 onsite parking spots. .30 acre | ||
| Price | $1,025,288 CAD |
| Sale Type | Investment |
| Sale Condition | Redevelopment Project |
| No. Lots | 1 |
| Property Type | Land |
| Property Subtype | Commercial |
| Total Lot Size | 0.22 AC |
| Zoning | M - Approvals for 15 one bed apts with 20 onsite parking spots. .30 acre |
1 Lot Available
Lot
| Price | $1,025,288 CAD | Lot Size | 0.22 AC |
| Price Per AC | $4,660,397.90 CAD |
| Price | $1,025,288 CAD |
| Price Per AC | $4,660,397.90 CAD |
| Lot Size | 0.22 AC |
Flat lot with gentle slop to the rear. Site plan approved by Planning board. 15 one bed apts,. 20 parking spaces-14 interior. 3 Story elevator building. Quiet dead end Street in Nodine Hill. Nice project in Yonkers!
Description
Garage on lot. .30 acre
1 1
Walk Score®
Very Walkable (78)
1 of 13
Videos
Matterport 3D Exterior
Matterport 3D Tour
Photos
Street View
Street
Map
1 of 1
Presented by
79 William St
Already a member? Log In
Hmm, there seems to have been an error sending your message. Please try again.
Thanks! Your message was sent.



