Log In/Sign Up
Your email has been sent.
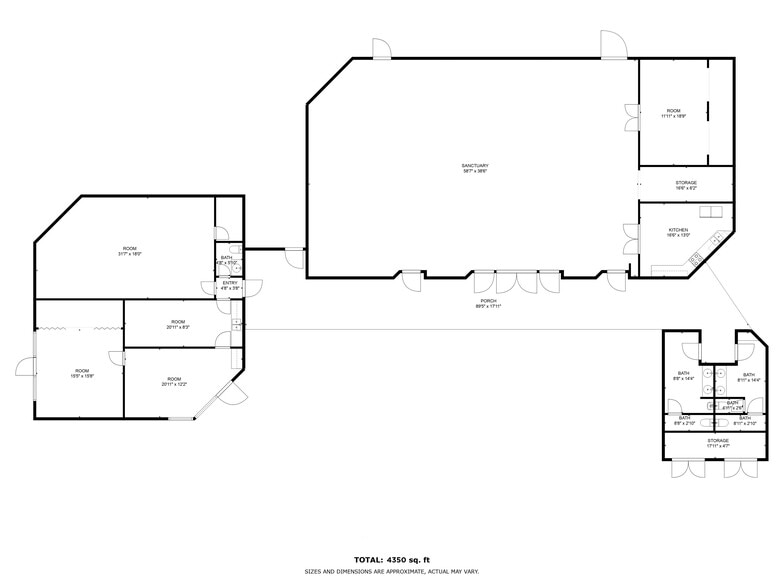
7901 E Sweetwater Ave 4,713 SF Specialty Building Offered at $6,163,695 CAD in Scottsdale, AZ 85260



Investment Highlights
- (3) separate buildings
Executive Summary
Approximately 4,713 square foot church facility comprised of three (3) separate buildings on approximately 3.373 acres (146,928 square
feet) of land zoned R1-35 on the southwest corner of Sweetwater and Hayden Road in Scottsdale, Arizona. This property can continue to be used as a church facility in its present condition with its current seating capacity of approximately 150 (with the potential for expansion) or this property can potentially be used for school purposes. This property is also subject to an existing income producing Verizon cell tower agreement.
feet) of land zoned R1-35 on the southwest corner of Sweetwater and Hayden Road in Scottsdale, Arizona. This property can continue to be used as a church facility in its present condition with its current seating capacity of approximately 150 (with the potential for expansion) or this property can potentially be used for school purposes. This property is also subject to an existing income producing Verizon cell tower agreement.
Property Facts
| Price | $6,163,695 CAD | Building Class | C |
| Price Per SF | $1,307.81 CAD | Lot Size | 3.37 AC |
| Sale Type | Investment or Owner User | Building Size | 4,713 SF |
| Property Type | Specialty | No. Stories | 1 |
| Property Subtype | Religious Facility | Year Built | 1999 |
| Zoning | R1-35 - Residential | ||
| Price | $6,163,695 CAD |
| Price Per SF | $1,307.81 CAD |
| Sale Type | Investment or Owner User |
| Property Type | Specialty |
| Property Subtype | Religious Facility |
| Building Class | C |
| Lot Size | 3.37 AC |
| Building Size | 4,713 SF |
| No. Stories | 1 |
| Year Built | 1999 |
| Zoning | R1-35 - Residential |
Amenities
- Air Conditioning
1 1
Fairly walkable
40/100
Exceptionally drivable
90/100
Minimal public transit
10/100
Fairly bikeable
40/100
Property Taxes
| Parcel Number | 175-74-126B | Improvements Assessment | $0 CAD |
| Land Assessment | $0 CAD | Total Assessment | $894,173 CAD |
Property Taxes
Parcel Number
175-74-126B
Land Assessment
$0 CAD
Improvements Assessment
$0 CAD
Total Assessment
$894,173 CAD
1 of 10
Videos
Matterport 3D Exterior
Matterport 3D Tour
Photos
Street View
Street
Map
1 of 1
Presented by
Decor Properties
7901 E Sweetwater Ave
Already a member? Log In
Hmm, there seems to have been an error sending your message. Please try again.
Thanks! Your message was sent.
