Your email has been sent.
Features
All Available Space(1)
Display Rental Rate as
- Space
- Size
- Term
- Rental Rate
- Space Use
- Build-Out
- Available
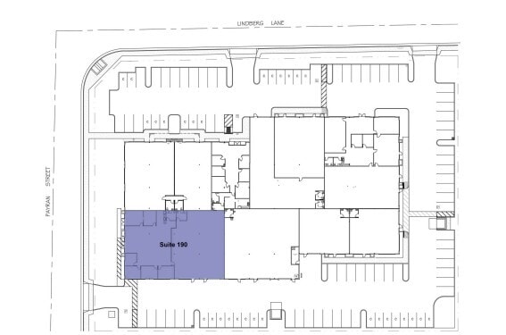
Corner unit facing Payran Street, roughly half office and half warehouse. Office has 6 private offices, dramatic polished concrete floors and 12' ceilings in the open area. The space features kitchenette and well appointed restroom; warehouse features a single 12'x12', grade-level roll-up door and 14-16' ceilings and a separate restroom. Attractive, clean, multi-use space in desirable part of town. NNN estimated to be $0.40 PSF.
- Lease rate does not include utilities, property expenses or building services
- 1 Drive Bay
- Includes 3,168 SF of dedicated office space
| Space | Size | Term | Rental Rate | Space Use | Build-Out | Available |
| 1st Floor - 190 | 6,336 SF | Negotiable | $19.67 CAD/SF/YR $1.64 CAD/SF/MO $124,601 CAD/YR $10,383 CAD/MO | Industrial | Full Build-Out | Now |
1st Floor - 190
| Size |
| 6,336 SF |
| Term |
| Negotiable |
| Rental Rate |
| $19.67 CAD/SF/YR $1.64 CAD/SF/MO $124,601 CAD/YR $10,383 CAD/MO |
| Space Use |
| Industrial |
| Build-Out |
| Full Build-Out |
| Available |
| Now |
1st Floor - 190
| Size | 6,336 SF |
| Term | Negotiable |
| Rental Rate | $19.67 CAD/SF/YR |
| Space Use | Industrial |
| Build-Out | Full Build-Out |
| Available | Now |
Corner unit facing Payran Street, roughly half office and half warehouse. Office has 6 private offices, dramatic polished concrete floors and 12' ceilings in the open area. The space features kitchenette and well appointed restroom; warehouse features a single 12'x12', grade-level roll-up door and 14-16' ceilings and a separate restroom. Attractive, clean, multi-use space in desirable part of town. NNN estimated to be $0.40 PSF.
- Lease rate does not include utilities, property expenses or building services
- Includes 3,168 SF of dedicated office space
- 1 Drive Bay
Property Overview
Discover an exceptional leasing opportunity at 800 Lindberg Lane, Petaluma, CA. The convenient location near Highway 101 and Highway 116 ensures seamless access for employees and clients, while the newly painted facade and ample parking create a welcoming and professional environment. With its strategic positioning and practical features, this property is poised to elevate the success of your business endeavors. Don't miss out on the chance to make this space the ideal home for your office or office warehouse operations.
Warehouse Facility Facts
Select Tenants
- Floor
- Tenant Name
- Industry
- 1st
- Dreams Fabrics Duvets & Bed Linens
- Retailer
- 1st
- DSB+
- Construction
- 1st
- From There to Here
- Wholesaler
- 1st
- FTTH
- Wholesaler
- 1st
- Gary Segraves Photography
- Professional, Scientific, and Technical Services
- 1st
- Peterson's Paint
- Retailer
Presented by
800 Lindberg Ln
Hmm, there seems to have been an error sending your message. Please try again.
Thanks! Your message was sent.





