Your email has been sent.
Highlights
- 24/7 Access / Four Waiting Areas in the Building & Available Conference Room
- Individual HVAC Controls on 700 SF or Greater , AT&T and Comcast High Speed Fiber Available
- Taxes & Operating Expenses For 2026: $6.98
- Camera Security System / Vending Area / Free Bottled Water and Coffee / Picnic Area & Break Room
- 5 Minutes South of I-88 Tollway, Walking Distance to Metra Station & Downtown Naperville
- Close to the 59 Block Restaurant Row
All Available Spaces(6)
Display Rental Rate as
- Space
- Size
- Term
- Rental Rate
- Space Use
- Build-Out
- Available
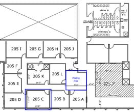
Naperville – Upper-Level Private Office Suite Available 08/01/26 Private upper-level office suite located at 800 Corporate Center, offering (3) Private Offices, Reception area, general office area, located just off the building canopy entrance, with an exterior window, access to three (3) additional waiting areas, a conference room, breakroom, vending area, and complimentary bottled water and coffee. Conveniently located in a professional office environment. Utilities: Tenant pays 44.25% of the Gas and electric.
- Lease rate does not include utilities, property expenses or building services
- 3 Private Offices
Naperville – Upper-Level Private Office Available 08/01/26 Private upper-level office located at 800 Corporate Center with LVP flooring, near building entry, access to three (3) additional waiting areas, a conference room, breakroom, vending area, and complimentary bottled water and coffee. Conveniently located in a professional office environment. Utilities: Gas and electric included.
- Listed rate may not include certain utilities, building services and property expenses
Naperville – Upper-Level Large Office Suite- Available Now Private Upper-Level Large 20' X 29'3"" office area with exterior windows, 12' X 14' 11"" Waiting Room/Private Office, located at 800 Corporate Center, offering access to three (3) additional waiting areas, a conference room, breakroom, vending area, and complimentary bottled water and coffee. Conveniently located in a professional office environment. Utilities: Tenant Responsible for Gas, Electric and Internet.
- Lease rate does not include utilities, property expenses or building services
Naperville – Upper-Level Private Office - Available 06/01/26 Private Upper-Level 12' X 19' office with waiting area, located at 800 Corporate Center, offering access to three (3) additional waiting areas, a conference room, breakroom, vending area, and complimentary bottled water and coffee. Available to show T/F anytime and M/W/TH after 2pm. Conveniently located in a professional office environment. Utilities: Gas and Electric Included.
- Listed rate may not include certain utilities, building services and property expenses
- 1 Private Office
Naperville – Upper-Level Private Office Suite- Available 05/01/26 Private Upper-Level office suite with (4) Private Offices (3 with exterior windows), Professional Waiting Area/Front Office, located at 800 Corporate Center, offering access to three (3) additional waiting areas, a conference room, breakroom, vending area, and complimentary bottled water and coffee. Conveniently located in a professional office environment. Utilities: Tenant Responsible for Gas, Electric and Internet.
- Lease rate does not include utilities, property expenses or building services
Please contact listing broker for additional detail. This is a cell tower not actual square footage available.
- Fully Built-Out as Standard Office
- Office intensive layout
| Space | Size | Term | Rental Rate | Space Use | Build-Out | Available |
| 2nd Floor, Ste 201A | 1,012 SF | Negotiable | $19.51 CAD/SF/YR $1.63 CAD/SF/MO $19,743 CAD/YR $1,645 CAD/MO | Office | - | 2026-08-01 |
| 2nd Floor, Ste 201B | 255 SF | Negotiable | $51.04 CAD/SF/YR $4.25 CAD/SF/MO $13,014 CAD/YR $1,085 CAD/MO | Office | - | 2026-08-01 |
| 2nd Floor, Ste 206A | 937 SF | Negotiable | $16.34 CAD/SF/YR $1.36 CAD/SF/MO $15,314 CAD/YR $1,276 CAD/MO | Office | - | Now |
| 2nd Floor, Ste 211A | 360 SF | Negotiable | $35.24 CAD/SF/YR $2.94 CAD/SF/MO $12,686 CAD/YR $1,057 CAD/MO | Office | - | 2026-06-01 |
| 2nd Floor, Ste 213 | 1,060 SF | Negotiable | $19.74 CAD/SF/YR $1.65 CAD/SF/MO $20,925 CAD/YR $1,744 CAD/MO | Office | - | 2026-05-01 |
| 2nd Floor, Ste TOWER | 100 SF | Negotiable | Upon Request Upon Request Upon Request Upon Request | Office | Full Build-Out | 30 Days |
2nd Floor, Ste 201A
| Size |
| 1,012 SF |
| Term |
| Negotiable |
| Rental Rate |
| $19.51 CAD/SF/YR $1.63 CAD/SF/MO $19,743 CAD/YR $1,645 CAD/MO |
| Space Use |
| Office |
| Build-Out |
| - |
| Available |
| 2026-08-01 |
2nd Floor, Ste 201B
| Size |
| 255 SF |
| Term |
| Negotiable |
| Rental Rate |
| $51.04 CAD/SF/YR $4.25 CAD/SF/MO $13,014 CAD/YR $1,085 CAD/MO |
| Space Use |
| Office |
| Build-Out |
| - |
| Available |
| 2026-08-01 |
2nd Floor, Ste 206A
| Size |
| 937 SF |
| Term |
| Negotiable |
| Rental Rate |
| $16.34 CAD/SF/YR $1.36 CAD/SF/MO $15,314 CAD/YR $1,276 CAD/MO |
| Space Use |
| Office |
| Build-Out |
| - |
| Available |
| Now |
2nd Floor, Ste 211A
| Size |
| 360 SF |
| Term |
| Negotiable |
| Rental Rate |
| $35.24 CAD/SF/YR $2.94 CAD/SF/MO $12,686 CAD/YR $1,057 CAD/MO |
| Space Use |
| Office |
| Build-Out |
| - |
| Available |
| 2026-06-01 |
2nd Floor, Ste 213
| Size |
| 1,060 SF |
| Term |
| Negotiable |
| Rental Rate |
| $19.74 CAD/SF/YR $1.65 CAD/SF/MO $20,925 CAD/YR $1,744 CAD/MO |
| Space Use |
| Office |
| Build-Out |
| - |
| Available |
| 2026-05-01 |
2nd Floor, Ste TOWER
| Size |
| 100 SF |
| Term |
| Negotiable |
| Rental Rate |
| Upon Request Upon Request Upon Request Upon Request |
| Space Use |
| Office |
| Build-Out |
| Full Build-Out |
| Available |
| 30 Days |
2nd Floor, Ste 201A
| Size | 1,012 SF |
| Term | Negotiable |
| Rental Rate | $19.51 CAD/SF/YR |
| Space Use | Office |
| Build-Out | - |
| Available | 2026-08-01 |
Naperville – Upper-Level Private Office Suite Available 08/01/26 Private upper-level office suite located at 800 Corporate Center, offering (3) Private Offices, Reception area, general office area, located just off the building canopy entrance, with an exterior window, access to three (3) additional waiting areas, a conference room, breakroom, vending area, and complimentary bottled water and coffee. Conveniently located in a professional office environment. Utilities: Tenant pays 44.25% of the Gas and electric.
- Lease rate does not include utilities, property expenses or building services
- 3 Private Offices
2nd Floor, Ste 201B
| Size | 255 SF |
| Term | Negotiable |
| Rental Rate | $51.04 CAD/SF/YR |
| Space Use | Office |
| Build-Out | - |
| Available | 2026-08-01 |
Naperville – Upper-Level Private Office Available 08/01/26 Private upper-level office located at 800 Corporate Center with LVP flooring, near building entry, access to three (3) additional waiting areas, a conference room, breakroom, vending area, and complimentary bottled water and coffee. Conveniently located in a professional office environment. Utilities: Gas and electric included.
- Listed rate may not include certain utilities, building services and property expenses
2nd Floor, Ste 206A
| Size | 937 SF |
| Term | Negotiable |
| Rental Rate | $16.34 CAD/SF/YR |
| Space Use | Office |
| Build-Out | - |
| Available | Now |
Naperville – Upper-Level Large Office Suite- Available Now Private Upper-Level Large 20' X 29'3"" office area with exterior windows, 12' X 14' 11"" Waiting Room/Private Office, located at 800 Corporate Center, offering access to three (3) additional waiting areas, a conference room, breakroom, vending area, and complimentary bottled water and coffee. Conveniently located in a professional office environment. Utilities: Tenant Responsible for Gas, Electric and Internet.
- Lease rate does not include utilities, property expenses or building services
2nd Floor, Ste 211A
| Size | 360 SF |
| Term | Negotiable |
| Rental Rate | $35.24 CAD/SF/YR |
| Space Use | Office |
| Build-Out | - |
| Available | 2026-06-01 |
Naperville – Upper-Level Private Office - Available 06/01/26 Private Upper-Level 12' X 19' office with waiting area, located at 800 Corporate Center, offering access to three (3) additional waiting areas, a conference room, breakroom, vending area, and complimentary bottled water and coffee. Available to show T/F anytime and M/W/TH after 2pm. Conveniently located in a professional office environment. Utilities: Gas and Electric Included.
- Listed rate may not include certain utilities, building services and property expenses
- 1 Private Office
2nd Floor, Ste 213
| Size | 1,060 SF |
| Term | Negotiable |
| Rental Rate | $19.74 CAD/SF/YR |
| Space Use | Office |
| Build-Out | - |
| Available | 2026-05-01 |
Naperville – Upper-Level Private Office Suite- Available 05/01/26 Private Upper-Level office suite with (4) Private Offices (3 with exterior windows), Professional Waiting Area/Front Office, located at 800 Corporate Center, offering access to three (3) additional waiting areas, a conference room, breakroom, vending area, and complimentary bottled water and coffee. Conveniently located in a professional office environment. Utilities: Tenant Responsible for Gas, Electric and Internet.
- Lease rate does not include utilities, property expenses or building services
2nd Floor, Ste TOWER
| Size | 100 SF |
| Term | Negotiable |
| Rental Rate | Upon Request |
| Space Use | Office |
| Build-Out | Full Build-Out |
| Available | 30 Days |
Please contact listing broker for additional detail. This is a cell tower not actual square footage available.
- Fully Built-Out as Standard Office
- Office intensive layout
Property Overview
800 Corporate Center - 800 W. Fifth Ave. Building- 800 Corporate Center is a two-story office building centrally located in Naperville and within 5 minutes of the tollway. It is located just north of downtown Naperville and the 59 Block Restaurant Row. Minutes from I-88 and two Naperville train stations, Route 59 and Fifth Avenue Station.
Property Facts
Presented by
800 Corporate Center | 800 W 5th Ave
Hmm, there seems to have been an error sending your message. Please try again.
Thanks! Your message was sent.






















