Log In/Sign Up
Your email has been sent.
8000 Jarvis Ave
Newark, CA 94560
Newark Technology Center · Office Property For Lease
·
23,252 SF


Highlights
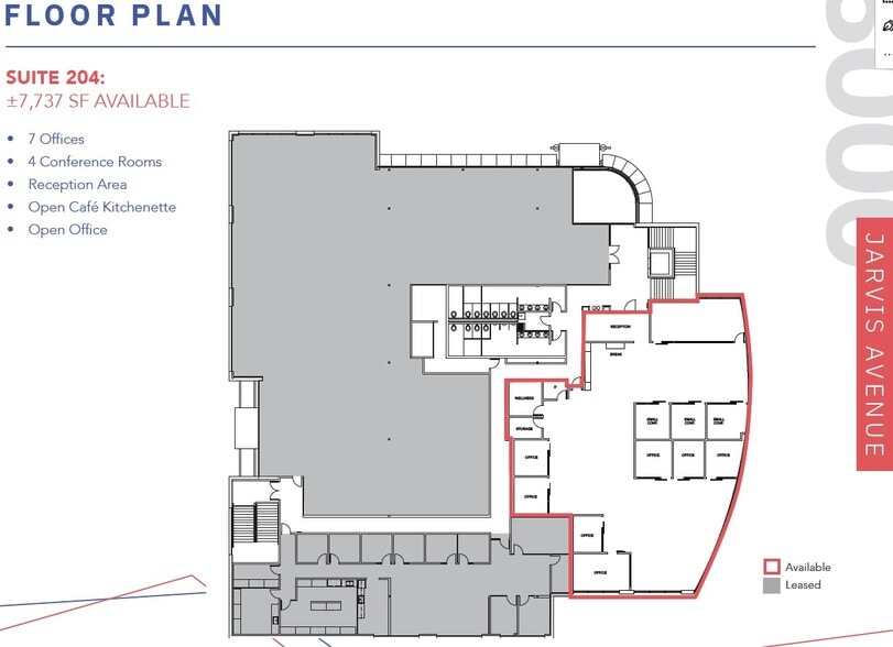
- ±4,279 SF to ±7,737 SF Available
- Retail Amenities Nearby
- Proximity to San Jose, San Francisco, and Oakland Airport
- Adjacent to BioMed Realty’s Pacific Research Center and Aloft Hotel
- 3 Minutes from Dumbarton Bridge and 18 Minutes to Palo Alto
Property Facts
Building Type
Office
Year Built
2000
Building Height
2 Stories
Building Size
48,236 SF
Building Class
B
Typical Floor Size
24,875 SF
Parking
180 Surface Parking Spaces
Surface Tandem Parking
Covered Parking
Covered Tandem Parking
Reserved Parking
1 of 5
Videos
Matterport 3D Exterior
Matterport 3D Tour
Photos
Street View
Street
Map
