Your email has been sent.
Park Highlights
- Located within Forest Office Park, a 740,000 SF suburban campus
- Surrounded by retail hubs including Regency Square and Reynolds Crossing
- Directly across from Henrico Doctors’ Hospital and near Cheswick Park
Park Facts
| Total Space Available | 111,903 SF | Park Type | Office Park |
| Max. Contiguous | 35,061 SF | Cross Streets | Forest Ave |
| Total Space Available | 111,903 SF |
| Max. Contiguous | 35,061 SF |
| Park Type | Office Park |
| Cross Streets | Forest Ave |
All Available Spaces(25)
Display Rental Rate as
- Space
- Size
- Term
- Rental Rate
- Space Use
- Build-Out
- Available
- Partially Built-Out as Standard Office
- 36 Private Offices
- Can be combined with additional space(s) for up to 35,061 SF of adjacent space
- Fits 45 - 141 People
- 6 Conference Rooms
- Partially Built-Out as Standard Office
- 28 Private Offices
- Can be combined with additional space(s) for up to 35,061 SF of adjacent space
- Fits 44 - 140 People
- 4 Conference Rooms
| Space | Size | Term | Rental Rate | Space Use | Build-Out | Available |
| 1st Floor | 17,621 SF | Negotiable | Upon Request Upon Request Upon Request Upon Request | Office | Partial Build-Out | Now |
| 2nd Floor | 17,440 SF | Negotiable | Upon Request Upon Request Upon Request Upon Request | Office | Partial Build-Out | Now |
8004 Franklin Farms Dr - 1st Floor
8004 Franklin Farms Dr - 2nd Floor
- Space
- Size
- Term
- Rental Rate
- Space Use
- Build-Out
- Available
- Fully Built-Out as a Restaurant or Café Space
- Located in-line with other retail
- Partially Built-Out as Standard Office
- 26 Private Offices
- Fits 21 - 68 People
- Partially Built-Out as Standard Office
- Fits 5 - 14 People
- Mostly Open Floor Plan Layout
- 5 Private Offices
- Partially Built-Out as Standard Office
- Fits 6 - 18 People
- 1 Conference Room
- Mostly Open Floor Plan Layout
- 5 Private Offices
- Partially Built-Out as Standard Office
- Fits 6 - 18 People
- Mostly Open Floor Plan Layout
- 2 Private Offices
| Space | Size | Term | Rental Rate | Space Use | Build-Out | Available |
| 1st Floor | 1,260 SF | Negotiable | Upon Request Upon Request Upon Request Upon Request | Retail | Full Build-Out | Now |
| 1st Floor, Ste 100 | 8,376 SF | Negotiable | Upon Request Upon Request Upon Request Upon Request | Office | Partial Build-Out | Now |
| 1st Floor, Ste 110 | 1,734 SF | Negotiable | Upon Request Upon Request Upon Request Upon Request | Office | Partial Build-Out | Now |
| 2nd Floor, Ste 204 | 2,206 SF | Negotiable | Upon Request Upon Request Upon Request Upon Request | Office | Partial Build-Out | Now |
| 2nd Floor, Ste 215 | 2,175 SF | Negotiable | Upon Request Upon Request Upon Request Upon Request | Office | Partial Build-Out | Now |
1602 Rolling Hills Dr - 1st Floor
1602 Rolling Hills Dr - 1st Floor - Ste 100
1602 Rolling Hills Dr - 1st Floor - Ste 110
1602 Rolling Hills Dr - 2nd Floor - Ste 204
1602 Rolling Hills Dr - 2nd Floor - Ste 215
- Space
- Size
- Term
- Rental Rate
- Space Use
- Build-Out
- Available
- Partially Built-Out as Standard Office
- Fits 12 - 39 People
- 2 Conference Rooms
- Mostly Open Floor Plan Layout
- 14 Private Offices
- Can be combined with additional space(s) for up to 15,618 SF of adjacent space
- Partially Built-Out as Standard Office
- Fits 28 - 87 People
- 1 Conference Room
- Mostly Open Floor Plan Layout
- 8 Private Offices
- Can be combined with additional space(s) for up to 15,618 SF of adjacent space
- Partially Built-Out as Standard Office
- 16 Private Offices
- Can be combined with additional space(s) for up to 19,731 SF of adjacent space
- Fits 21 - 65 People
- 2 Conference Rooms
- Partially Built-Out as Standard Office
- Fits 8 - 24 People
- Open Floor Plan Layout
- Can be combined with additional space(s) for up to 19,731 SF of adjacent space
- Partially Built-Out as Standard Office
- Fits 6 - 17 People
- 1 Conference Room
- Mostly Open Floor Plan Layout
- 7 Private Offices
- Can be combined with additional space(s) for up to 19,731 SF of adjacent space
- Partially Built-Out as Standard Office
- Fits 9 - 27 People
- Open Floor Plan Layout
- Can be combined with additional space(s) for up to 19,731 SF of adjacent space
- Partially Built-Out as Standard Office
- Fits 5 - 14 People
- Open Floor Plan Layout
- Can be combined with additional space(s) for up to 19,731 SF of adjacent space
- Partially Built-Out as Standard Office
- Fits 5 - 14 People
- Can be combined with additional space(s) for up to 19,731 SF of adjacent space
- Mostly Open Floor Plan Layout
- 4 Private Offices
| Space | Size | Term | Rental Rate | Space Use | Build-Out | Available |
| 1st Floor, Ste 102 | 4,772 SF | Negotiable | Upon Request Upon Request Upon Request Upon Request | Office | Partial Build-Out | Now |
| 1st Floor, Ste 120/130 | 10,846 SF | Negotiable | Upon Request Upon Request Upon Request Upon Request | Office | Partial Build-Out | Now |
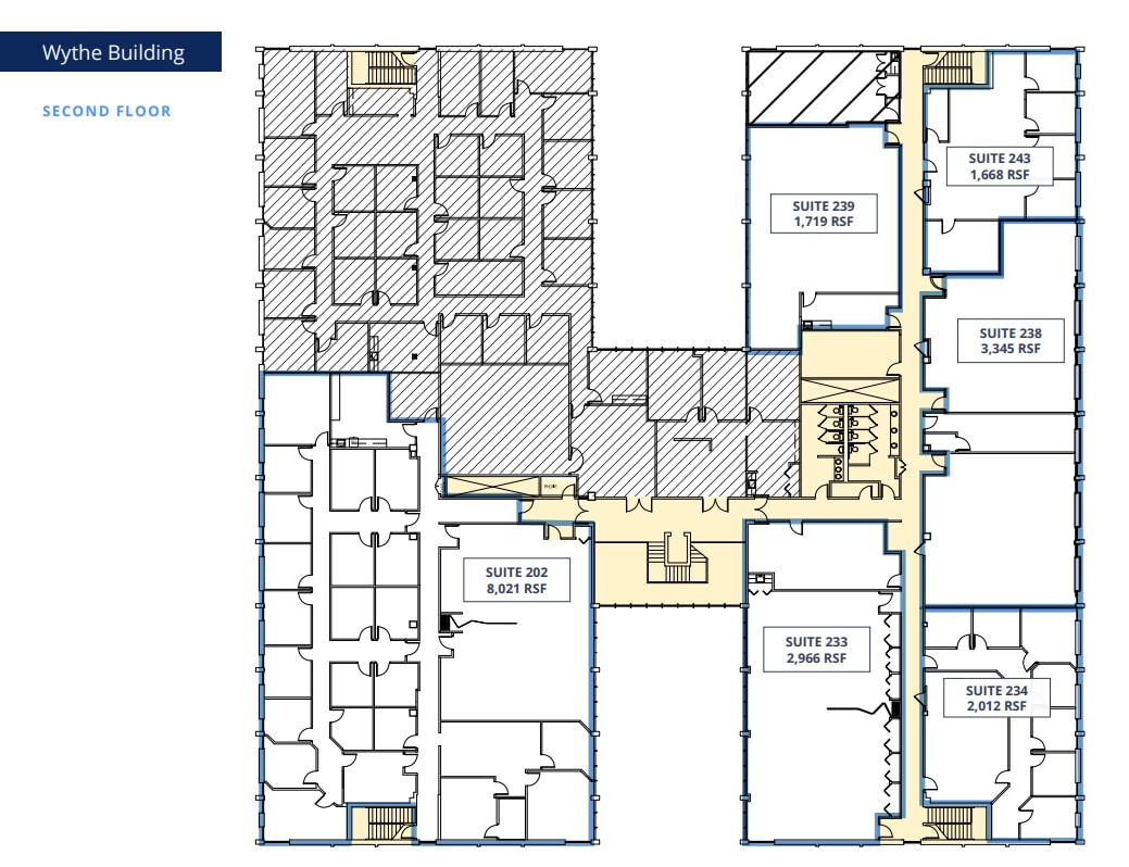
| 2nd Floor, Ste 202 | 8,021 SF | Negotiable | Upon Request Upon Request Upon Request Upon Request | Office | Partial Build-Out | Now |
| 2nd Floor, Ste 233 | 2,966 SF | Negotiable | Upon Request Upon Request Upon Request Upon Request | Office | Partial Build-Out | Now |
| 2nd Floor, Ste 234 | 2,012 SF | Negotiable | Upon Request Upon Request Upon Request Upon Request | Office | Partial Build-Out | Now |
| 2nd Floor, Ste 238 | 3,345 SF | Negotiable | Upon Request Upon Request Upon Request Upon Request | Office | Partial Build-Out | Now |
| 2nd Floor, Ste 239 | 1,719 SF | Negotiable | Upon Request Upon Request Upon Request Upon Request | Office | Partial Build-Out | Now |
| 2nd Floor, Ste 243 | 1,668 SF | Negotiable | Upon Request Upon Request Upon Request Upon Request | Office | Partial Build-Out | Now |
1604 Santa Rosa Rd - 1st Floor - Ste 102
1604 Santa Rosa Rd - 1st Floor - Ste 120/130
1604 Santa Rosa Rd - 2nd Floor - Ste 202
1604 Santa Rosa Rd - 2nd Floor - Ste 233
1604 Santa Rosa Rd - 2nd Floor - Ste 234
1604 Santa Rosa Rd - 2nd Floor - Ste 238
1604 Santa Rosa Rd - 2nd Floor - Ste 239
1604 Santa Rosa Rd - 2nd Floor - Ste 243
- Space
- Size
- Term
- Rental Rate
- Space Use
- Build-Out
- Available
- Fits 2 - 5 People
Lobby renovated 2024! Brand new tenant lounge.
- Partially Built-Out as Standard Office
- 4 Private Offices
- Fits 5 - 15 People
- Can be combined with additional space(s) for up to 11,568 SF of adjacent space
- Fits 17 - 53 People
Lobby renovated 2024! Brand new tenant lounge.
- Partially Built-Out as Standard Office
- 5 Private Offices
- Can be combined with additional space(s) for up to 11,568 SF of adjacent space
- Fits 25 - 79 People
- 2 Conference Rooms
| Space | Size | Term | Rental Rate | Space Use | Build-Out | Available |
| 1st Floor, Ste 111 | 541 SF | Negotiable | Upon Request Upon Request Upon Request Upon Request | Office | - | Now |
| 2nd Floor, Ste 210 | 1,809 SF | Negotiable | Upon Request Upon Request Upon Request Upon Request | Office | Partial Build-Out | Now |
| 2nd Floor, Ste 211 | 6,526 SF | Negotiable | Upon Request Upon Request Upon Request Upon Request | Office | - | Now |
| 2nd Floor, Ste 235 | 9,759 SF | Negotiable | Upon Request Upon Request Upon Request Upon Request | Office | Partial Build-Out | Now |
1503 Santa Rosa Rd - 1st Floor - Ste 111
1503 Santa Rosa Rd - 2nd Floor - Ste 210
1503 Santa Rosa Rd - 2nd Floor - Ste 211
1503 Santa Rosa Rd - 2nd Floor - Ste 235
- Space
- Size
- Term
- Rental Rate
- Space Use
- Build-Out
- Available
- Fits 2 - 5 People
- Partially Built-Out as Standard Office
- 4 Private Offices
- Fits 4 - 12 People
| Space | Size | Term | Rental Rate | Space Use | Build-Out | Available |
| 1st Floor, Ste 119B | 573 SF | Negotiable | Upon Request Upon Request Upon Request Upon Request | Office | - | Now |
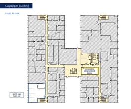
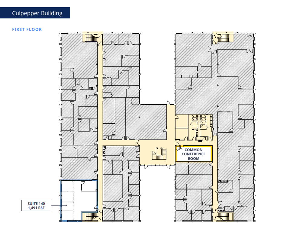
| 1st Floor, Ste 140 | 1,491 SF | Negotiable | Upon Request Upon Request Upon Request Upon Request | Office | Partial Build-Out | Now |
1606 Santa Rosa Rd - 1st Floor - Ste 119B
1606 Santa Rosa Rd - 1st Floor - Ste 140
- Space
- Size
- Term
- Rental Rate
- Space Use
- Build-Out
- Available
- Partially Built-Out as Standard Office
- 5 Private Offices
- Fits 5 - 14 People
- Can be combined with additional space(s) for up to 2,438 SF of adjacent space
- Fits 2 - 7 People
- Can be combined with additional space(s) for up to 2,438 SF of adjacent space
- Fits 2 - 6 People
- Can be combined with additional space(s) for up to 2,605 SF of adjacent space
- Partially Built-Out as Standard Office
- Fits 5 - 16 People
- Can be combined with additional space(s) for up to 2,605 SF of adjacent space
- Mostly Open Floor Plan Layout
- 5 Private Offices
| Space | Size | Term | Rental Rate | Space Use | Build-Out | Available |
| 1st Floor, Ste 127 | 1,649 SF | Negotiable | Upon Request Upon Request Upon Request Upon Request | Office | Partial Build-Out | Now |
| 1st Floor, Ste 137 | 789 SF | Negotiable | Upon Request Upon Request Upon Request Upon Request | Office | - | Now |
| 2nd Floor, Ste 205 | 708 SF | Negotiable | Upon Request Upon Request Upon Request Upon Request | Office | - | Now |
| 2nd Floor, Ste 209 | 1,897 SF | Negotiable | Upon Request Upon Request Upon Request Upon Request | Office | Partial Build-Out | Now |
8001 Franklin Farms Dr - 1st Floor - Ste 127
8001 Franklin Farms Dr - 1st Floor - Ste 137
8001 Franklin Farms Dr - 2nd Floor - Ste 205
8001 Franklin Farms Dr - 2nd Floor - Ste 209
8004 Franklin Farms Dr - 1st Floor
| Size | 17,621 SF |
| Term | Negotiable |
| Rental Rate | Upon Request |
| Space Use | Office |
| Build-Out | Partial Build-Out |
| Available | Now |
- Partially Built-Out as Standard Office
- Fits 45 - 141 People
- 36 Private Offices
- 6 Conference Rooms
- Can be combined with additional space(s) for up to 35,061 SF of adjacent space
8004 Franklin Farms Dr - 2nd Floor
| Size | 17,440 SF |
| Term | Negotiable |
| Rental Rate | Upon Request |
| Space Use | Office |
| Build-Out | Partial Build-Out |
| Available | Now |
- Partially Built-Out as Standard Office
- Fits 44 - 140 People
- 28 Private Offices
- 4 Conference Rooms
- Can be combined with additional space(s) for up to 35,061 SF of adjacent space
1602 Rolling Hills Dr - 1st Floor
| Size | 1,260 SF |
| Term | Negotiable |
| Rental Rate | Upon Request |
| Space Use | Retail |
| Build-Out | Full Build-Out |
| Available | Now |
- Fully Built-Out as a Restaurant or Café Space
- Located in-line with other retail
1602 Rolling Hills Dr - 1st Floor - Ste 100
| Size | 8,376 SF |
| Term | Negotiable |
| Rental Rate | Upon Request |
| Space Use | Office |
| Build-Out | Partial Build-Out |
| Available | Now |
- Partially Built-Out as Standard Office
- Fits 21 - 68 People
- 26 Private Offices
1602 Rolling Hills Dr - 1st Floor - Ste 110
| Size | 1,734 SF |
| Term | Negotiable |
| Rental Rate | Upon Request |
| Space Use | Office |
| Build-Out | Partial Build-Out |
| Available | Now |
- Partially Built-Out as Standard Office
- Mostly Open Floor Plan Layout
- Fits 5 - 14 People
- 5 Private Offices
1602 Rolling Hills Dr - 2nd Floor - Ste 204
| Size | 2,206 SF |
| Term | Negotiable |
| Rental Rate | Upon Request |
| Space Use | Office |
| Build-Out | Partial Build-Out |
| Available | Now |
- Partially Built-Out as Standard Office
- Mostly Open Floor Plan Layout
- Fits 6 - 18 People
- 5 Private Offices
- 1 Conference Room
1602 Rolling Hills Dr - 2nd Floor - Ste 215
| Size | 2,175 SF |
| Term | Negotiable |
| Rental Rate | Upon Request |
| Space Use | Office |
| Build-Out | Partial Build-Out |
| Available | Now |
- Partially Built-Out as Standard Office
- Mostly Open Floor Plan Layout
- Fits 6 - 18 People
- 2 Private Offices
1604 Santa Rosa Rd - 1st Floor - Ste 102
| Size | 4,772 SF |
| Term | Negotiable |
| Rental Rate | Upon Request |
| Space Use | Office |
| Build-Out | Partial Build-Out |
| Available | Now |
- Partially Built-Out as Standard Office
- Mostly Open Floor Plan Layout
- Fits 12 - 39 People
- 14 Private Offices
- 2 Conference Rooms
- Can be combined with additional space(s) for up to 15,618 SF of adjacent space
1604 Santa Rosa Rd - 1st Floor - Ste 120/130
| Size | 10,846 SF |
| Term | Negotiable |
| Rental Rate | Upon Request |
| Space Use | Office |
| Build-Out | Partial Build-Out |
| Available | Now |
- Partially Built-Out as Standard Office
- Mostly Open Floor Plan Layout
- Fits 28 - 87 People
- 8 Private Offices
- 1 Conference Room
- Can be combined with additional space(s) for up to 15,618 SF of adjacent space
1604 Santa Rosa Rd - 2nd Floor - Ste 202
| Size | 8,021 SF |
| Term | Negotiable |
| Rental Rate | Upon Request |
| Space Use | Office |
| Build-Out | Partial Build-Out |
| Available | Now |
- Partially Built-Out as Standard Office
- Fits 21 - 65 People
- 16 Private Offices
- 2 Conference Rooms
- Can be combined with additional space(s) for up to 19,731 SF of adjacent space
1604 Santa Rosa Rd - 2nd Floor - Ste 233
| Size | 2,966 SF |
| Term | Negotiable |
| Rental Rate | Upon Request |
| Space Use | Office |
| Build-Out | Partial Build-Out |
| Available | Now |
- Partially Built-Out as Standard Office
- Open Floor Plan Layout
- Fits 8 - 24 People
- Can be combined with additional space(s) for up to 19,731 SF of adjacent space
1604 Santa Rosa Rd - 2nd Floor - Ste 234
| Size | 2,012 SF |
| Term | Negotiable |
| Rental Rate | Upon Request |
| Space Use | Office |
| Build-Out | Partial Build-Out |
| Available | Now |
- Partially Built-Out as Standard Office
- Mostly Open Floor Plan Layout
- Fits 6 - 17 People
- 7 Private Offices
- 1 Conference Room
- Can be combined with additional space(s) for up to 19,731 SF of adjacent space
1604 Santa Rosa Rd - 2nd Floor - Ste 238
| Size | 3,345 SF |
| Term | Negotiable |
| Rental Rate | Upon Request |
| Space Use | Office |
| Build-Out | Partial Build-Out |
| Available | Now |
- Partially Built-Out as Standard Office
- Open Floor Plan Layout
- Fits 9 - 27 People
- Can be combined with additional space(s) for up to 19,731 SF of adjacent space
1604 Santa Rosa Rd - 2nd Floor - Ste 239
| Size | 1,719 SF |
| Term | Negotiable |
| Rental Rate | Upon Request |
| Space Use | Office |
| Build-Out | Partial Build-Out |
| Available | Now |
- Partially Built-Out as Standard Office
- Open Floor Plan Layout
- Fits 5 - 14 People
- Can be combined with additional space(s) for up to 19,731 SF of adjacent space
1604 Santa Rosa Rd - 2nd Floor - Ste 243
| Size | 1,668 SF |
| Term | Negotiable |
| Rental Rate | Upon Request |
| Space Use | Office |
| Build-Out | Partial Build-Out |
| Available | Now |
- Partially Built-Out as Standard Office
- Mostly Open Floor Plan Layout
- Fits 5 - 14 People
- 4 Private Offices
- Can be combined with additional space(s) for up to 19,731 SF of adjacent space
1503 Santa Rosa Rd - 1st Floor - Ste 111
| Size | 541 SF |
| Term | Negotiable |
| Rental Rate | Upon Request |
| Space Use | Office |
| Build-Out | - |
| Available | Now |
- Fits 2 - 5 People
1503 Santa Rosa Rd - 2nd Floor - Ste 210
| Size | 1,809 SF |
| Term | Negotiable |
| Rental Rate | Upon Request |
| Space Use | Office |
| Build-Out | Partial Build-Out |
| Available | Now |
Lobby renovated 2024! Brand new tenant lounge.
- Partially Built-Out as Standard Office
- Fits 5 - 15 People
- 4 Private Offices
- Can be combined with additional space(s) for up to 11,568 SF of adjacent space
1503 Santa Rosa Rd - 2nd Floor - Ste 211
| Size | 6,526 SF |
| Term | Negotiable |
| Rental Rate | Upon Request |
| Space Use | Office |
| Build-Out | - |
| Available | Now |
- Fits 17 - 53 People
1503 Santa Rosa Rd - 2nd Floor - Ste 235
| Size | 9,759 SF |
| Term | Negotiable |
| Rental Rate | Upon Request |
| Space Use | Office |
| Build-Out | Partial Build-Out |
| Available | Now |
Lobby renovated 2024! Brand new tenant lounge.
- Partially Built-Out as Standard Office
- Fits 25 - 79 People
- 5 Private Offices
- 2 Conference Rooms
- Can be combined with additional space(s) for up to 11,568 SF of adjacent space
1606 Santa Rosa Rd - 1st Floor - Ste 119B
| Size | 573 SF |
| Term | Negotiable |
| Rental Rate | Upon Request |
| Space Use | Office |
| Build-Out | - |
| Available | Now |
- Fits 2 - 5 People
1606 Santa Rosa Rd - 1st Floor - Ste 140
| Size | 1,491 SF |
| Term | Negotiable |
| Rental Rate | Upon Request |
| Space Use | Office |
| Build-Out | Partial Build-Out |
| Available | Now |
- Partially Built-Out as Standard Office
- Fits 4 - 12 People
- 4 Private Offices
8001 Franklin Farms Dr - 1st Floor - Ste 127
| Size | 1,649 SF |
| Term | Negotiable |
| Rental Rate | Upon Request |
| Space Use | Office |
| Build-Out | Partial Build-Out |
| Available | Now |
- Partially Built-Out as Standard Office
- Fits 5 - 14 People
- 5 Private Offices
- Can be combined with additional space(s) for up to 2,438 SF of adjacent space
8001 Franklin Farms Dr - 1st Floor - Ste 137
| Size | 789 SF |
| Term | Negotiable |
| Rental Rate | Upon Request |
| Space Use | Office |
| Build-Out | - |
| Available | Now |
- Fits 2 - 7 People
- Can be combined with additional space(s) for up to 2,438 SF of adjacent space
8001 Franklin Farms Dr - 2nd Floor - Ste 205
| Size | 708 SF |
| Term | Negotiable |
| Rental Rate | Upon Request |
| Space Use | Office |
| Build-Out | - |
| Available | Now |
- Fits 2 - 6 People
- Can be combined with additional space(s) for up to 2,605 SF of adjacent space
8001 Franklin Farms Dr - 2nd Floor - Ste 209
| Size | 1,897 SF |
| Term | Negotiable |
| Rental Rate | Upon Request |
| Space Use | Office |
| Build-Out | Partial Build-Out |
| Available | Now |
- Partially Built-Out as Standard Office
- Mostly Open Floor Plan Layout
- Fits 5 - 16 People
- 5 Private Offices
- Can be combined with additional space(s) for up to 2,605 SF of adjacent space
Select Tenants at This Property
- Floor
- Tenant Name
- Industry
- 1st
- Cultural Resource Analysts
- Professional, Scientific, and Technical Services
- 1st
- Synergy Benefits Inc
- Finance and Insurance
- 1st
- Tingen Law
- Professional, Scientific, and Technical Services
- 1st
- Westhampton Family Psychologists, P.C.
- Health Care and Social Assistance
- 2nd
- ZOE
- Health Care and Social Assistance
Park Overview
Forest Office Park comprises 18 buildings totaling 740,000 SF, and the Nelson Building is one of seven owned by Equitable Real Estate Partners, ensuring consistent management and operational quality. Tenants enjoy access to shared conference rooms in nearby Culpepper and Koger Buildings, with seating capacities of 25 and 15 respectively. Monument and building façade signage opportunities are available, offering excellent branding potential. The location provides seamless access to Interstate 64, just one mile away, and is surrounded by popular retail destinations including Regency Square, Reynolds Crossing, and the Village Shopping Center. With plentiful parking and flexible suite configurations, the Nelson Building is ideal for both traditional office and medical office users seeking a vibrant, accessible, and amenity-rich environment.
Presented by
Forest Office Park | Richmond, VA 23229
Hmm, there seems to have been an error sending your message. Please try again.
Thanks! Your message was sent.













