Your email has been sent.
Highlights
- Heavy daytime population
Space Availability (1)
Display Rental Rate as
- Space
- Size
- Term
- Rental Rate
- Rent Type
| Space | Size | Term | Rental Rate | Rent Type | ||
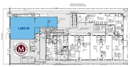
| 1st Floor, Ste 810 | 1,382 SF | Negotiable | $88.86 CAD/SF/YR $7.40 CAD/SF/MO $122,802 CAD/YR $10,234 CAD/MO | Triple Net (NNN) |
1st Floor, Ste 810
Corner endcap at the 8th Street and Alton Rd Intersection. Located next to Machiallina and in close proximity to Whole Foods and the 9th and West Parking Garage. The space is 1,382 SF and services thousands of condo units and apartments on West Ave and Bay Rd.
- Lease rate does not include utilities, property expenses or building services
- Partially Built-Out as Standard Retail Space
- Located in-line with other retail
- Central Air Conditioning
- Private Restrooms
- Street visibility
- Close proximity to residential
Rent Types
The rent amount and type that the tenant (lessee) will be responsible to pay to the landlord (lessor) throughout the lease term is negotiated prior to both parties signing a lease agreement. The rent type will vary depending upon the services provided. For example, triple net rents are typically lower than full service rents due to additional expenses the tenant is required to pay in addition to the base rent. Contact the listing broker for a full understanding of any associated costs or additional expenses for each rent type.
1. Full Service: A rental rate that includes normal building standard services as provided by the landlord within a base year rental.
2. Double Net (NN): Tenant pays for only two of the building expenses; the landlord and tenant determine the specific expenses prior to signing the lease agreement.
3. Triple Net (NNN): A lease in which the tenant is responsible for all expenses associated with their proportional share of occupancy of the building.
4. Modified Gross: Modified Gross is a general type of lease rate where typically the tenant will be responsible for their proportional share of one or more of the expenses. The landlord will pay the remaining expenses. See the below list of common Modified Gross rental rate structures: 4. Plus All Utilities: A type of Modified Gross Lease where the tenant is responsible for their proportional share of utilities in addition to the rent. 4. Plus Cleaning: A type of Modified Gross Lease where the tenant is responsible for their proportional share of cleaning in addition to the rent. 4. Plus Electric: A type of Modified Gross Lease where the tenant is responsible for their proportional share of the electrical cost in addition to the rent. 4. Plus Electric & Cleaning: A type of Modified Gross Lease where the tenant is responsible for their proportional share of the electrical and cleaning cost in addition to the rent. 4. Plus Utilities and Char: A type of Modified Gross Lease where the tenant is responsible for their proportional share of the utilities and cleaning cost in addition to the rent. 4. Industrial Gross: A type of Modified Gross lease where the tenant pays one or more of the expenses in addition to the rent. The landlord and tenant determine these prior to signing the lease agreement.
5. Tenant Electric: The landlord pays for all services and the tenant is responsible for their usage of lights and electrical outlets in the space they occupy.
6. Negotiable or Upon Request: Used when the leasing contact does not provide the rent or service type.
7. TBD: To be determined; used for buildings for which no rent or service type is known, commonly utilized when the buildings are not yet built.
Property Facts
| Total Space Available | 1,382 SF | Gross Leasable Area | 10,000 SF |
| Property Type | Retail | Year Built | 1939 |
| Property Subtype | Storefront Retail/Residential | Parking Ratio | 5.06/1,000 SF |
| Total Space Available | 1,382 SF |
| Property Type | Retail |
| Property Subtype | Storefront Retail/Residential |
| Gross Leasable Area | 10,000 SF |
| Year Built | 1939 |
| Parking Ratio | 5.06/1,000 SF |
About the Property
Strategically located on one of Miami Beach’s busiest north–south corridors, 810 Alton Road offers a two-story retail building with strong visibility and frontage. This historic building blends classic South Beach character with modern functionality and is ideally positioned in a high-density residential and commercial zone. Zoned CD-2, the property supports a wide range of uses including retail, restaurant, showroom, wellness, and creative office. With a flexible layout, high foot and vehicle traffic, and proximity to Lincoln Road, West Avenue, and the beach, 810 Alton is a rare opportunity for tenants seeking a prominent, well-located presence in the heart of South Beach.
- Signage
- Tenant Controlled HVAC
- Monument Signage
Nearby Major Retailers
Presented by
810-820 Alton Rd
Hmm, there seems to have been an error sending your message. Please try again.
Thanks! Your message was sent.






