Your email has been sent.
Cleveland Medical Mall 810 E Sunflower Rd 17,684 SF of Medical Space Available in Cleveland, MS 38732



Highlights
- Medical Corridor
All Available Space(1)
Display Rental Rate as
- Space
- Size
- Term
- Rental Rate
- Space Use
- Build-Out
- Available
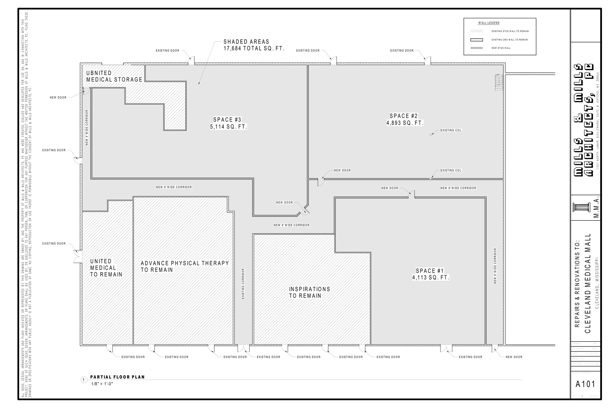
Medical/office space directly across from Bolívar County Hospital. Build-to-Suit Medical / Office Space for Lease with covered entrances. Flexible, divisible medical / office suites available, ideal for clinics, outpatient services, medical offices, or ancillary health uses. Total space approx. 17684 sf, possible spaces 1-3, 4000-5000 sf. The medical mall is approximately 75% occupied with impressive medical co-tenancy community including but not limited to cardiovascular services, hospice, home health services, pharmacy, physical therapy and medical supplies. Bolivar Physicians division of Scion Hospital, is a major long term tenant. Excellent paved parking, visibility, and ease of access from Hwy 8 and US-278 intersection. Build-to-suit arrangements and tenant improvement (TI) allowances are negotiable. Spaces available in the 4000 SF to 18000 SF range. Positioned in a strong medical/retail corridor with steady traffic and co-tenancy of medical uses. Outparcels and ground lease/build-to-suit parcels also available. Current tenants: Allegiance, Advance Physical Therapy, Lincare, Endovascular, Cleveland Medical Arts Pharmacy, Bolivar Physician division of Scion Hospital, Heart of Hospice. Cleveland is the center of trade in the Mississippi Delta and home of Delta State University and several cultural facilities.
- Listed rate may not include certain utilities, building services and property expenses
- Office intensive layout
- Reception Area
- Conference Rooms
- Wi-Fi Connectivity
- Emergency Lighting
- High Visibility
- Fully Built-Out as Standard Medical Space
- Finished Ceilings: 10’
- Central Air and Heating
- Private Restrooms
- After Hours HVAC Available
- Across from Bolivar County Medical Center, Scion
- Build-to-Suit Medical / Office Space
| Space | Size | Term | Rental Rate | Space Use | Build-Out | Available |
| 1st Floor, Ste 1-3 | 17,684 SF | 5-10 Years | $20.48 CAD/SF/YR $1.71 CAD/SF/MO $362,255 CAD/YR $30,188 CAD/MO | Medical | Full Build-Out | Now |
1st Floor, Ste 1-3
| Size |
| 17,684 SF |
| Term |
| 5-10 Years |
| Rental Rate |
| $20.48 CAD/SF/YR $1.71 CAD/SF/MO $362,255 CAD/YR $30,188 CAD/MO |
| Space Use |
| Medical |
| Build-Out |
| Full Build-Out |
| Available |
| Now |
1st Floor, Ste 1-3
| Size | 17,684 SF |
| Term | 5-10 Years |
| Rental Rate | $20.48 CAD/SF/YR |
| Space Use | Medical |
| Build-Out | Full Build-Out |
| Available | Now |
Medical/office space directly across from Bolívar County Hospital. Build-to-Suit Medical / Office Space for Lease with covered entrances. Flexible, divisible medical / office suites available, ideal for clinics, outpatient services, medical offices, or ancillary health uses. Total space approx. 17684 sf, possible spaces 1-3, 4000-5000 sf. The medical mall is approximately 75% occupied with impressive medical co-tenancy community including but not limited to cardiovascular services, hospice, home health services, pharmacy, physical therapy and medical supplies. Bolivar Physicians division of Scion Hospital, is a major long term tenant. Excellent paved parking, visibility, and ease of access from Hwy 8 and US-278 intersection. Build-to-suit arrangements and tenant improvement (TI) allowances are negotiable. Spaces available in the 4000 SF to 18000 SF range. Positioned in a strong medical/retail corridor with steady traffic and co-tenancy of medical uses. Outparcels and ground lease/build-to-suit parcels also available. Current tenants: Allegiance, Advance Physical Therapy, Lincare, Endovascular, Cleveland Medical Arts Pharmacy, Bolivar Physician division of Scion Hospital, Heart of Hospice. Cleveland is the center of trade in the Mississippi Delta and home of Delta State University and several cultural facilities.
- Listed rate may not include certain utilities, building services and property expenses
- Fully Built-Out as Standard Medical Space
- Office intensive layout
- Finished Ceilings: 10’
- Reception Area
- Central Air and Heating
- Conference Rooms
- Private Restrooms
- Wi-Fi Connectivity
- After Hours HVAC Available
- Emergency Lighting
- Across from Bolivar County Medical Center, Scion
- High Visibility
- Build-to-Suit Medical / Office Space
Property Overview
Medical/office space directly across from Bolivar County Hospital; Build-to-Suit Medical / Office Space for Lease with covered entrances. Flexible, divisible medical / office suites available, ideal for clinics, outpatient services, medical offices, or ancillary health uses. Total space approx. 17684 sf, possible spaces 1-3, 4000-5000 sf Tenant pays utilities and janitorial service (in addition to base lease). The medical mall is approximately 75% occupied with impressive medical co-tenancy community, including but not limited to cardiovascular services, hospice, home health services, pharmacy, physical therapy and medical supplies. Excellent paved parking, visibility, and ease of access from Hwy 8 and US-278 intersection. Build-to-suit arrangements and tenant improvement (TI) allowances are negotiable. Spaces available in the 4000 SF to 18000 SF range. Positioned in a strong medical/retail corridor with steady traffic and co-tenancy of medical uses. Prime rental spaces, indoor low-cost/sf storage available to tenants. Out-parcels and ground lease / build-to-suit parcels also available adjacent to the main building. Current tenants: Allegiance, Advance Physical Therapy, United Healthcare, Vascular Access Center, Cleveland Medical Arts Pharmacy, Bolivar Physician, Heart of Hospice.
- Atrium
- Signage
- Air Conditioning
Property Facts
Select Tenants
- Floor
- Tenant Name
- Industry
- 1st
- Advance Physical Therapy
- Services
- 1st
- Endovascular Health Services
- Health Care and Social Assistance
- 1st
- Heart Of Hospice
- Health Care and Social Assistance
- 1st
- United Healthcare
- Health Care and Social Assistance
Presented by
Cleveland Medical Mall | 810 E Sunflower Rd
Hmm, there seems to have been an error sending your message. Please try again.
Thanks! Your message was sent.


