Your email has been sent.
8100 Sandpiper Cir - White Marsh Professional Center 2,736 - 8,425 SF Condo Units Offered at $211,310 - $2,477,418 CAD Per Unit in Nottingham, MD 21236



Investment Highlights
- Top floor office headquarters location in White Marsh
- Free and unreserved parking
- 10 Storage units available on the lower level for $154,500
- Zoning permits medical uses
- Easy access to all White Marsh amenities
- Professional property management
Executive Summary
Suite 300 is a fully improved general business office condominium available for immediate occupancy. The zoning permits medical uses. The unit is currently improved as a bank office with perimeter offices along the window line , open space for work stations, reception area, conference room, men's an women restrooms storage and a large kitchen with a balcony. The lower level storage unit is a fully improved secure storage floor with 10 modern individual units with separate rollup entry doors.
2 Units Available
Unit LL
| Unit Size | 2,736 SF | Sale Type | Investment or Owner User |
| Price | $211,310 CAD | Cap Rate | 10.00% |
| Price Per SF | $77.23 CAD | NOI | $21,130.96 CAD |
| Condo Use | Industrial |
| Unit Size | 2,736 SF |
| Price | $211,310 CAD |
| Price Per SF | $77.23 CAD |
| Condo Use | Industrial |
| Sale Type | Investment or Owner User |
| Cap Rate | 10.00% |
| NOI | $21,130.96 CAD |
Description
Fully improved secure storage floor with 10 individual units with separate rollup entry doors.
Sale Notes
Assume an average of $150 per month x 10 units x 12 months minus the condo fees and real estate tax for a projected net operating income of $15,450 @ a 10% cap rate. Monthly condo fees are $117 and annual county taxes are $1,161.
Floor Plan
Floor Plan
Interior Photo
Interior Photo
Interior Photo
Interior Photo
Interior Photo
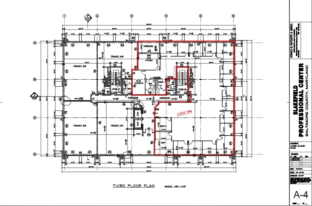
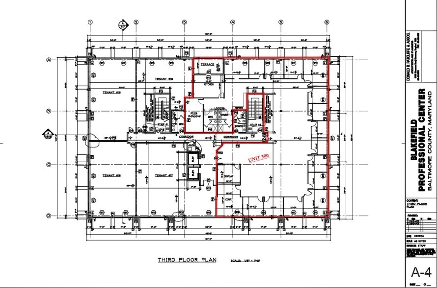
Unit 300
| Unit Size | 8,425 SF | Condo Use | Office/Medical |
| Price | $2,477,418 CAD | Sale Type | Owner User |
| Price Per SF | $294.06 CAD |
| Unit Size | 8,425 SF |
| Price | $2,477,418 CAD |
| Price Per SF | $294.06 CAD |
| Condo Use | Office/Medical |
| Sale Type | Owner User |
Description
Fully improved general business office condominium available for immediate occupancy. The zoning permits medical uses. The unit is currently improved as a bank office with perimeter offices along the window line , open space for work stations, reception area, conference room, men's an women restrooms storage and a large kitchen with a balcony.
Sale Notes
Local lenders offering competitive owner occupancy rates. Assume 20% down payment and financing $ 1,449,100 @ 6% and a 25 year amortization = $9,337 monthly payment ($13.30 rsf) plus monthly $2,159 condo fees and annual Baltimore County Real Estate Taxes. 7/1/25-6/30/26 = $20,010.
Floor Plan
Interior Photo
Interior Photo
Interior Photo
Interior Photo
Interior Photo
Interior Photo
Interior Photo
Interior Photo
Interior Photo
Interior Photo
Property Facts
| Total Building Size | 45,000 SF | Typical Floor Size | 15,000 SF |
| Property Type | Office | Year Built | 2009 |
| Property Subtype | Medical | Lot Size | 3.52 AC |
| Building Class | A | Parking Ratio | 5/1,000 SF |
| Floors | 3 | ||
| Zoning | ML | ||
| Total Building Size | 45,000 SF |
| Property Type | Office |
| Property Subtype | Medical |
| Building Class | A |
| Floors | 3 |
| Typical Floor Size | 15,000 SF |
| Year Built | 2009 |
| Lot Size | 3.52 AC |
| Parking Ratio | 5/1,000 SF |
| Zoning | ML |
Major Tenant Information
| TENANT | SF Occupied | LEASE END DATE |
|---|---|---|
| Phoenix Physical Therapy |
-
|
December 2028
|
Presented by
8100 Sandpiper Cir - White Marsh Professional Center
Hmm, there seems to have been an error sending your message. Please try again.
Thanks! Your message was sent.



