Log In/Sign Up
Your email has been sent.
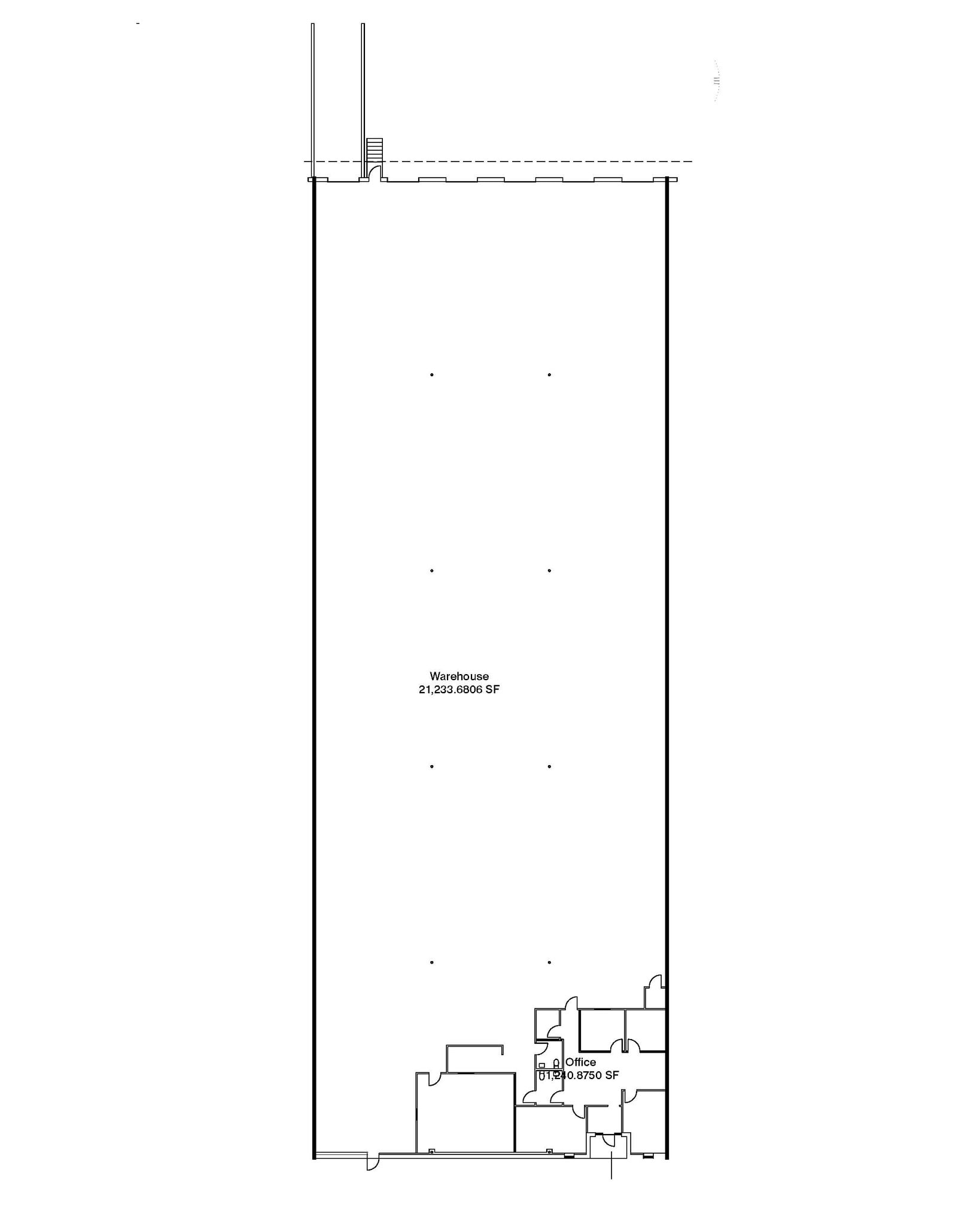
8105 Cobb Center Dr 22,500 SF of Industrial Space Available in Kennesaw, GA 30152



Features
Clear Height
30’
Column Spacing
30’ x 50’
Drive In Bays
4
Exterior Dock Doors
16
Levelers
2
Standard Parking Spaces
76
All Available Space(1)
Display Rental Rate as
- Space
- Size
- Term
- Rental Rate
- Space Use
- Build-Out
- Available
- Includes 1,241 SF of dedicated office space
- 5 Loading Docks
- 1 Drive Bay
- Central Air Conditioning
| Space | Size | Term | Rental Rate | Space Use | Build-Out | Available |
| 1st Floor - B | 22,500 SF | Negotiable | Upon Request Upon Request Upon Request Upon Request | Industrial | Partial Build-Out | Now |
1st Floor - B
| Size |
| 22,500 SF |
| Term |
| Negotiable |
| Rental Rate |
| Upon Request Upon Request Upon Request Upon Request |
| Space Use |
| Industrial |
| Build-Out |
| Partial Build-Out |
| Available |
| Now |
1 of 1
Videos
Matterport 3D Exterior
Matterport 3D Tour
Photos
Street View
Street
Map
1st Floor - B
| Size | 22,500 SF |
| Term | Negotiable |
| Rental Rate | Upon Request |
| Space Use | Industrial |
| Build-Out | Partial Build-Out |
| Available | Now |
- Includes 1,241 SF of dedicated office space
- 1 Drive Bay
- 5 Loading Docks
- Central Air Conditioning
Warehouse Facility Facts
Building Size
75,000 SF
Lot Size
7.88 AC
Year Built
1998
Construction
Masonry
Power Supply
Amps: 250
Zoning
HI, Kennesaw - Heavy Industrial
Select Tenants
- Floor
- Tenant Name
- Industry
- 1st
- 44 Appliance & Supply Co Inc
- Wholesaler
- 1st
- Smartbox Moving And Storage
- Transportation and Warehousing
Somewhat walkable
20/100
Exceptionally drivable
90/100
Somewhat bikeable
30/100
1 of 8
Videos
Matterport 3D Exterior
Matterport 3D Tour
Photos
Street View
Street
Map
Presented by
8105 Cobb Center Dr
Already a member? Log In
Hmm, there seems to have been an error sending your message. Please try again.
Thanks! Your message was sent.



