Log In/Sign Up
Your email has been sent.
Features
Clear Height
23’
Drive In Bays
5
Standard Parking Spaces
26
All Available Spaces(2)
Display Rental Rate as
- Space
- Size
- Term
- Rental Rate
- Space Use
- Build-Out
- Available
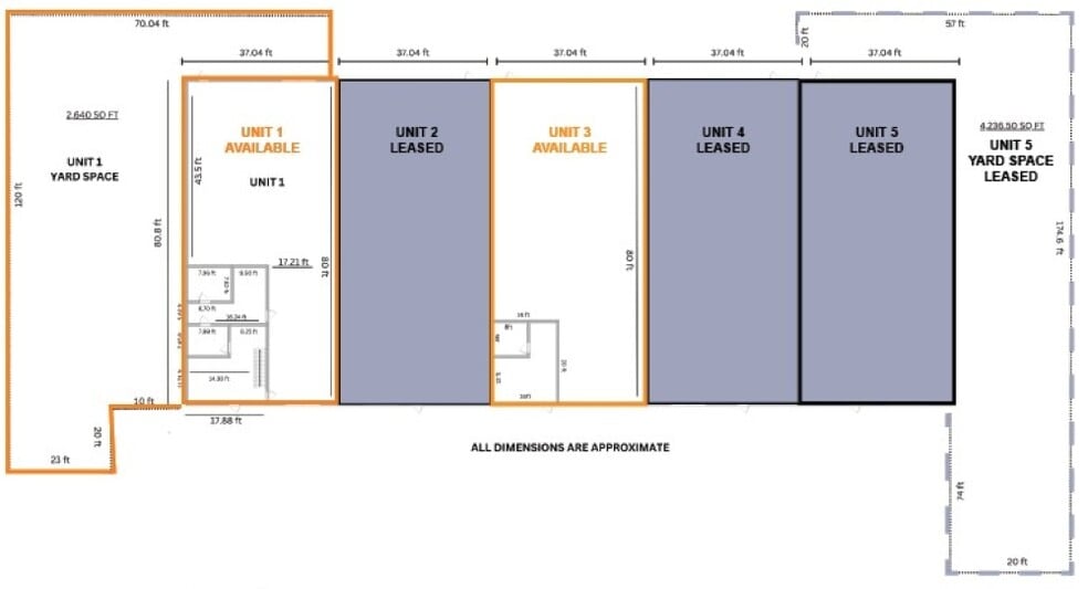
5,200 SF adjacent yard
- 1 Drive Bay
- LED lights - Updated Office - Outdoor storage available
- Lease rate does not include utilities, property expenses or building services
- 1 Drive Bay
| Space | Size | Term | Rental Rate | Space Use | Build-Out | Available |
| 1st Floor - 1 | 3,666 SF | Negotiable | Upon Request Upon Request Upon Request Upon Request | Industrial | - | Now |
| 1st Floor - 3 | 2,960 SF | Negotiable | $18.76 CAD/SF/YR $1.56 CAD/SF/MO $55,525 CAD/YR $4,627 CAD/MO | Industrial | - | Now |
1st Floor - 1
| Size |
| 3,666 SF |
| Term |
| Negotiable |
| Rental Rate |
| Upon Request Upon Request Upon Request Upon Request |
| Space Use |
| Industrial |
| Build-Out |
| - |
| Available |
| Now |
1st Floor - 3
| Size |
| 2,960 SF |
| Term |
| Negotiable |
| Rental Rate |
| $18.76 CAD/SF/YR $1.56 CAD/SF/MO $55,525 CAD/YR $4,627 CAD/MO |
| Space Use |
| Industrial |
| Build-Out |
| - |
| Available |
| Now |
1 of 3
Videos
Matterport 3D Exterior
Matterport 3D Tour
Photos
Street View
Street
Map
1st Floor - 1
| Size | 3,666 SF |
| Term | Negotiable |
| Rental Rate | Upon Request |
| Space Use | Industrial |
| Build-Out | - |
| Available | Now |
5,200 SF adjacent yard
- 1 Drive Bay
1 of 4
Videos
Matterport 3D Exterior
Matterport 3D Tour
Photos
Street View
Street
Map
1st Floor - 3
| Size | 2,960 SF |
| Term | Negotiable |
| Rental Rate | $18.76 CAD/SF/YR |
| Space Use | Industrial |
| Build-Out | - |
| Available | Now |
- LED lights - Updated Office - Outdoor storage available
- Lease rate does not include utilities, property expenses or building services
- 1 Drive Bay
Warehouse Facility Facts
Building Size
15,000 SF
Lot Size
1.00 AC
Year Built
2000
Construction
Metal
Zoning
I-1
1 1
Somewhat walkable
30/100
Exceptionally drivable
100/100
Moderately bikeable
60/100
1 of 4
Videos
Matterport 3D Exterior
Matterport 3D Tour
Photos
Street View
Street
Map
1 of 1
Presented by
812 Baseline Pl
Already a member? Log In
Hmm, there seems to have been an error sending your message. Please try again.
Thanks! Your message was sent.









