Log In/Sign Up
Your email has been sent.
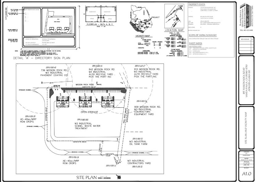
815 Mission Rock Rd - M-3 Zoned 6.88 AC Contractors SALE or LEASE 6.88 Acres of Industrial Land Offered at $13,222,176 CAD in Santa Paula, CA 93060



INVESTMENT HIGHLIGHTS
- Contractors Yard
- Oil field Yard
- Storage Yard
- Heavy Equipment Yard
EXECUTIVE SUMMARY
Environmental all clear and ready to move in. This can be subdivided without to much trouble and the process has started as the plans show. For Sale or Lease 1/2 AC to 5 AC.
DATA ROOM Click Here to Access
- Offering Memorandum
TAXES & OPERATING EXPENSES (ACTUAL - 2025) Click Here to Access |
ANNUAL (CAD) | ANNUAL PER AC (CAD) |
|---|---|---|
| Taxes |
-
|
-
|
| Operating Expenses |
-
|
-
|
| Total Expenses |
$99,999
|
$9.99
|
TAXES & OPERATING EXPENSES (ACTUAL - 2025) Click Here to Access
| Taxes (CAD) | |
|---|---|
| Annual | - |
| Annual Per AC | - |
| Operating Expenses (CAD) | |
|---|---|
| Annual | - |
| Annual Per AC | - |
| Total Expenses (CAD) | |
|---|---|
| Annual | $99,999 |
| Annual Per AC | $9.99 |
PROPERTY FACTS
| Price | $13,222,176 CAD | Property Type | Land |
| Sale Type | Owner User | Property Subtype | Industrial |
| Sale Conditions | Proposed Use | ||
| No. Lots | 1 | Total Lot Size | 6.88 AC |
| Zoning | M-3 - Heavy Industrial | ||
| Price | $13,222,176 CAD |
| Sale Type | Owner User |
| Sale Conditions | |
| No. Lots | 1 |
| Property Type | Land |
| Property Subtype | Industrial |
| Proposed Use | |
| Total Lot Size | 6.88 AC |
| Zoning | M-3 - Heavy Industrial |
1 LOT AVAILABLE
Lot
| Price | $13,222,176 CAD | Lot Size | 6.88 AC |
| Price Per AC | $1,921,827.96 CAD |
| Price | $13,222,176 CAD |
| Price Per AC | $1,921,827.96 CAD |
| Lot Size | 6.88 AC |
Very Rare M-3 Zoned Parcel that is ready to use as a Contractors Storage Yard, Truck Yard or Material Storage Yard. Part of the Mission Rock Road Owners Assoc. with Granite Const., Hotline Const., Pavement Coatings and many more. MAKE OFFER! OWC?
DESCRIPTION
Former water treatment plant that is being cleared as we speak.
1 1
1 of 6
VIDEOS
MATTERPORT 3D EXTERIOR
MATTERPORT 3D TOUR
PHOTOS
STREET VIEW
STREET
MAP
1 of 1
Presented by
815 Mission Rock Rd - M-3 Zoned 6.88 AC Contractors SALE or LEASE
Already a member? Log In
Hmm, there seems to have been an error sending your message. Please try again.
Thanks! Your message was sent.
