Your email has been sent.
820 Stewart St 5,780 SF Retail Condo Unit Offered at $4,796,435 CAD in Seattle, WA 98101

Investment Highlights
- Owner / User opportunity at the center of Seattle’s most sought-after office and retail neighborhood
- Income-producing tenant in 1,764 SF space
Executive Summary
Located at the corner of 8th Avenue and Stewart Street, this downtown Seattle Property anchors the 818 Stewart office tower, with frontage to heavy foot and commuter traffic throughout the day. The tower itself is a modern 14-story office building comprised of 232,127 SF of commercial space with superior quality architecture and steel high rise construction with stone and glass façade.
1 Unit Available
Unit 820
| Unit Size | 5,780 SF | Condo Use | Retail |
| Price | $4,796,435 CAD | Sale Type | Investment or Owner User |
| Price Per SF | $829.83 CAD |
| Unit Size | 5,780 SF |
| Price | $4,796,435 CAD |
| Price Per SF | $829.83 CAD |
| Condo Use | Retail |
| Sale Type | Investment or Owner User |
Description
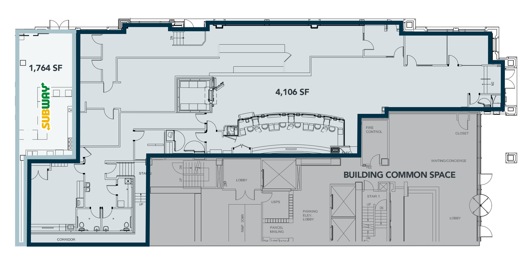
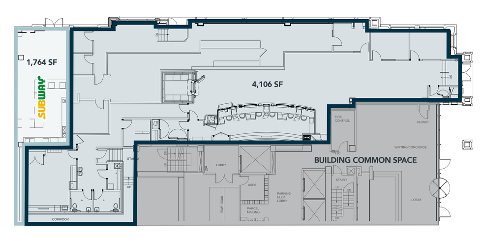
Lee & Associates and CBRE are proud to present the 820 Stewart Commercial Condo (“the Property”), a 5,870 SF ground-floor corner condo unit, located in the 818 Stewart Class A office tower in downtown Seattle. The Property offers a unique and rare opportunity for an owner occupant of retail or office, with 4,106 SF available for occupancy, ideal for an owner operator of various professional office or retail uses. The Property’s remaining 1,764 SF is currently leased to Subway through 10/31/2027. Located at the corner of 8th Avenue and Stewart Street, this downtown Seattle Property anchors the 818 Stewart office tower, with frontage to heavy foot and commuter traffic throughout the day. The tower itself is a modern 14-story office building comprised of 232,127 SF of commercial
space with superior quality architecture and steel high rise construction with stone and glass façade.
Sale Notes
- Owner / User opportunity at the center of Seattle’s most sought-after office and retail neighborhood
- Income-producing tenant in 1,764 SF space
4,016 SF is immediately occupiable, or divisible for additional income opportunity
Floor Plan
Property Facts
| Total Building Size | 5,780 SF | Floors | 3 |
| Property Type | Office (Condo) | Typical Floor Size | 1,927 SF |
| Building Class | B | Year Built | 2000 |
| Total Building Size | 5,780 SF |
| Property Type | Office (Condo) |
| Building Class | B |
| Floors | 3 |
| Typical Floor Size | 1,927 SF |
| Year Built | 2000 |
Presented by
820 Stewart St
Hmm, there seems to have been an error sending your message. Please try again.
Thanks! Your message was sent.

